Living on Yinshan Road by the river
作品详情
  • Details of the work 标题横线
    头像或者logo
    图片 TEYU设计 长沙青设联特约推荐
    城市:长沙
    公司:TEYU设计
    参赛作品: 住在江边的银杉路
    空间类型:公寓(150㎡以下)
    个人/公司简介:
    致力于针对室内设计、环境设计等一体化的综合性专业设计公司。主要从事精致私宅、精品商业空间、办公空间、高档别墅等设计项目,我们致力于全案服务模式,从设计创意、工程技术管理到软装、设计、实施,能够满足客户对全面设计服务,以及最为完善的全案设计服务的需求,从而形成了鲜明的经营特色与独有的市场竞争力,并能有效控制最终的设计落地、品质把控。
    设计说明 | Design Instruction
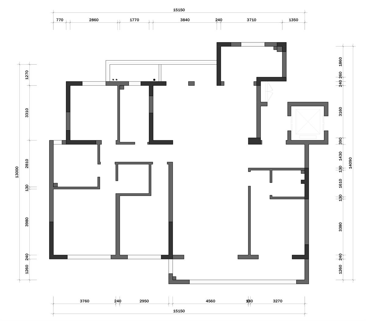
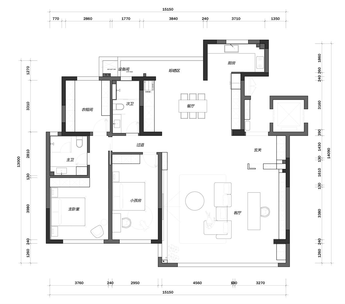
  • 庄子曰: 人生天地之间 若白驹过隙 忽然而已 本案常住人口为三人,年轻业主,经过几年对公司与施工方进行考察,最终选择我们为其设计。 整个过程中,对我们十分的信任。 业主需求要有一个大横厅、书房、主卧套房,女业主要求有足够的储物空间 ,想要一个舒适温馨安静的居家环境。 区别于繁复个性的空间属性,以柔和而低调的姿态展现,浸润人们的生活方式。传递浪漫温柔的感觉,像冬日沁人心脾的暖风,感受舒适自在的细腻氛围。 近临客厅的房间进行拆除,得到一个大横厅,家里的孩子可以肆意地奔跑,极大扩大了空间,开阔了视野。 全屋木制作目前的面积高达100方,内嵌式设计巧妙融入居家结构中,利用壁橱深度优化储物空间,真正实现了什么叫储物自由,同时为家里增添一抹时尚与美感。 温和色调,适当的留白,没有花哨的色彩,自然材质的木饰板,墙顶与墙壁同色的艺术漆饰面。以其作为整个空间的主色调,构建空间的高级感。 一切从简,自然而舒适,卧室一眼望去,都是温柔的奶油色,运用一些家具单品自由搭配 自由偏移,不给生活设限。 1.入户玄关: 入户玄关—开放书房隔断相连 极好地引入自然采光 为入户空间的压抑感做“减法” 放大了空间的延伸感 户型南北通透 增强空间的立体感 同时增强了空间之间的互动 让空间自由呼吸 以原木色为主 空间视觉上无遮挡 视野广阔,增加阅读兴趣 抬头随时可以观赏户外的风景 利用层次对比打造收纳柜 用以基础杂物收纳有藏有露 视觉更为轻盈流畅 采用隐藏式口袋门设计 让空间既独立又私密 2.客餐厅: 以自然舒适为要义 色彩克制沉稳 通过轻盈的节奏和跳跃性的体块分割 试图创造细腻的情境 营造精致而不造作的画面 客厅中以奶油色作为主色调 圆润独特的造型奠定了极简而独特的基调 营造出大气、温馨、舒适的生活空间 空间以大面积艺术漆 自然木材、低饱和色相构图 来传达主题故事线 克制与舒适的空间美学得以展现 运用极简的原木物语基调 打造出墙一体的空间收纳 简单线条勾勒 极简与自然融合 展现出简而不空的现代极简风格 去掉繁琐的任何装饰 背景墙以极简无修饰的 纯粹造型展示 预留出契合电视机的尺寸 柔和而具有包裹感 选择地到天的天际线灯具 通过二次反射光源 产生温柔的氛围环境 从而产生丰富的视觉体验 告别繁琐 打造浪漫温馨的家 简约的结构 让空间有更多的留白 温润的木色和奶油色调 自然材质展现空间的质感
  • 图片
  • 图片
  • 图片
  • 图片
  • 图片
  • 图片
  • 图片
  • 图片
  • 图片
  • 图片
  • 图片
  • 图片
  • 图片
  • 图片
  • 图片
  • 图片
  • 图片
  • 图片
  • 图片
  • 图片
  • 图片
  • 图片
  • 图片
  • 图片
  • 图片
  • 图片
  • 图片
  • 图片
  • 图片
  • 上一个 下一个
    2024第八届金腾奖 私宅(独居)丨私宅(多人居)丨餐饮丨酒店丨办公丨商业丨公共丨公益丨人物丨NEW100 jintengAWARD(小金_金腾奖组委会) 广州市海珠区琶洲大道68号华新中心21楼
    金腾奖视频号 金腾奖小红书号 监制:刘译遥
    统筹:张俊媚
    运营:赖钰炼 曹凯月 刘芳棋 小金
    新媒体:王贝贝 严洁 张文一
    技术:黄天佑 丁德昌
    最终解释权归金腾奖主办方所有