cola & peach
作品详情
  • Details of the work 标题横线
    头像或者logo
    图片 丁舒心 长沙青设联特约推荐
    城市:长沙
    公司: 西间设计
    参赛作品: 可乐桃子
    空间类型:公寓(150㎡以下)
    个人/公司简介:
    设计理念: 功能主义+美学主义,保持对生活的仪式感
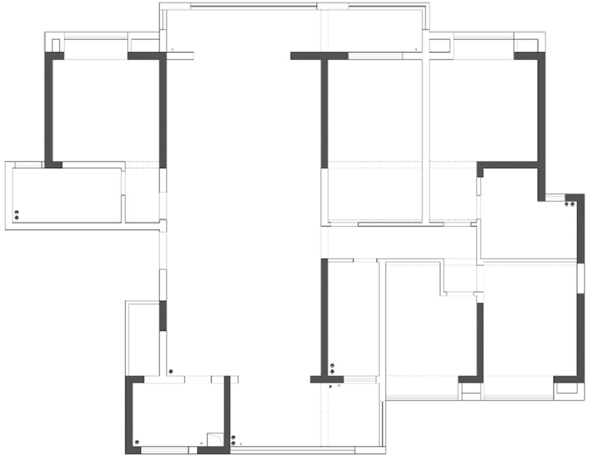
    设计说明 | Design Instruction
  • 设计理念: 私宅设计项目最应当满意的是业主,作为落地的评审,业主押注是他们人生很长一段时间的生活质量。设计师作为美好生活的假想者,我们模拟了解各种人生,然后通过五维设计去种下美好情景,等待美好发生。 设计说明: 项目设计上,从业主设计的基本诉求出发,从原建筑的问题出发 格局改造: 原建筑入户门开门,一眼望去就是一条超长的过道,整个空间一览无余。在这个过道问题上,我们将其整体向左平移 90 公分,创造出 1.2 米宽的舒适双人同行过道,同时又让过道两边的四个房间面积得到均衡分布,入户更具视觉缓冲。 厨房改造: 原建筑厨房的面积小,在设计上我们提供多稿思路,虽因客户需求未采用空间互换方案,但最终也是做了 U 型台面的半开放式厨房,搭配西厨及暗藏式折叠门,极大满足了美食爱好者男业主的需求。 主卧改造: 关于主卧空间的选择上,桃子姐(女业主)做了一个很大胆的决定,她把朝向最好的三间南向卧室给了孩子和父母,把北向的两个最小的卧室分配给了自己,作为一个社会打工人,白天的时间都在工作,卧室的主要功能就是休息,当然也有一点小私心,北向卧室窗外视线可以远眺,景色还不错,可以看到朝晖和夕阳,还可以远眺远处的湿地公园,希望这些美景,可以给忙碌的生活里一些心灵上的净化。 于是主卧套房由北向房间改造,集衣帽间、书房、手工区等多功能于一体,满足业主的每一个需求。整体设计从功能入手、从细节入手,实现空间合理利用与功能最大化,为全家打造舒适宜居的生活。
  • 图片
  • 图片
  • 图片
  • 图片
  • 图片
  • 图片
  • 图片
  • 图片
  • 图片
  • 图片
  • 图片
  • 图片
  • 图片
  • 图片
  • 图片
  • 图片
  • 图片
  • 图片
  • 图片
  • 图片
  • 图片
  • 图片
  • 图片
  • 图片
  • 图片
  • 图片
  • 图片
  • 图片
  • 图片
  • 上一个 下一个
    2024第八届金腾奖 私宅(独居)丨私宅(多人居)丨餐饮丨酒店丨办公丨商业丨公共丨公益丨人物丨NEW100 jintengAWARD(小金_金腾奖组委会) 广州市海珠区琶洲大道68号华新中心21楼
    金腾奖视频号 金腾奖小红书号 监制:刘译遥
    统筹:张俊媚
    运营:赖钰炼 曹凯月 刘芳棋 小金
    新媒体:王贝贝 严洁 张文一
    技术:黄天佑 丁德昌
    最终解释权归金腾奖主办方所有