Free minimalism
作品详情
  • Details of the work 标题横线
    头像或者logo
    图片 杨世雄 长沙青设联特约推荐
    城市:长沙
    公司: 长沙格尚家居
    参赛作品: 自由的极简
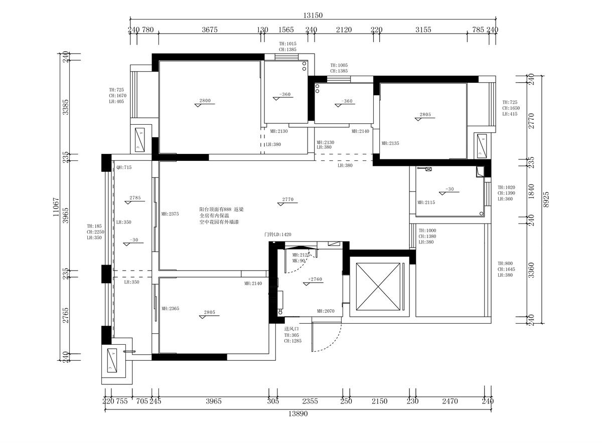
    空间类型:公寓(150㎡以下)
    个人/公司简介:
    杨世雄 先生 广易居商宅风水 主理人 2021年至2023年 广易建构设计 设计总监/创始人 2015年至2020年 格尚空间设计 设计总监/创始人 2012年至2014年 长沙格尚家居 设计总监/创始人 高级室内设计师 湖南省室内装饰协会 理事 HIID湖南省建筑室内设计学会 理事 长沙市美术家协会 会员 UNICEF联合国儿童基金会 益童承诺人 中国太极门风水学派第三代弟子 【个人荣誉】 2022年 40UNDER40中国(长沙) 设计杰出青年(2022-2023) 2022年 香港亞太設計師大賽 豪宅空間鑽石獎 2022年 上海国际设计周新锐设计奖 2022-2023年度省榜 2022年 唯美中国设计奖 优秀空间奖 2022年 湖南省室内装饰设计双年展 优秀奖 2023年 卓群奖 室内设计年度封面菁英人物(2022年度) 2023年 顶峰设计奖 年度新锐建筑室内设计师(2022年度) 2023年 红棉设计奖2022年度 优秀极简空间设计奖 2023年 湖南豪宅TOP100年鉴 银奖 2024年 祝融奖 CBDA照明应用设计大赛 长沙站二等奖 2024年 湖南省室内设计大赛 铜奖 【设计理念】 设计源于生活,设计改变生活 聚焦人居设计,探索极致需求 没有一种风格适用于每个人,没有一个设计适用于每个空间,人与空间相结合一定会诞生不同调性。所以还是要回到以人为本,从心理层次去探讨设计。所以还是要回到每个个体,探究他关于家的定义。 设计作品强调材质本身自然质感与精准的比例处理,透过与周遭环境的互动,经由流动的空气与光线润饰空间,以量身打造为每位使用者创造独一无二的专属风格,将工学与美学合而为一。
    设计说明 | Design Instruction
  • “精神只有在不成为支撑物时,它才会自由。” 屋主对生活有着不一样的思考:不需要太多装饰,生活的色彩应该自己亲手描绘。 所以,极简与白色,成为了这个空间里的主调。落笔纯粹且克制的极简主义手法,在这里体现得淋漓尽致,一丝一毫的所谓多余都寻不着。白色为主,以点线面的构成方式,在空间减法的营造中,探寻结构、材质、色彩与生活、情感的深度对话。 餐厨客一体,只是通过墙面与顶部结构来区别,鱼骨拼的地板通铺到了这三个空间,餐厨客即有区别又有机的融合在了一起,在视觉上让空间有了一个可延续的序列感。木元素与莹白的墙面相搭配,令人轻松自在,而色彩的过渡带动材质的变化,地板与白色墙面形成反差,丰富了简单场景中的层次感。客厅的灯具描绘了一副日月星辰,天空云朵的大写意,看似简单色彩造型却能给人带来极大的舒适感受,当那些让人眼花缭乱的装饰淡出视线,人的感知则成为了这个纯白舞台上唯一的舞者。 全屋无阳角的设计,空间的安全性再一次提高,也在视觉上弱化了棱角,让整个家的氛围变得更为温馨柔和。主卧与次卧采用隐形门过渡,与墙面统一,纯白的空间在次卧孩子房间起了一点涟漪,但也保持了一贯简约纯粹的感受,依旧以人为主的设计思路贯穿始终。客厅与卧室都有充足的收纳空间,满足日后生活的一切收纳需求。 自由自在的人,不会被琐碎缠身,愿每一处生活中的空白领域,都有自己华丽的身影。
  • 图片
  • 图片
  • 图片
  • 图片
  • 图片
  • 图片
  • 图片
  • 图片
  • 图片
  • 图片
  • 图片
  • 图片
  • 上一个 下一个
    2024第八届金腾奖 私宅(独居)丨私宅(多人居)丨餐饮丨酒店丨办公丨商业丨公共丨公益丨人物丨NEW100 jintengAWARD(小金_金腾奖组委会) 广州市海珠区琶洲大道68号华新中心21楼
    金腾奖视频号 金腾奖小红书号 监制:刘译遥
    统筹:张俊媚
    运营:赖钰炼 曹凯月 刘芳棋 小金
    新媒体:王贝贝 严洁 张文一
    技术:黄天佑 丁德昌
    最终解释权归金腾奖主办方所有