MOUNTAINS AND VILLAS
作品详情
  • Details of the work 标题横线
    头像或者logo
    图片 朱传锋 长沙青设联特约推荐
    城市:长沙
    公司: 独立设计师
    参赛作品: 山与墅
    空间类型:别墅
    个人/公司简介:
    姓名:朱传锋 毕业院校:长沙中南林业科技大学 从业年限:13年 职位职称: 中国建筑学会室内设计分会注册设计师 中国建筑装饰协会高级室内建造师 中国劳动司高级室内设计师 设计理念: 重视功能和空间组织,发挥结构本身的形体美,造型简洁反对多余的装饰,崇尚合理的构成工艺,讲究自身的材质和色彩的配置效果,寻找洁净,直截了当的美。 获奖情况: 荣获全国住宅优秀室内设计师称号 中国样板房设计师 金外滩居住空间奖 国际空间设计大奖“艾特奖” 中国装饰协会筑巢奖
    设计说明 | Design Instruction
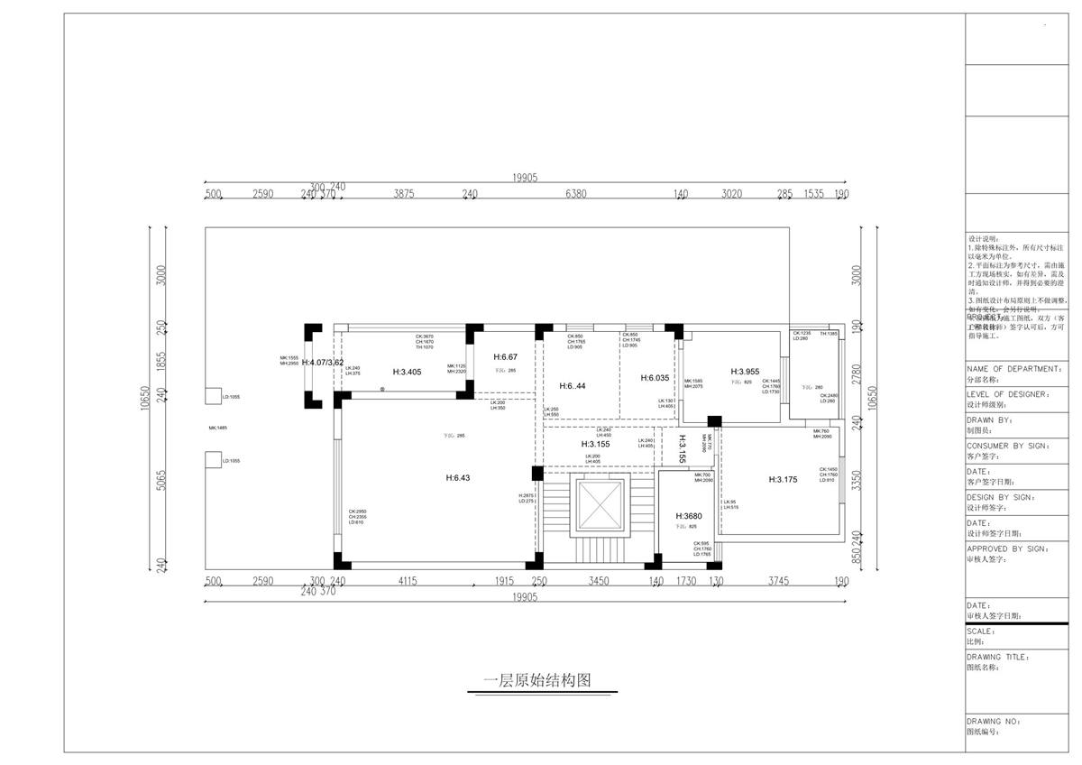
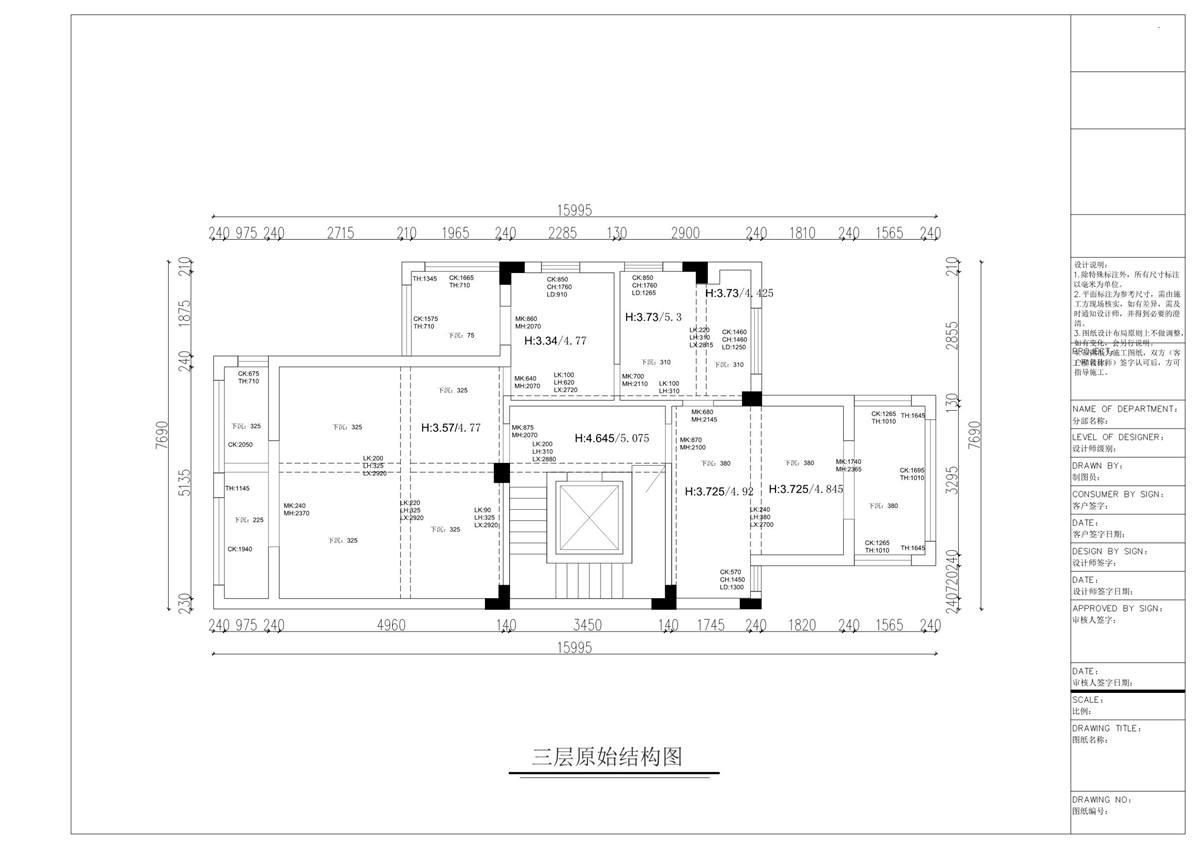
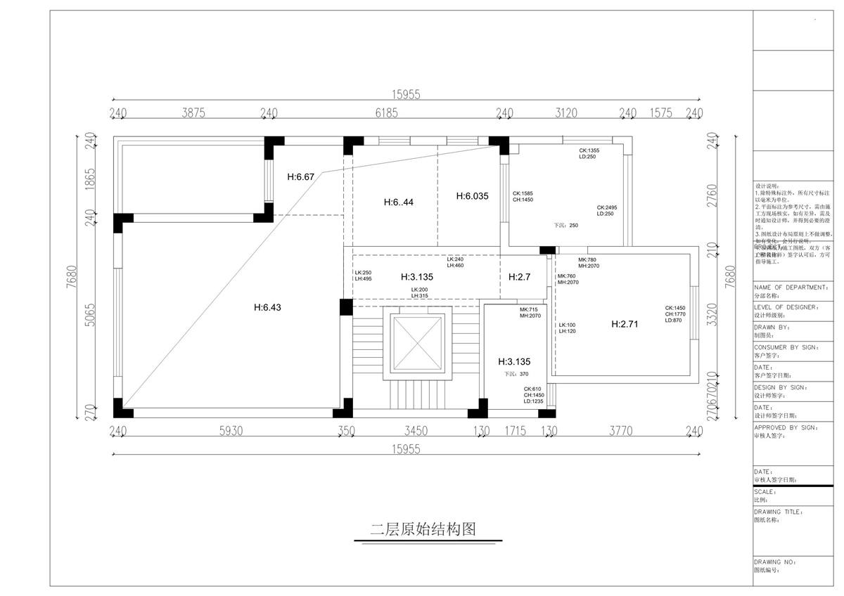
  • 本案以中古风格为基调,结合现代生活需求进行功能布局和装饰设计。各楼层之间既相互独立又紧密相连,形成一个和谐统一的整体空间,既体现了古典韵味又满足了现代人对居住舒适性和功能性的追求。 空间一共分为五层,地下室通过大面积采光窗的设计,成功打破了传统地下室的封闭与沉闷,引入了自然光线,营造出明亮而通透的休闲环境。这一设计不仅提升了地下室的居住舒适度,还赋予了其更多的功能性和灵活性。会客厅位于地下室的核心区域,宽敞明亮,适合举办家庭聚会、朋友聚会等社交活动。中古风格的家具与装饰品相得益彰,营造出典雅而温馨的氛围。茶室紧邻会客厅,提供一个静谧的品茗空间。柔和的灯光、古朴的茶具以及雅致的装饰,让人在品茶的同时也能感受到一份宁静与雅致。餐厅与厨房采用开放式设计,形成流畅的餐饮区域。厨房配备现代化设备,同时融入中古风格的装饰元素,既实用又美观。餐厅则注重营造温馨的就餐氛围,适合家庭聚餐或朋友聚会。夹层棋牌室在地下室与一层之间设置夹层作为棋牌室,既充分利用了空间,又保证了活动的私密性。这个空间适合家庭成员或朋友进行休闲娱乐活动,如打牌、下棋等。一层作为家庭日常活动的中心区域,布局合理,功能齐全。家庭厅宽敞明亮,是家庭成员聚集、交流的主要场所。设计注重空间感和流通性,便于家庭成员之间的互动与沟通。茶室根据家庭需求灵活设置,可用于品茶、阅读、休闲等多种功能。中古风格的装饰与家具为空间增添了一份文化底蕴。老人房位于一层便于老人出入的位置,设计注重舒适性和安全性。配备必要的无障碍设施和紧急呼叫系统,确保老人的居住安全与健康。保姆房紧邻主要生活区域,为保姆提供独立的居住和工作空间。设计简洁实用,满足保姆的基本生活需求。二层作为家庭成员的私密居住区域,设计注重私密性和舒适性,每个套间均配备独立卫生间、衣帽间和休息区,满足家庭成员对私密性和便利性的需求。设计上注重空间感和层次感,营造温馨舒适的居住环境次卧作为客房或备用卧室使用,设计同样注重舒适性和功能性。可根据实际需求进行灵活调整,满足不同场景下的使用需求。三层作为别墅的顶层区域,专为别墅主人设计,集居住、工作、休闲于一体。主卧套间豪华且私密的设计,集卧室、衣帽间、卫生间和休息区于一体。大面积的窗户引入自然光线和风景,为主人提供高品质的居住体验。中古风格的装饰与家具相结合,彰显主人的品味与身份。书房静谧而高效的工作环境,设计注重采光和通风。配备齐全的办公设施和舒适的座椅,满足主人阅读、思考或工作的需求。同时,书房也是主人放松身心、享受宁静时光的理想场所。
  • 图片
  • 图片
  • 图片
  • 图片
  • 图片
  • 图片
  • 图片
  • 图片
  • 图片
  • 图片
  • 图片
  • 图片
  • 图片
  • 图片
  • 图片
  • 图片
  • 图片
  • 图片
  • 图片
  • 图片
  • 图片
  • 图片
  • 图片
  • 图片
  • 图片
  • 图片
  • 图片
  • 图片
  • 图片
  • 图片
  • 图片
  • 图片
  • 图片
  • 上一个 下一个
    2024第八届金腾奖 私宅(独居)丨私宅(多人居)丨餐饮丨酒店丨办公丨商业丨公共丨公益丨人物丨NEW100 jintengAWARD(小金_金腾奖组委会) 广州市海珠区琶洲大道68号华新中心21楼
    金腾奖视频号 金腾奖小红书号 监制:刘译遥
    统筹:张俊媚
    运营:赖钰炼 曹凯月 刘芳棋 小金
    新媒体:王贝贝 严洁 张文一
    技术:黄天佑 丁德昌
    最终解释权归金腾奖主办方所有