A natural place in the city
作品详情
  • Details of the work 标题横线
    头像或者logo
    图片 张鹏
    城市:惠州
    公司: 惠州一川空间设计事务所
    参赛作品: 都市中的自然之所
    空间类型:公寓(150㎡以下)
    个人/公司简介:
    张鹏,惠州一川空间设计事务所创始人兼设计总监,深耕室内设计行业十余年,专注高端私宅,品质商业的全案设计及落地,致力于探寻现代空间的多样可能性与人与空间的对话关系。以业主实际需求及建筑结构本身为轴心,倡导把自然景观融入室内,运用光与影,强调独特的空间与美学体验,为居者打造独一无二的家。秉持“全案落地,所见即所得”的设计理念,做更懂年轻一代的设计。 曾获荣誉: 40 UNDER40当代设计杰出青年 (2023-2024) 2023 is智能空间设计奖 城市智能豪宅新势力人物 2023 金住奖城市十大居住空间设计师 2022-2023 40 UNDER 40 中国(惠州)设计杰出青年奖 2022 原态潮设计先锋奖年度十佳设计师 2022 IDA美国设计大奖 铜奖 2022 芒果奖入选晋级(住宅/公寓空间类别) 2022 金住奖 惠州十大居住空间设计师 2022 城市设计星 南区五十强 2022 第25届中国室内设计大奖赛 经济型住宅类优秀奖 2022 第12届国际空间设计大奖赛 艾特奖 居住空间设计 惠州十强 2022 CIFF社交圈设计千人计划 入选设计师 2022 中国家装设计百强 2021 G+AWARDS全球设计精英大赛市榜TOP10 2020 中国设计新青年全国TOP 100 2020 国际色彩空间大奖(优秀奖)
    设计说明 | Design Instruction
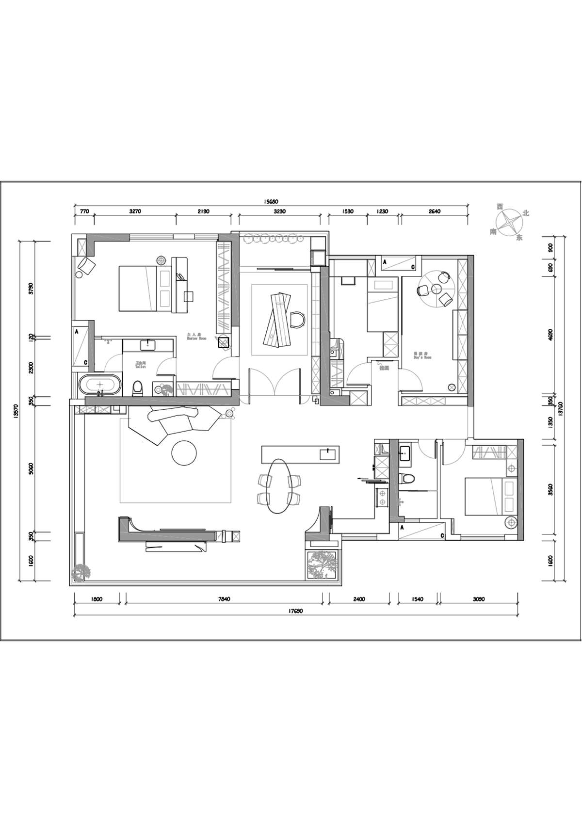
  • 该项目是位于惠州金山湖岛内大平层私宅,设计之初,更多考虑人文与自然,室内的质感室外的自然交相呼应。对于每个人内心真实的唤醒,对生活本质的无限探索与追求。 在不太合理的空间,合理优化原有空间格局,赋予其朗阔开阖的尺度,营造通透动线,以贯穿始终的曲线勾勒优雅灵动之姿,在极简的背景下,打造能够自由呼吸、与自然友好的生态住宅。放大餐厅岛台与餐桌结合成屋中岛屿小朋友可以围绕着自由奔跑到客厅及阳台,闹钟取静的书房,以及满足女主的大衣帽间以及大套间主卧的生活品质体验满足当初对这套房的一切理想。
  • 图片
  • 图片
  • 图片
  • 图片
  • 图片
  • 图片
  • 图片
  • 图片
  • 图片
  • 图片
  • 图片
  • 图片
  • 图片
  • 图片
  • 图片
  • 图片
  • 图片
  • 图片
  • 图片
  • 图片
  • 图片
  • 图片
  • 图片
  • 图片
  • 图片
  • 图片
  • 图片
  • 图片
  • 上一个 下一个
    2024第八届金腾奖 私宅(独居)丨私宅(多人居)丨餐饮丨酒店丨办公丨商业丨公共丨公益丨人物丨NEW100 jintengAWARD(小金_金腾奖组委会) 广州市海珠区琶洲大道68号华新中心21楼
    金腾奖视频号 金腾奖小红书号 监制:刘译遥
    统筹:张俊媚
    运营:赖钰炼 曹凯月 刘芳棋 小金
    新媒体:王贝贝 严洁 张文一
    技术:黄天佑 丁德昌
    最终解释权归金腾奖主办方所有