银亿东城
作品详情
  • Details of the work 标题横线
    头像或者logo
    图片 佘静雯 云上设计师俱乐部特约推荐
    城市:南京
    公司: 南京读白建筑设计
    参赛作品: 银亿东城
    空间类型:公寓(150㎡以下)
    个人/公司简介:
    佘静雯 南京读白建筑设计 创始人 毕业于南京工业大学环境艺术设计专业 于2019年创立读白设计 专注于私宅设计 全案托管 南京读白建筑设计(读白设计)是一家以关怀型创意设计为主,集私宅设计、商业设计、视觉表现等为一体的青年设计公司。
    设计说明 | Design Instruction
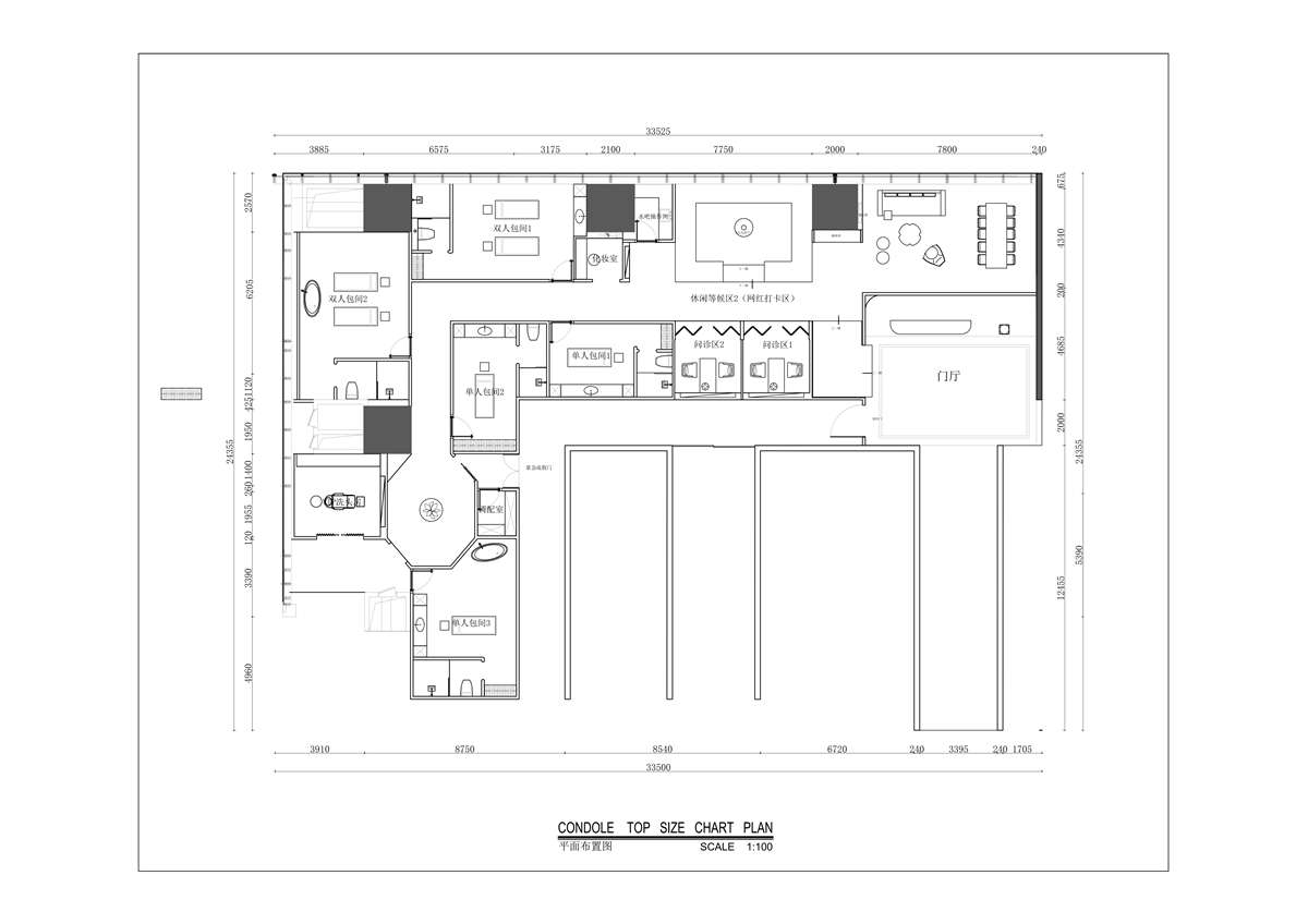
  • 采用了简约现代风格,以白色调为主色调,搭配灰色以及木色,旨在营造清新、明亮、舒适的居住环境。设计中我们注重房屋的实用性与居住者的舒适性,充分考虑居住者的生活习惯和需求,打造出一个温馨舒适的家居空间。该项目处于南京江宁的银亿东城,总面积为220㎡,屋龄已有七年,我们工作室在2023年4月开始设计该房,于2023年5月开工,2023年12月竣工。客厅主要采用胡桃木瘤木纹饰面板,乳胶漆、pu法式线条,楼梯采用了大理石,地面则是由鱼骨拼木地板和人字拼木地板完成。
  • 图片
  • 图片
  • 图片
  • 图片
  • 图片
  • 图片
  • 图片
  • 图片
  • 图片
  • 图片
  • 图片
  • 图片
  • 图片
  • 图片
  • 图片
  • 图片
  • 图片
  • 图片
  • 图片
  • 图片
  • 图片
  • 图片
  • 图片
  • 图片
  • 图片
  • 图片
  • 图片
  • 图片
  • 图片
  • 图片
  • 图片
  • 图片
  • 图片
  • 图片
  • 图片
  • 图片
  • 图片
  • 上一个 下一个
    2024第八届金腾奖 私宅(独居)丨私宅(多人居)丨餐饮丨酒店丨办公丨商业丨公共丨公益丨人物丨NEW100 jintengAWARD(小金_金腾奖组委会) 广州市海珠区琶洲大道68号华新中心21楼
    金腾奖视频号 金腾奖小红书号 监制:刘译遥
    统筹:张俊媚
    运营:赖钰炼 曹凯月 刘芳棋 小金
    新媒体:王贝贝 严洁 张文一
    技术:黄天佑 丁德昌
    最终解释权归金腾奖主办方所有