机长之家
作品详情
  • Details of the work 标题横线
    头像或者logo
    图片 范颖 云上设计师俱乐部特约推荐
    城市:南京
    公司: 米饭团设计
    参赛作品: 机长之家
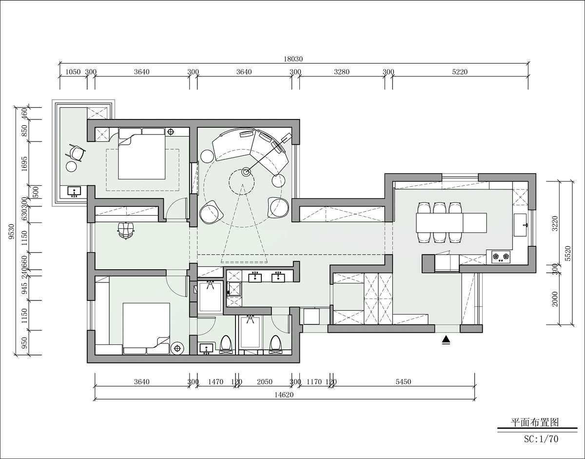
    空间类型:公寓(150㎡以下)
    个人/公司简介:
    40+室内设计师 少女心富有感知和创造力 业务范围:私人豪宅 商业空间 品牌主理人|米饭团设计|卡萨设计|贩否 设计事务所和软装全案设计落地 国家注册室内设计师(高级) 国家注册陈设艺术设计师(高级) 2023 年亚太空间设计十大精英设计师(南京) 2023 年设计千人计划(南京)城市精英设计师 2022 年至今创办贩否家居好物 品牌主理人 2017-2021 年开设 uttermost 美国第一家居品牌国内旗舰店 2016 年创办软装设计公司卡萨设计 设计主理人 2015 年进修于中国美术学院陈设艺术学院 2014 年创办室内设计事务所 米饭团设计 设计主理人 2004-2013 北京龙发装饰公司 主案设计师 2004 年毕业于南京艺术学院设计学院 设计理念 设计是流动变化的艺术,为使用者的感知而设计,让室内空间具有浪漫主义和富有诗意
    设计说明 | Design Instruction
  • 本案是老一辈机长的家,老两口的理想之居,同时承载着两代飞行人的梦想。 以明亮、细腻的空间情绪, 给予整个家舒适的生活环境, 阅读休闲空间和西厨中岛空间占据了很大面积 对于飞行员来说, 在属于自己的空间里做喜欢的事是一种享受,岛台台面采用冷翡翠天然大理石 整个风格时尚精致又不乏温馨。 空间的呈现,以简约的白色打底,明亮又内敛,同时,空间中穿插一些原木色,为家增添了一丝暖意和温馨的氛围,让我们感受到他们内心的温暖和力量。 空间中的所有装饰画,素材都源自于业主的摄影作品。独特的画面构图,特别的拍摄视角,将复杂的美学意蕴简化为明亮的彩色和扁平的图案,为空间平添了一份艺术气息。 客厅半弧形的怀抱式沙发布局弱化了棱角,让家庭社交变得舒适,模块化的沙发也让空间布局更具灵活性,一切在“舒适”范围内进行着微调。 沙发后的飞机装置,这几架飞机是一个子承父志的故事。男主人原是中国空军飞行员,三架带红色空军标志的即是他飞过的多种机型中的三种机型,右下角那架最小的绿色飞机,是中国空军飞行员必飞的机型——初教六(这架小飞机可以飞特技),它代表了飞行员飞行生涯的正式开始;它左边那架飞机叫伊尔—14,是架苏制老式运输机,国内只进口129架,它有着很多的传奇故事;伊尔—14上面是一架国产轰炸—5型飞机,也是男主人飞过的机型。 最高处这架民航飞机是波音737—800型飞机,是业主家里的儿子曾经飞过的,它右下方这架大的民航客机模型是空客—321neo型飞机,也是业主儿子在疫情期间从德国汉堡飞回来的厦航首架空客飞机,机身上写有“First airbus”。我们共同选了这些承载最有意义的几架飞机模型,岁月漫漫,环顾都是熠熠闪光的回忆。 苍穹之上,他穿梭云间, 翱翔蓝天,看遍飞鸟和彩霞 云顶之下,他卸下疲惫, 回归家庭,和家人享受属于家的那份独有温情。
  • 图片
  • 图片
  • 图片
  • 图片
  • 图片
  • 图片
  • 图片
  • 图片
  • 图片
  • 图片
  • 图片
  • 图片
  • 图片
  • 图片
  • 图片
  • 图片
  • 上一个 下一个
    2024第八届金腾奖 私宅(独居)丨私宅(多人居)丨餐饮丨酒店丨办公丨商业丨公共丨公益丨人物丨NEW100 jintengAWARD(小金_金腾奖组委会) 广州市海珠区琶洲大道68号华新中心21楼
    金腾奖视频号 金腾奖小红书号 监制:刘译遥
    统筹:张俊媚
    运营:赖钰炼 曹凯月 刘芳棋 小金
    新媒体:王贝贝 严洁 张文一
    技术:黄天佑 丁德昌
    最终解释权归金腾奖主办方所有