ROSLE 展厅
作品详情
  • Details of the work 标题横线
    头像或者logo
    图片 魏舒怡 云上设计师俱乐部特约推荐
    城市:南京
    公司: 由见设计
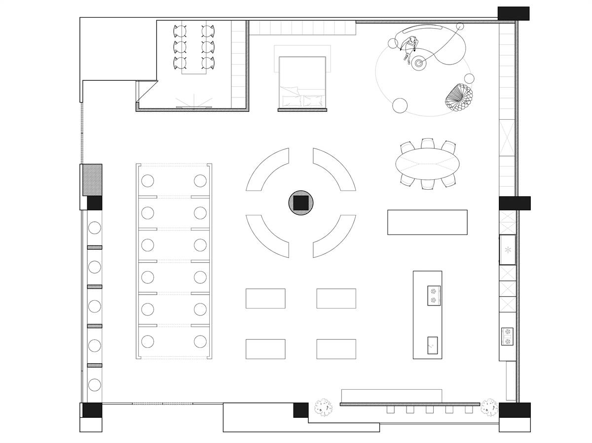
    参赛作品: ROSLE 展厅
    空间类型:办公
    个人/公司简介:
    姓名:魏舒怡 公司:由见设计 职位:设计总监 设计理念: 以室内建筑工作室为基础对微建筑、室内、家具和创意指导领域有着清晰的愿景。 我们工作的精髓在于寻求诗意与功能、简约和趣味之间的平衡。 我们专注于光、物质、视觉和空间等基础品质,致力于塑造一个充满活力和可识别的空间,以深刻和意想不到的方式产生共鸣并增强个人体验。 往期荣誉: 1、2020年度营造家年度设计师TOP10 2、2023中国私宅设计年度TOP10设计师 3、2023中国私宅设计年度软装陈设设计奖 4、设计中国2022年度(南京)十大设计先锋 5、2022金住奖中国(南京)十大居住空间设计师 6、2021年度IN设计奖最佳商业空间奖
    设计说明 | Design Instruction
  • 凭借上百年在厨具领域的专业经验、德国工匠精神,以及对高品质的执著追求,同时致力对产品的不断创新和设计,测试与完善,宜施乐的厨具让厨房工作轻巧简单也充满乐趣,颠覆传统印象,唤起你对厨房和烹饪的热情。 ​别出心裁的将展厅入户打造成内置的“隧道”,带来强烈且有趣的仪式感;内嵌灯带不仅增加展厅环境层次感,也丰富了光氛围,让空间看起来流畅且轻盈; 在设计上,采用“包裹”和“神秘”的造型呈现方式,勾起墙外人欲窥探而无法满足的悸动,又保证墙内人将聚焦点完整留给产品。 根据产品属性陈设架均为不同形式的开放,丰富了空间的视觉体验,也勾起来者的无限猜想,拉近人与空间的距离。陈设架上摆放着不规整的器皿,传达当下人的生活态度,展现舒适的生活形态。 橱窗设计则通过视觉传达商品属性,用悬挂式的方式展现,实现艺术性与实用性的完美统一。
  • 图片
  • 图片
  • 图片
  • 图片
  • 图片
  • 图片
  • 图片
  • 图片
  • 图片
  • 图片
  • 图片
  • 图片
  • 图片
  • 图片
  • 图片
  • 图片
  • 图片
  • 图片
  • 图片
  • 图片
  • 图片
  • 图片
  • 图片
  • 图片
  • 图片
  • 图片
  • 图片
  • 图片
  • 图片
  • 上一个 下一个
    2024第八届金腾奖 私宅(独居)丨私宅(多人居)丨餐饮丨酒店丨办公丨商业丨公共丨公益丨人物丨NEW100 jintengAWARD(小金_金腾奖组委会) 广州市海珠区琶洲大道68号华新中心21楼
    金腾奖视频号 金腾奖小红书号 监制:刘译遥
    统筹:张俊媚
    运营:赖钰炼 曹凯月 刘芳棋 小金
    新媒体:王贝贝 严洁 张文一
    技术:黄天佑 丁德昌
    最终解释权归金腾奖主办方所有