燕熙台小区
作品详情
  • Details of the work 标题横线
    头像或者logo
    图片 马萍 云上设计师俱乐部特约推荐
    城市:南京
    公司: 南京研舍记装饰有限公司
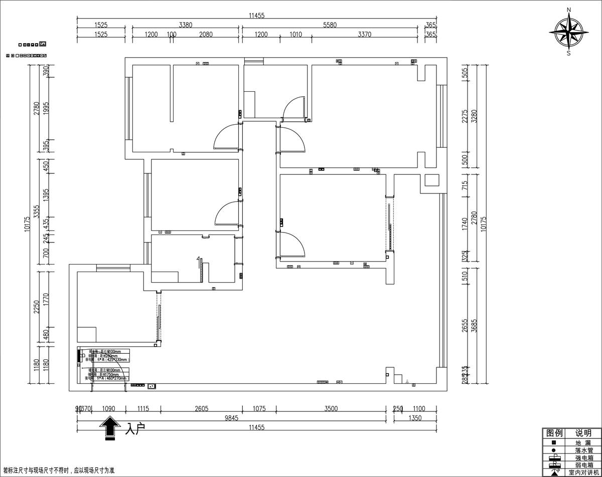
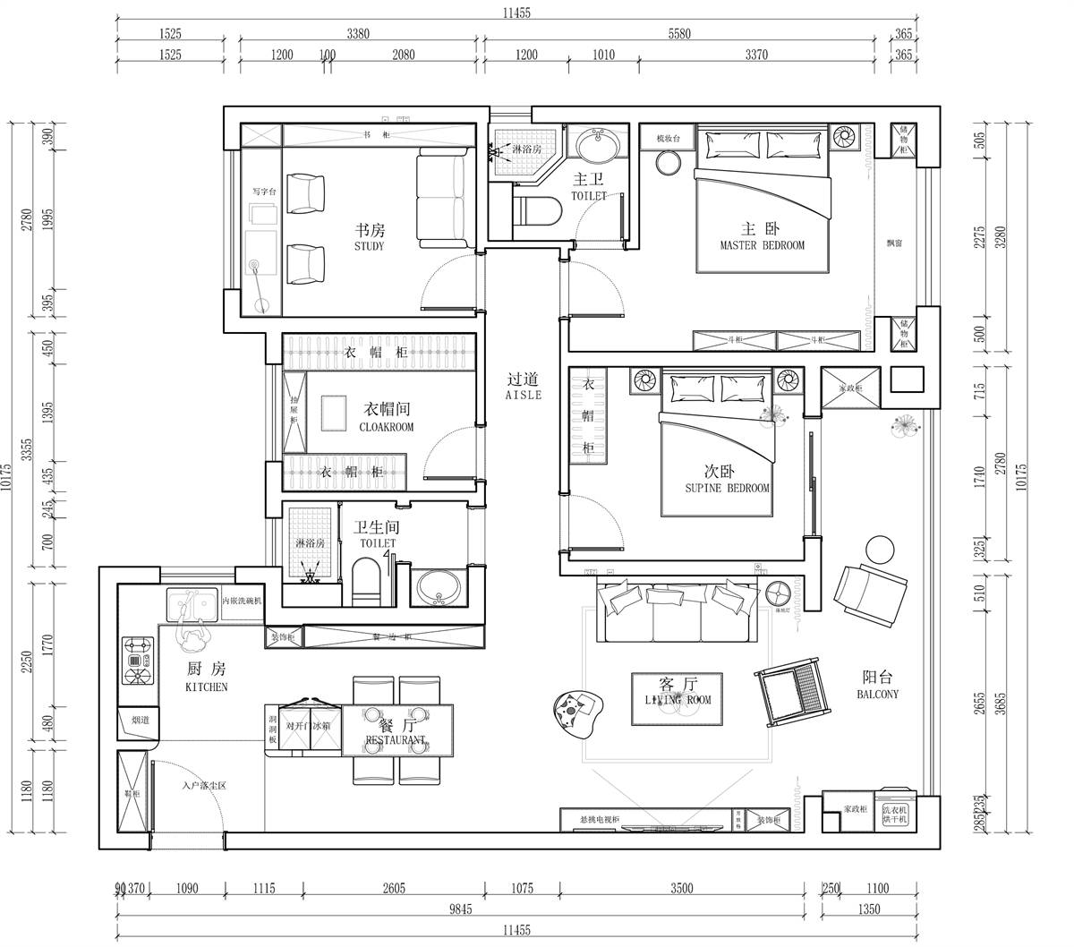
    参赛作品: 燕熙台小区
    空间类型:公寓(150㎡以下)
    个人/公司简介:
    姓名:马萍 公司:南京研舍记装饰有限公司 职位:设计总监 获得奖项: 2018设计头条年鉴TOP100榜DESIGN FOCUS国际空间大奖 2019软装设计大奖龙承奖 2021中国家装设计百强榜 2022年40UNDER40设计师榜 设计理念:让艺术与生活零距离,用设计诠释生活,用灵感点亮生活!
    设计说明 | Design Instruction
  • 这套案例是南京燕熙台小区128平米的户型。2023年4月收房后,就委托我做设计规划,5月份开始动工,8月份完工,拍摄完工照的时候业主已经住进去几个月了。整体的装修采用奶油色系,营造出一种温暖、‌放松的氛围,‌让人感觉仿佛沉浸在奶油般的柔滑之中。‌同时,‌为了增加空间的层次感,‌设计中也搭配一些深色系的元素,‌如胡桃木色‌ 在空间布局上,‌追求开放性和流畅性。‌客厅、‌餐厅、‌厨房等公共区域采用开放式设计,‌使得整个空间看起来更加宽敞明亮。‌家具选择具有流畅曲线的现代云朵沙发,藤编单椅,‌搭配精致的玻璃和木质元素,‌既体现了现代设计的简约美,‌又不失优雅与浪漫。‌装饰品方面,‌使用‌画作、‌地毯、人字纹雪尼尔窗帘等软装元素,‌让整个空间看起来更加轻松自在。
  • 图片
  • 图片
  • 图片
  • 图片
  • 图片
  • 图片
  • 图片
  • 图片
  • 图片
  • 图片
  • 图片
  • 图片
  • 图片
  • 图片
  • 上一个 下一个
    2024第八届金腾奖 私宅(独居)丨私宅(多人居)丨餐饮丨酒店丨办公丨商业丨公共丨公益丨人物丨NEW100 jintengAWARD(小金_金腾奖组委会) 广州市海珠区琶洲大道68号华新中心21楼
    金腾奖视频号 金腾奖小红书号 监制:刘译遥
    统筹:张俊媚
    运营:赖钰炼 曹凯月 刘芳棋 小金
    新媒体:王贝贝 严洁 张文一
    技术:黄天佑 丁德昌
    最终解释权归金腾奖主办方所有