格式化
作品详情
  • Details of the work 标题横线
    头像或者logo
    图片 周峻昊 云上设计师俱乐部特约推荐
    城市:南京
    公司: 厘屋(上海)空间设计有限公司
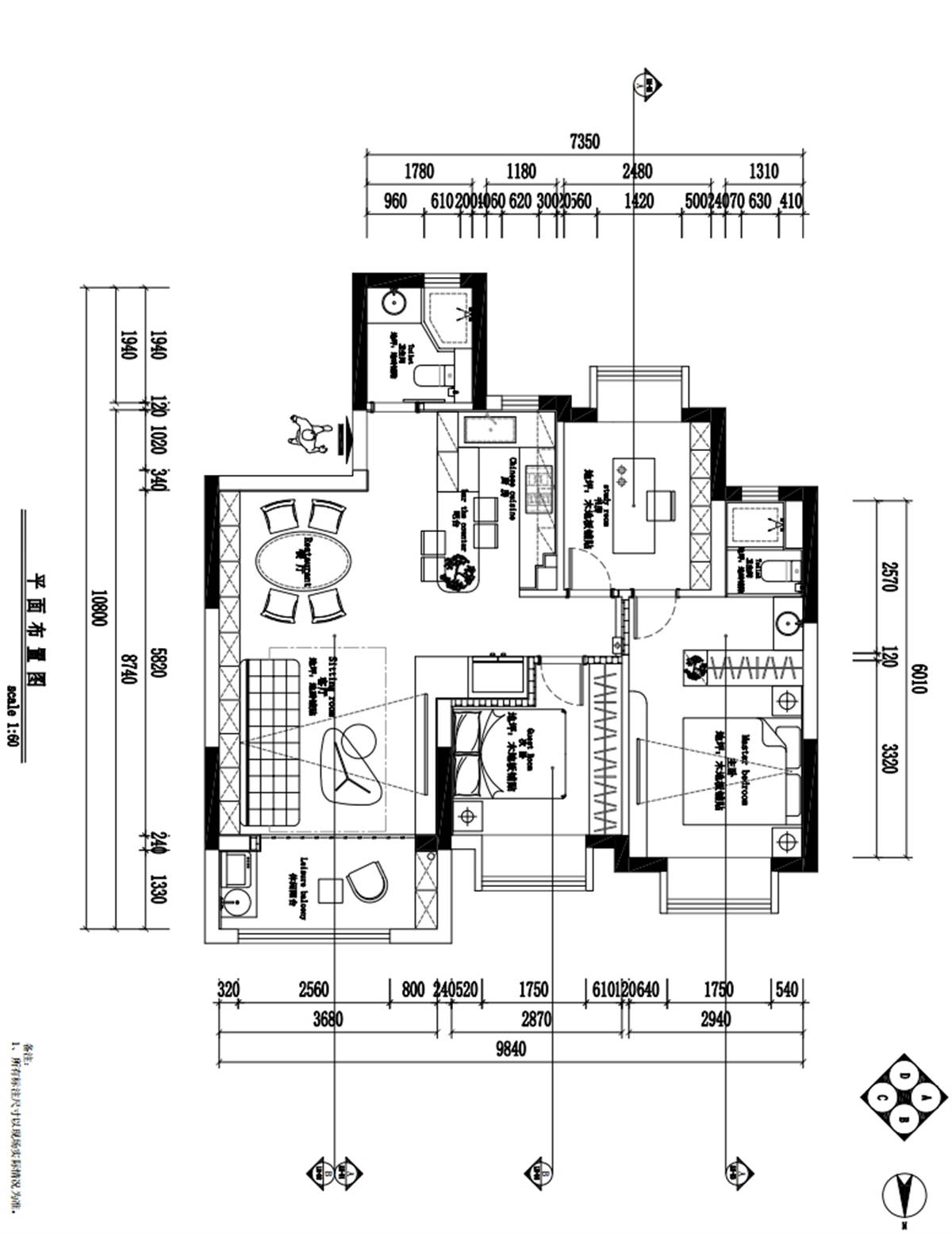
    参赛作品: 格式化
    空间类型:公寓(150㎡以下)
    个人/公司简介:
    姓名:周峻昊 年龄:27 学历:专科 毕业院校:蚌埠学院 在职公司:厘屋(上海)空间设计有限公司 工作经历:2018-2020.06.01尚层装饰苏州分公司辅案设计师 2020.07.01-2021.09.01清州建筑装饰主任设计师 2021.11.01-2022.06.01上海统帅建筑装饰有限公司 2022.07.01至今创立厘屋(上海)空间设计有限公司 工作年限:7年 主要作品:徐汇区海斯大厦、浦东新区大名城映月、黄浦区汇豪天下、吴江明珠城、中海上林苑、 怡绿佳苑、华悦家园等 设计理念:以人为本,从生活出发,让细节呈现完美
    设计说明 | Design Instruction
  • 以意式极简为核心,强调空间的纯净与线条的流畅,追求简约而不简单的设计理念。通过精简的家具、 柔和的色彩和适度的留白,打造出一个舒适、宁静且充满现代感的居住空间。 空间布局: 在空间布局上,注重功能的实用性与空间的通透性。采用开放式设计,将客厅、餐厅和厨房融为一体, 增强了空间的互动性。卧室与书房则采用独立设计,保证了隐私与安静。同时,通过合理的动线规划, 使得居住者在空间中能够自由流动,享受舒适的居住体验。 色彩搭配: 色彩方面,以木色和奶色为主基调,营造出简约而高雅的氛围。局部采用香槟色和黑色进行点缀,增加 了空间的层次感和温度。此外,通过软装的搭配,如抱枕、地毯等,为空间增添了温馨与活力 。 家具选择: 家具方面,精选简约风格的家具,注重线条的流畅与造型的简洁。客厅采用布艺沙发和玻璃茶几,既实 用又美观;卧室则选用意式风格的床和衣柜,满足基本需求的同时,不失现代感。书房则配备简洁的书 桌和灯箱书架,为居住者提供一个宁静的学习空间。 灯光设计: 灯光设计是亮点之一。通过隐藏式灯带、筒灯等多种灯具的组合,营造出舒适、温馨的照明环境。同时 ,根据不同空间的功能需求,合理设置灯光亮度与色温,为居住者带来舒适的视觉体验。 以简约而不简单为设计理念,通过合理的空间布局、色彩搭配、家具选择和灯光设计,打造出一个舒适 、宁静且充满现代感的居住空间。无论是忙碌的都市人还是追求品质生活的家庭,都能在这里找到属于 自己的宁静与舒适
  • 图片
  • 图片
  • 图片
  • 图片
  • 图片
  • 图片
  • 图片
  • 图片
  • 图片
  • 图片
  • 图片
  • 图片
  • 图片
  • 图片
  • 图片
  • 图片
  • 图片
  • 图片
  • 图片
  • 图片
  • 图片
  • 图片
  • 图片
  • 图片
  • 上一个 下一个
    2024第八届金腾奖 私宅(独居)丨私宅(多人居)丨餐饮丨酒店丨办公丨商业丨公共丨公益丨人物丨NEW100 jintengAWARD(小金_金腾奖组委会) 广州市海珠区琶洲大道68号华新中心21楼
    金腾奖视频号 金腾奖小红书号 监制:刘译遥
    统筹:张俊媚
    运营:赖钰炼 曹凯月 刘芳棋 小金
    新媒体:王贝贝 严洁 张文一
    技术:黄天佑 丁德昌
    最终解释权归金腾奖主办方所有