小满艺术中心
作品详情
  • Details of the work 标题横线
    头像或者logo
    图片 苏江 云上设计师俱乐部特约推荐
    城市:南京
    公司: 禾本设计事务所
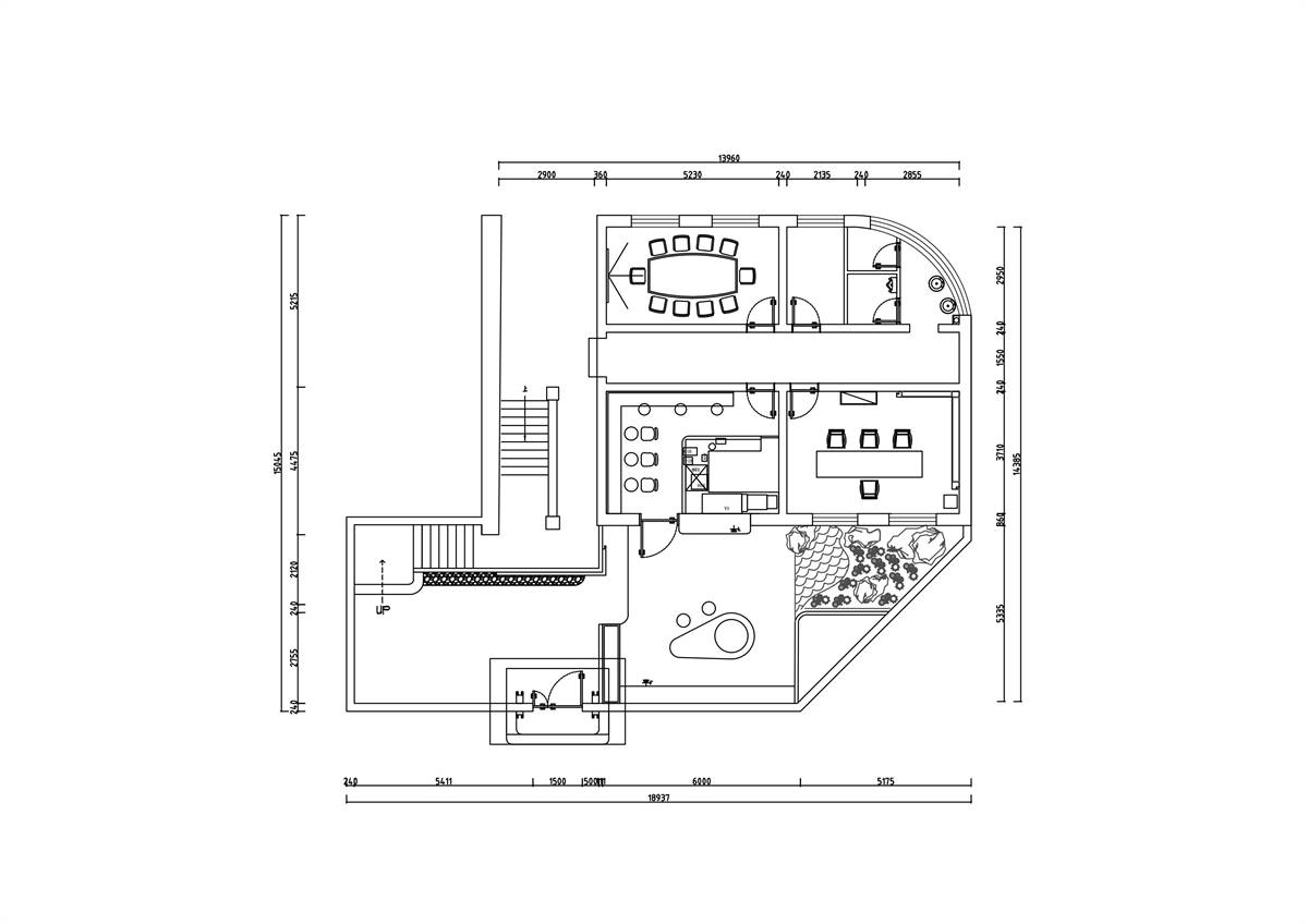
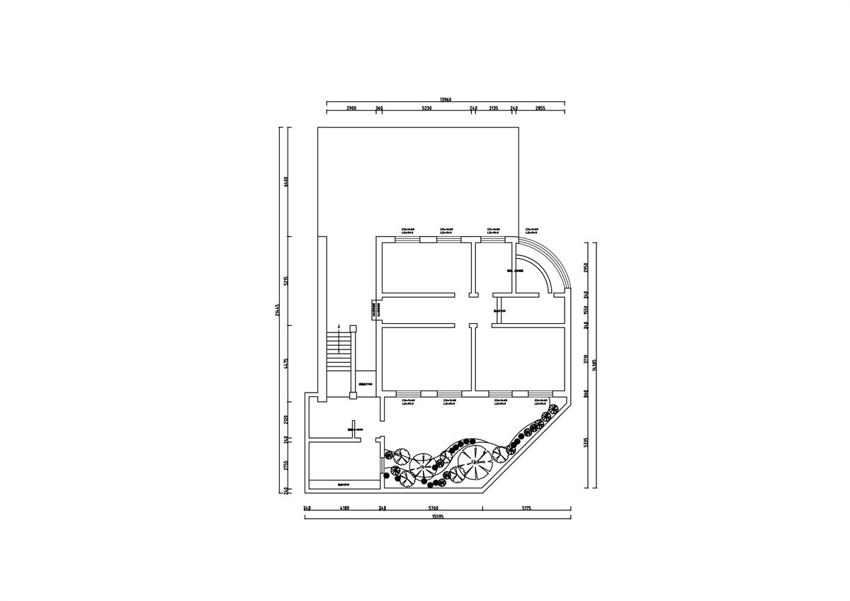
    参赛作品: 小满艺术中心
    空间类型:办公
    个人/公司简介:
    苏江 禾本设计事务所创始人/主理人 《D-LIFE设计与生活》联合主编 13年毕业于南京艺术学院设计专业,本科学历,学士学位。 17年成立禾本设计事务所,由几位毕业于米兰马兰欧尼设计学院、欧洲设计学院及国内设计院校学生组成,起初设计专注于空间美学,后主要设计研究方向逐步聚焦为餐饮宴请类空间及文旅改造空间。立足南京,发掘项目在地属性及文化,设计不同类型空间,起初改造老旧空间为主要项目方向,例如南京1865、逸仙桥等民国老建筑,以及宿迁运河粮库等。 设计理念上,遵循“再设计”的设计思维,重新思考空间属性,在时间、空间、在地维度中,思考人与它们的关系,做有在地文化特征的空间。同时作为设计者不仅仅建立于设计逻辑,同时研究学习商业逻辑,提高设计前瞻性,寻求先“破”再“立”,让设计为空间赋能、运营赋能、商业赋能、城市赋能等。 希望摈弃千城一面的同类空间,强化设计尺度和边界,力求挖掘在地文化,为空间赋能,提高空间设计深度。
    设计说明 | Design Instruction
  • 我们一直觉得近年或者未来会是比较特殊的一段时间,就是我们看到的建筑存量达到一种饱和的状态,更高的房屋空置率,更低的使用成本更加被需要。那么小满就是这样一个60年代存量建筑用设计的方式低成本改造的案例。 上世纪60年代小满艺术中心所在的建筑是金陵造船厂的办公用楼,有意思的是“小满”的主人的微信名是用了十几年的“船长”。随着岁月的沉淀,这栋楼渐渐被空置和废弃,第一次见它,有种在战场废墟的感受,而院内则被用来养鸡,一度难以下脚。我想院内的老枇杷树和老石榴树如此茁壮,一定是在等待它的新生。 建筑外观的改造上,更多的出发点是功能,首先由于是户外楼梯,我们增加了楼道围墙的高度,加强围合感同时能更好的遮挡飞雨,其次是建筑外部裸露的排水管的隐藏处理,最后是每层独立房间空间外机用穿孔板遮挡及处理。设计手法上是做建筑外观构建上的合理归纳。造型的设计上以盒子的思路去做挤出和内退。 公区及庭院,主要以涂料出新,一方面是整体预算,另一方面小满艺术中心因为临江边,四周无高层建筑遮挡,所以白天的自然光线非常充足,结合保留了原建筑的一些栏杆扶手以及铁皮排风扇,以及院中的老树,随着时间转换,墙面会呈现不同的光斑和光影。 小满的画廊区域,是真正意义上的廊空间,是原来围墙和建筑之间的一个老旧巷子。通过顶部的搭建,形成画廊空间。搭建顶部的过程中,局部裸露借用了天光,在白天光照充足的情况下,形成有形状的顶部光源。另外就是空间的RGB灯光颜色的变化,满足于画廊一定程度上的空间功能的多变性。
  • 图片
  • 图片
  • 图片
  • 图片
  • 图片
  • 图片
  • 图片
  • 图片
  • 图片
  • 图片
  • 图片
  • 图片
  • 图片
  • 图片
  • 图片
  • 上一个 下一个
    2024第八届金腾奖 私宅(独居)丨私宅(多人居)丨餐饮丨酒店丨办公丨商业丨公共丨公益丨人物丨NEW100 jintengAWARD(小金_金腾奖组委会) 广州市海珠区琶洲大道68号华新中心21楼
    金腾奖视频号 金腾奖小红书号 监制:刘译遥
    统筹:张俊媚
    运营:赖钰炼 曹凯月 刘芳棋 小金
    新媒体:王贝贝 严洁 张文一
    技术:黄天佑 丁德昌
    最终解释权归金腾奖主办方所有