薇阁婚纱摄影
作品详情
  • Details of the work 标题横线
    头像或者logo
    图片 童成辰 云上设计师俱乐部特约推荐
    城市:南京
    公司: 怀谷空间设计
    参赛作品: 薇阁婚纱摄影
    空间类型:办公
    个人/公司简介:
    童成辰 怀谷空间设计创始人 【怀谷设计简介】 空间的延展 是我们对“视而不见”的极致探索 细节的苛求 是我们对“疲劳视觉” 的灵魂修复 怀谷设计新生代 带你触碰空间变换的欣喜与感动 【怀谷设计理念】 用最纯粹的设计,体现空间核心价值 获奖经历 南京设计金陵共建人 南京家居平台特邀设计师 怀谷空间设计事务所创始人 NEVER 2019亚太空间设计年度百强设计师 2019亚太空间设计最具原创设计机构 2020南京4040杰出青年设计师 2020红棉中国设计年度优秀极简空间设计奖 2020上海国际设计周新锐中国设计奖 2022亚洲青年设计之光TOP100 2022红棉中国设计年度最美现代空间设计 2023 NCA新商业空间大奖赛TOP100 2023 HI DESIGN大奖赛优秀奖
    设计说明 | Design Instruction
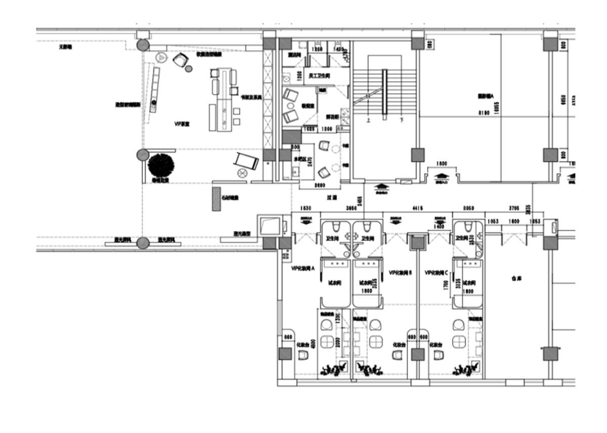
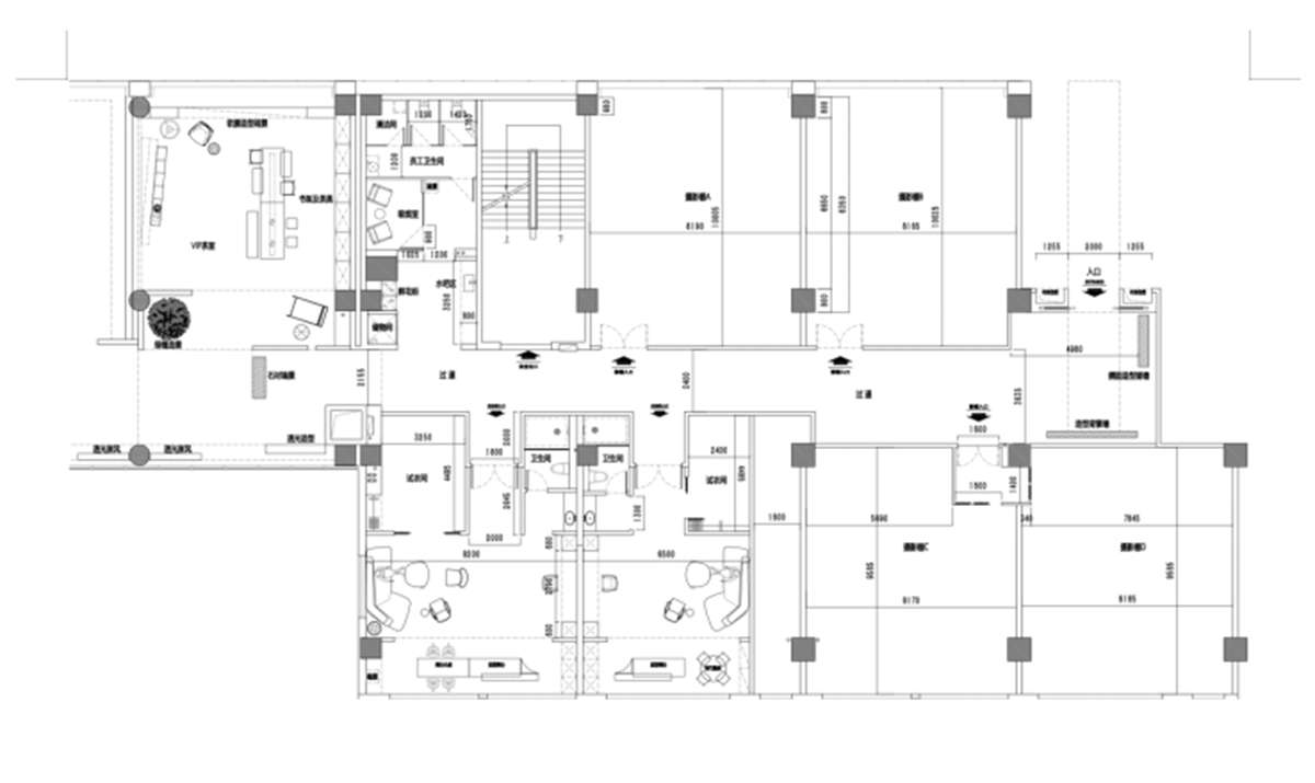
  • 「然 叙」 自然 融合 圆满 Natural Fusion Perfection 婚姻是生命中新的起点,充满了浪漫的色彩。每一天的相伴,都是在书写属于彼此的独特篇章。正如我们对项目定位: Marriage is a new starting point in life, full of romance. Every day of companionship is writing a unique chapter for each other. As we position the project: 自然 融合 圆满 门厅/ Entrance 入口中心是一幅单色抽象艺术画,在峡谷的尽头,一道光芒乍现,带来动感与神秘。它象征着走向希望与未来,携手同行,迎接新的曙光。深色木纹与软石墙面增添了自然质感,配合暖色灯带,使入口结构更具层次感,同时凸显峡谷的视觉焦点,散发出当代优雅与艺术气息 The center of the entrance is a monochrome abstract art painting. At the end of the canyon, a ray of light suddenly appears, bringing dynamism and mystery. It symbolizes walking towards hope and the future, walking hand in hand, and welcoming a new dawn. The dark wood grain and soft stone walls add a natural texture, and the warm-colored light strips make the entrance structure more layered, while highlighting the visual focus of the canyon, exuding contemporary elegance and artistic atmosphere. 入口内部整体以深色系为基调,延续了门厅的深色木纹。镜面板不仅拉高了空间的高度,还将峡谷的画面倒映在顶面,宛如平静如水的湖面与峡谷交互。墙面的暖色灯带增添了空间的层次感 The interior of the entrance is based on dark colors, continuing the dark wood grain of the foyer. The mirror panel not only raises the height of the space, but also reflects the image of the canyon on the top surface, just like the interaction between the calm lake and the canyon. The warm-colored light strips on the wall add a sense of layering to the space. 过道/ Aisle 门厅右侧的软石延伸至顶面,配合圆形灯膜阵列排序至末端的圆形端景处,层层递进。端景处两个半圆的结合与圆环门把手,完美契合了最终的圆满基调,合二为一。同时,入口的冷色调与过道的暖色调形成对比,仿佛在冻结的峡谷中走向阳光 The soft stone on the right side of the foyer extends to the top surface, and is arranged in a circular light film array to the circular end scene at the end, layer by layer. The combination of the two semicircles at the end scene and the ring door handle perfectly match the final perfect tone, and the two are combined into one. At the same time, the cold color of the entrance contrasts with the warm color of the corridor, as if walking towards the sun in a frozen canyon. 化妆间/ Dressing Room 化妆间入口采用内退设计,配合顶面下挂的软石造型,延续了自然材质的美感。 T
  • 图片
  • 图片
  • 图片
  • 图片
  • 图片
  • 图片
  • 图片
  • 图片
  • 图片
  • 图片
  • 图片
  • 图片
  • 图片
  • 图片
  • 图片
  • 图片
  • 图片
  • 图片
  • 图片
  • 图片
  • 图片
  • 图片
  • 图片
  • 图片
  • 图片
  • 图片
  • 图片
  • 图片
  • 图片
  • 图片
  • 图片
  • 图片
  • 图片
  • 图片
  • 图片
  • 图片
  • 图片
  • 上一个 下一个
    2024第八届金腾奖 私宅(独居)丨私宅(多人居)丨餐饮丨酒店丨办公丨商业丨公共丨公益丨人物丨NEW100 jintengAWARD(小金_金腾奖组委会) 广州市海珠区琶洲大道68号华新中心21楼
    金腾奖视频号 金腾奖小红书号 监制:刘译遥
    统筹:张俊媚
    运营:赖钰炼 曹凯月 刘芳棋 小金
    新媒体:王贝贝 严洁 张文一
    技术:黄天佑 丁德昌
    最终解释权归金腾奖主办方所有