无设计
作品详情
  • Details of the work 标题横线
    头像或者logo
    图片 宣韩冬 云上设计师俱乐部特约推荐
    城市:南京
    公司: 形册空间设计事务所
    参赛作品: 无设计
    空间类型:公寓(150㎡以下)
    个人/公司简介:
    姓名:宣韩冬 公司:形册空间设计事务所 职务:设计总监 从业12年 毕业于南京艺术学院 进修于亚洲大学新包豪斯设计学院 设计理念:建立在建筑美学的基础上用艺术的手段去解决问题 获奖情况: 2015年 中国室内装饰协会——《全国优秀室内设计师》 2016年 第八届中国国际建筑装饰及设计艺术博览会“设博会” 《国际环艺创新设计大赛二等奖》 2018年 广州设计周/IFI国际室内建筑师团体联盟评为 《设计源.世界观.2018年度精英人物》 2019年 新浪地产中国住宅设计精英榜——《优秀设计奖》 2019年 广州设计周/40under40 中国(南京)设计杰出青年 2019年 上海设计周评 《新锐中国设计奖》 2019年 《4 ½木盒》荣登金堂奖全国年度杰出作品榜 2019年 D-life 设计与生活杂志编委 2020年 芒果奖—中国商业优胜奖 2020年 华语设计领袖榜《年度百位卓越设计人物奖》 2020年 中国设计头条年鉴《年度优秀设计项目》 2020年 DF国际空间设计大奖《年度别墅豪宅空间设计金奖》 2020年 广州设计周/40under40 中国(南京)设计杰出青年 2021年 广州设计周/40under40 中国(南京)设计杰出青年 2021年 金住奖——中国(南京)十大居住空间设计师 2022年 芒果奖——中国别墅创意奖 2023年 CIID认证—中室学室内建筑师
    设计说明 | Design Instruction
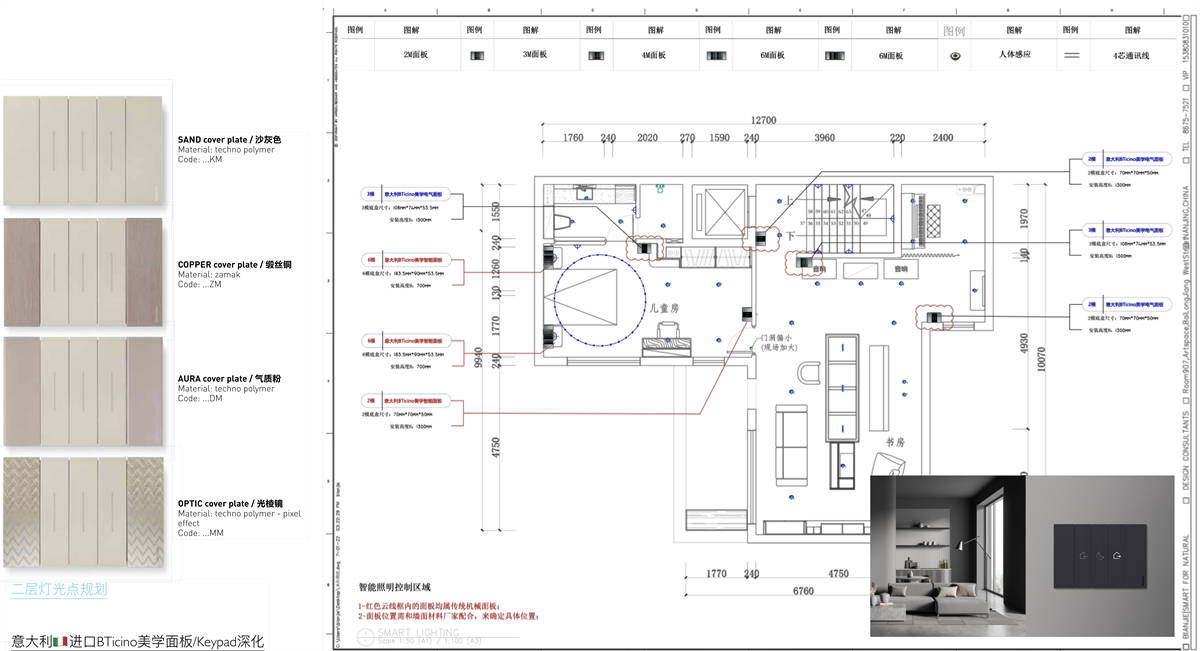
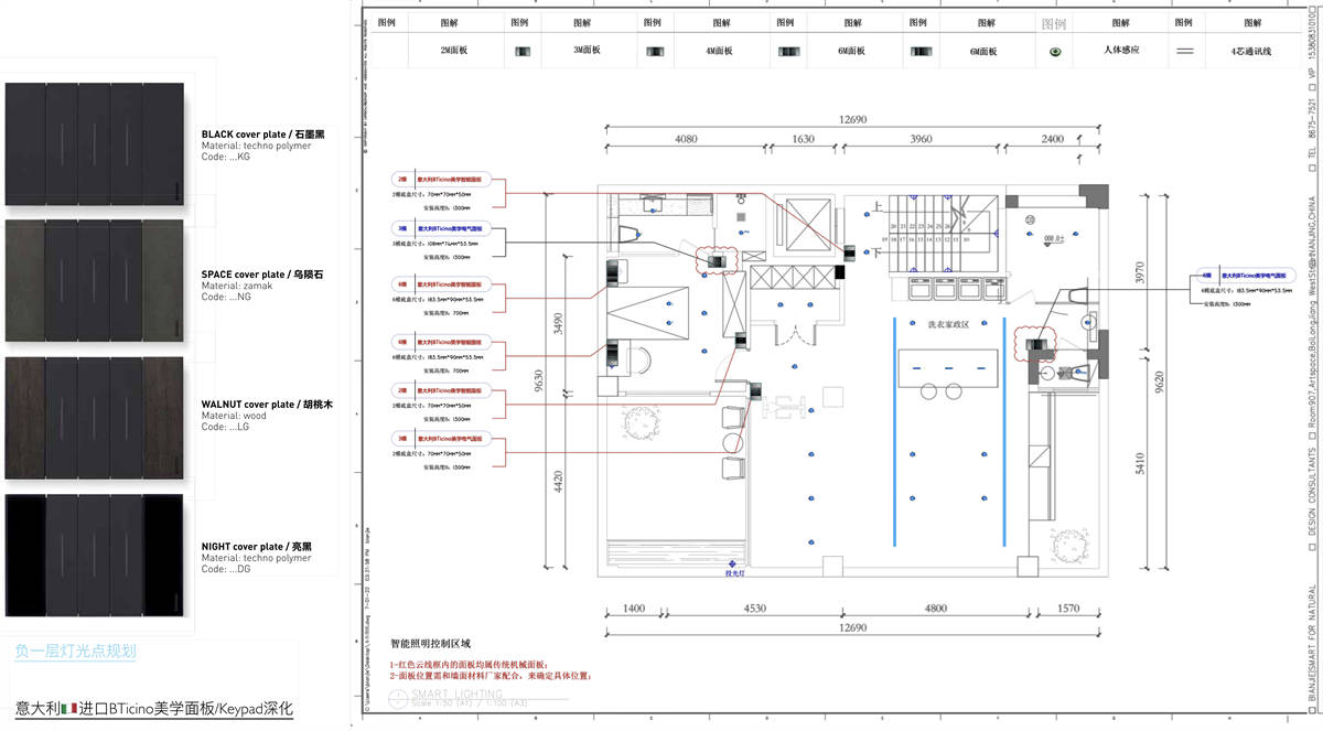
  • “房子所具有的功能,不单单是我们在里面居住。而是在这样一座住宅当中,融汇了我们对生活的理解。” --原研哉 生活本不该被设计 无设计说的是摒弃空间中不必要的装饰,让设计慢慢的渗透到人的感官当中去,让人有所感觉,而不仅仅是被强烈的视觉效果吸引。 无设计,不是没有设计,反而是处处需要用心设计;回到原点,重新审视我们周遭的设计,以最平易近人的方式来探讨设计的本质和内涵 思考什么是真正的幸福、什么是真正的生活。 这是一处毗邻南京明城墙的住宅别墅,护城河从别墅区的一侧缓缓流过,粼粼波光中折射出这座城市的历史记忆; 业主最初的职业也是一名室内设计师,第一次见面交谈甚欢,我们对居住空间的理念相同,达成了共同的默契。 设计的开展过程中更多围绕居住空间本身和实际生活需求作为出发点;尽可能摒弃了空间中的装饰手段,把设计重点更多放在遵循和探索生活的本质当中,通过空间的细部处理来体现主人对品质生活的理解和阐述 设计的细节从主人归家的第一步开始展开:落客停车,进门消杀,收纳仓储;同时全屋引入智能化的设计,使舒适感更加贴心!主人开车回家,车库门感应到主人车回来,自动打开车库门,同时感应灯光缓缓开启,迎接主人回家。即使业主一家出游不在家,也可以随时通过手机观看到家里的一切,并可远程控制。 每一个生活场景在设计师和业主的共同编排中反复推敲和修正,让空间和其中的每一件器物都更好的服务于一家人未来的生活; 负一负二层作为休闲健身和储物收纳空间,首先需要解决的就是通风和采光,设计师通过下沉式庭院和采光天井把阳光,空气,水,由地面引至负一层甚至负二层,让地下空间更好的得到了利用;同时安装了环境检测系统,可根据室内环境联动新风系统,自动调节室内温度适度。 一层并没有保留传统意义上的客厅,而是由餐厨一体化构建了整个一层公区的布局;客厅区域的智能化设计全面,观影模式,音乐模式,就餐模式,手机操作,一键开启,不同场合,完美的灯光氛围瞬间转化。 我们把这层的玄关定义成了出户玄关,除了附属的玄关收纳空间,还在一侧光线最好的位置通过玄关柜给老人区隔出一个晒太阳的专属空间;同时为老人设置了呼叫按铃,守护老人安全。感应灯守护老人起夜的安全。 二层只保留了一间卧室,开放空间中承载了夫妻和孩子共处时光,随手可取的书籍,张学友的黑胶唱片,和心爱的人对坐相望品一壶茶,最美好的时光值得被珍藏;卧室空间的智能化配置更加贴心。太阳落山,窗帘自动关闭,灯光缓缓亮起,感应灯发出温暖的光。 主人偏爱实木,为心爱的人定制的梳妆台,为老人贴心设计的木质扶手,为孩子量身打造的学习桌凳;即便是一家人围坐的餐桌,甚至是浴室里的定制一体化浴室柜,家里的每一件木作器具均体现设计师和业主的处处用心 在私宅设计中设计师应该扮演一个什么角色,不会是导演也不会是编剧,我觉得倒挺像玄关一侧的那面镜子,我们很有幸参与了一个又一个新家的构建,倾听着一个又一个业主对生活的理解和感悟,再把好的精彩的画面反射进下一次的设计当中去; 生活本不该被设计,却也处处需要经营处处需要设计。
  • 图片
  • 图片
  • 图片
  • 图片
  • 图片
  • 图片
  • 图片
  • 图片
  • 图片
  • 图片
  • 图片
  • 图片
  • 图片
  • 图片
  • 图片
  • 图片
  • 图片
  • 图片
  • 图片
  • 图片
  • 图片
  • 图片
  • 图片
  • 图片
  • 图片
  • 图片
  • 图片
  • 图片
  • 图片
  • 图片
  • 图片
  • 图片
  • 图片
  • 图片
  • 图片
  • 图片
  • 图片
  • 图片
  • 图片
  • 上一个 下一个
    2024第八届金腾奖 私宅(独居)丨私宅(多人居)丨餐饮丨酒店丨办公丨商业丨公共丨公益丨人物丨NEW100 jintengAWARD(小金_金腾奖组委会) 广州市海珠区琶洲大道68号华新中心21楼
    金腾奖视频号 金腾奖小红书号 监制:刘译遥
    统筹:张俊媚
    运营:赖钰炼 曹凯月 刘芳棋 小金
    新媒体:王贝贝 严洁 张文一
    技术:黄天佑 丁德昌
    最终解释权归金腾奖主办方所有