金鼎状元府
作品详情
  • Details of the work 标题横线
    头像或者logo
    图片 宣韩冬 云上设计师俱乐部特约推荐
    城市:南京
    公司: 形册空间设计事务所
    参赛作品: 金鼎状元府
    空间类型:别墅
    个人/公司简介:
    姓名:宣韩冬 公司:形册空间设计事务所 职务:设计总监 从业12年 毕业于南京艺术学院 进修于亚洲大学新包豪斯设计学院 设计理念:建立在建筑美学的基础上用艺术的手段去解决问题 获奖情况: 2015年 中国室内装饰协会——《全国优秀室内设计师》 2016年 第八届中国国际建筑装饰及设计艺术博览会“设博会” 《国际环艺创新设计大赛二等奖》 2018年 广州设计周/IFI国际室内建筑师团体联盟评为 《设计源.世界观.2018年度精英人物》 2019年 新浪地产中国住宅设计精英榜——《优秀设计奖》 2019年 广州设计周/40under40 中国(南京)设计杰出青年 2019年 上海设计周评 《新锐中国设计奖》 2019年 《4 ½木盒》荣登金堂奖全国年度杰出作品榜 2019年 D-life 设计与生活杂志编委 2020年 芒果奖—中国商业优胜奖 2020年 华语设计领袖榜《年度百位卓越设计人物奖》 2020年 中国设计头条年鉴《年度优秀设计项目》 2020年 DF国际空间设计大奖《年度别墅豪宅空间设计金奖》 2020年 广州设计周/40under40 中国(南京)设计杰出青年 2021年 广州设计周/40under40 中国(南京)设计杰出青年 2021年 金住奖——中国(南京)十大居住空间设计师 2022年 芒果奖——中国别墅创意奖 2023年 CIID认证—中室学室内建筑师
    设计说明 | Design Instruction
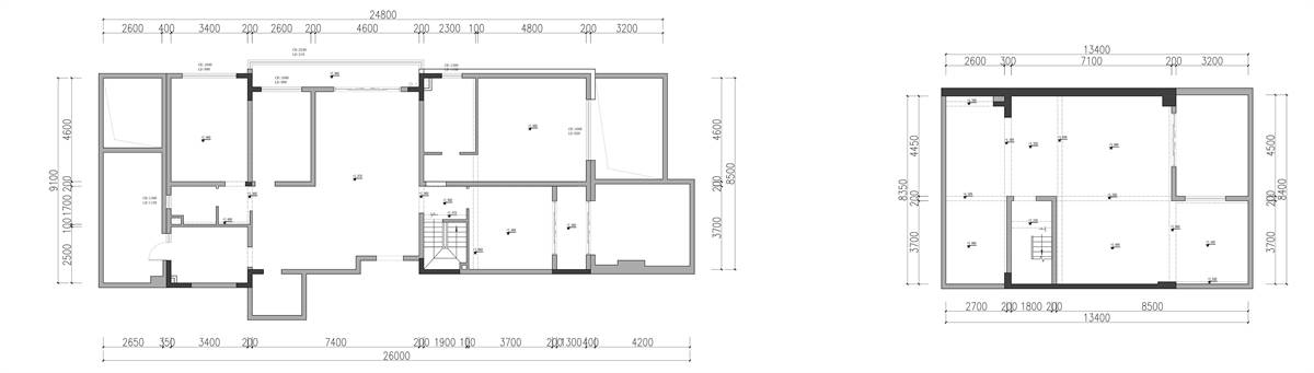
  • 这是位于南京市中心的一套下叠别墅。地块儿稀缺,寸土寸金,一层带院子,地下80平方,交付时是5米的挑空。业主三代同堂, 功能上:需要满足不同年龄段居住者的生活需求。老人需要宽敞明亮的厨房,孩子需要学习玩耍空间,同时还需要健身,棋牌,饮茶,影音,开放式书房,开放式西厨岛台等休闲功能空间,还需要保姆间,保姆卫生间,洗衣房等后场功能空间。在这样一个300多平的下叠别墅要放得下这么多功能,满足各个居住者的需求,难度还是很大的。 结构上,地下两层的结构需要考虑如何引入光线,空气及防水。整个房子的进深很长,一楼单侧采光,对于各个空间的采光需求很强。因此设计师保留了所有的下沉式空间,将楼梯电梯放置在房子的中间地带,使上下楼之间可以达到空气的流动,光线也能下到地下空间。同时采用了观光电梯,使原本昏暗的电梯厅变得明亮成为全家的焦点。 设计师在一楼客餐厅的吊顶做了个斜45度的椭圆形吊顶。这是很巧妙的设计。开发商的原建筑结构呢餐厅的位置是一个房间,设计师把这个房间打掉之后改成了餐厅客厅一体化,原先的餐厅的位置是在现在的岛台的位置。现在改完之后的空间,是客厅餐厅并行,西厨岛台在一侧,三个空间在一个大的空间之内,这就产生了区域分割的问题。怎么协调统一的把这三个功能在一个空间之内,能够做到有机的结合,又互不干扰,又能够有空间的界定? 方形的吊顶过于呆板,圆形的吊顶在这个空间里面又显的过时了,过于正统,不符合三个功能空间的定位。所以我们用一个斜向45度椭圆的吊顶,把这三个空间做一个有机的结合,解决了这三个功能空间的区域划分跟各自独立又各自又又协调统一的问题。 主要材料的应用: 全屋采用进口艺术涂料,细腻的手工涂刷纹理有很强的质感,环保级别更高,对于室内的湿度气味有一定的调节作用。 木饰面是一层公共空间运用较多的地方,运用多种造型及收口方式,特别的弧形造型是客厅里重要的亮点。 本案大理石运用的非常多,餐厅的奢石拼花背景,地下室挑空层巨大的大理石背景奠定了空间的质感,紫色奢石点缀是点睛之笔。 同时金属运用也很多,除了收口中的大量运用,钢板的楼梯扶手,线条简洁流畅,红色的贯穿负一负二,是实用的楼梯,也是艺术的呈现。
  • 图片
  • 图片
  • 图片
  • 图片
  • 图片
  • 图片
  • 图片
  • 图片
  • 图片
  • 图片
  • 图片
  • 图片
  • 图片
  • 图片
  • 图片
  • 图片
  • 图片
  • 上一个 下一个
    2024第八届金腾奖 私宅(独居)丨私宅(多人居)丨餐饮丨酒店丨办公丨商业丨公共丨公益丨人物丨NEW100 jintengAWARD(小金_金腾奖组委会) 广州市海珠区琶洲大道68号华新中心21楼
    金腾奖视频号 金腾奖小红书号 监制:刘译遥
    统筹:张俊媚
    运营:赖钰炼 曹凯月 刘芳棋 小金
    新媒体:王贝贝 严洁 张文一
    技术:黄天佑 丁德昌
    最终解释权归金腾奖主办方所有