言笑晏晏
作品详情
  • Details of the work 标题横线
    头像或者logo
    图片 李漫 云上设计师俱乐部特约推荐
    城市:南京
    公司: 南京大品装饰
    参赛作品: 言笑晏晏
    空间类型:公寓(150㎡以下)
    个人/公司简介:
    个人履历: 2007年毕业于南京金陵科技学院艺术设计专业 2006年10月至2007年9月年与南京某知名装饰设计公司跟随董龙先生学习 2009年9月 入职DoLong设计 任职主任设计师 2013年任南京大品装饰 首席设计师 设计理念: 设计者的主要工作在于空间以及居住者的解读,通过专业知识寻找适合的方式。
    设计说明 | Design Instruction
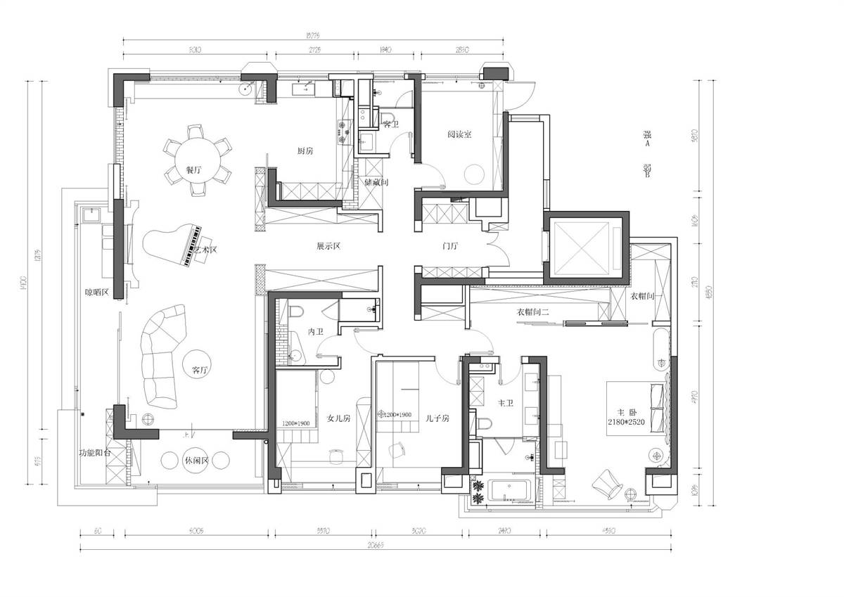
  • 因项目本身的条件限制,设计师在对原始户型结构深入分析后,灵活地展开空间布局设计与改造,将室内进行拆解、整合,最大程度贴合业主想要的装修风格和居家氛围,构建现代生活高品质的奢想家。 设计以品质生活为基调,用简练、艺术的手法营造空间精致美感,高度统一的设计元素在各个细节之中呈现,通过艺术语言融合当代美学、文化与功能,提供艺术的滋养和内在精神世界的归属。 客厅整体硬装色彩以纯色为主导,除了灯光的渲染,没有强烈的风格元素,让软装家具在空间中得以铺开,无言展示自我属性,随性自然。充满活力的橙色在空间中跃然,与绿色相映成趣,为室内注入生命的活力。 着重于空间的生长,充满仪式感的入户门厅层层递进,剥离外界的嘈杂与繁乱。设计更加注重人与场景的互动,伴随着不断前行地脚步,个性化情境体验不断向室内延伸,引领业主走入另一种生活场景的体验。 设计以简洁的线条和块面的穿插构成空间的层次秩序,大理石、金属、布艺等元素让室内品质升华,材质的交叠在光线下得到诠释,人与空间的关系也在此刻得到融合。 设计从布局到陈列,都遵循疏密有度的视觉节奏,于不经意间触动心灵深处。洗去浮层,在都市喧嚣中拥有一方宁静之地,安放身心,回归自我。空间的每一处都在传递着情绪和故事,温润无言,细腻无声。
  • 图片
  • 图片
  • 图片
  • 图片
  • 图片
  • 图片
  • 图片
  • 图片
  • 图片
  • 图片
  • 图片
  • 图片
  • 图片
  • 图片
  • 图片
  • 图片
  • 图片
  • 图片
  • 图片
  • 图片
  • 图片
  • 图片
  • 图片
  • 图片
  • 图片
  • 图片
  • 图片
  • 图片
  • 图片
  • 图片
  • 图片
  • 图片
  • 上一个 下一个
    2024第八届金腾奖 私宅(独居)丨私宅(多人居)丨餐饮丨酒店丨办公丨商业丨公共丨公益丨人物丨NEW100 jintengAWARD(小金_金腾奖组委会) 广州市海珠区琶洲大道68号华新中心21楼
    金腾奖视频号 金腾奖小红书号 监制:刘译遥
    统筹:张俊媚
    运营:赖钰炼 曹凯月 刘芳棋 小金
    新媒体:王贝贝 严洁 张文一
    技术:黄天佑 丁德昌
    最终解释权归金腾奖主办方所有