时间的温暖痕迹
作品详情
  • Details of the work 标题横线
    头像或者logo
    图片 张淑琴 云上设计师俱乐部特约推荐
    城市:南京
    公司: 元洲·沐墅设计
    参赛作品: 时间的温暖痕迹
    空间类型:公寓(150㎡以下)
    个人/公司简介:
    个人经历 2008年开始其职业设计 2013-2016年加入东易日盛 2016至今成立(太仓元洲·沐墅 装饰) 创始人 设计理念 居家空间:永远是为人服务,有人.有情感.有互动的地方才叫家~ 工装空间:极具功利性以及商业诉求的倾倒~ 代表作品 主要案例与楼盘苏州/昆山/太仓/ 苏州:东方之门 苏州中心等 昆山:花都艺墅 三水萧林别墅 世茂东一号别墅 绿地21新城 太仓:积水一期裕沁庭 向东岛 太仓院子上海公管 东港冰河花园等
    设计说明 | Design Instruction
  • 设计是可以改变生活的存在,它可以利用空间将一家人紧密连接,在一起让时光在这里驻足。这栋230平的别墅位于太仓,属于一个幸福的家庭,年轻的业主夫妻不被现代快节奏的生活牵着走,他们喜欢放慢脚步,感受生活的细节,创造仪式感和惊喜。设计师为他们创建了这个自带复古滤镜的家,从色彩、材质以及氛围的把控塑造,留住过去的慢节奏生活方式,让空间里的一切都是松弛、温暖而富有艺术性的,充满人文关怀,美的生活在这里自然发生。
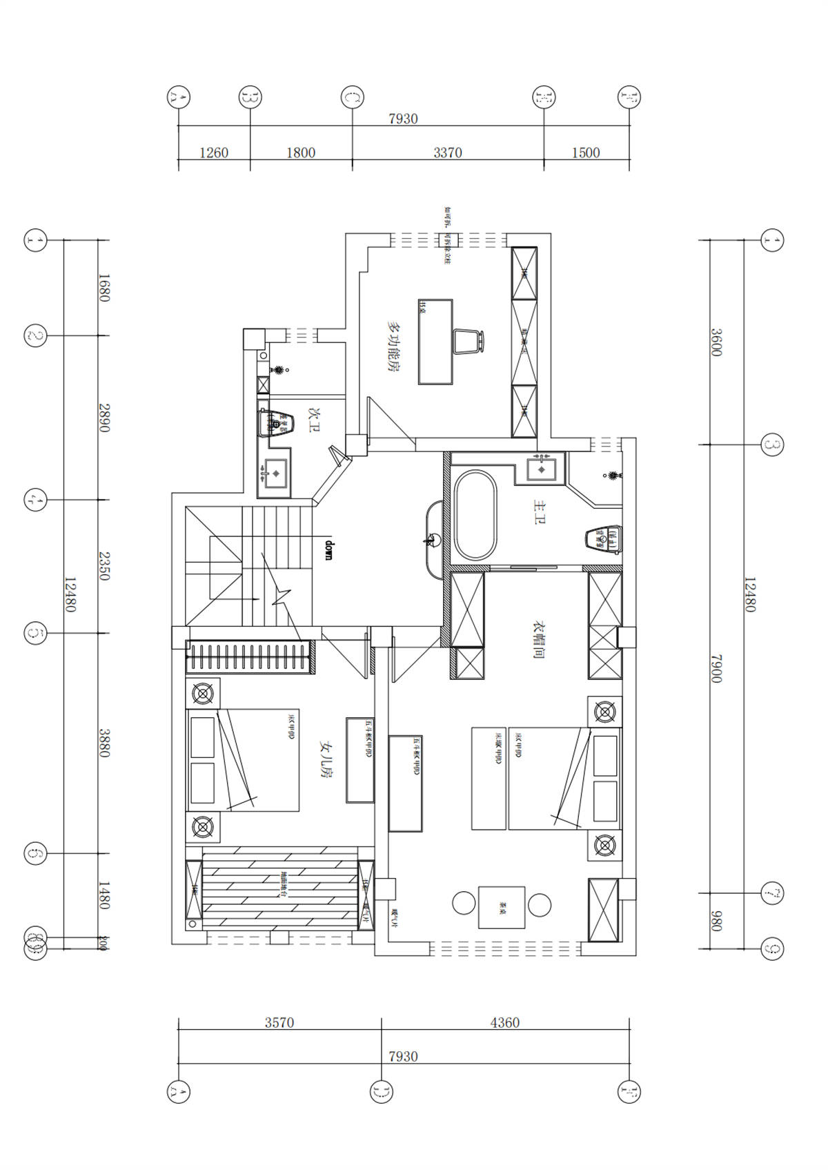
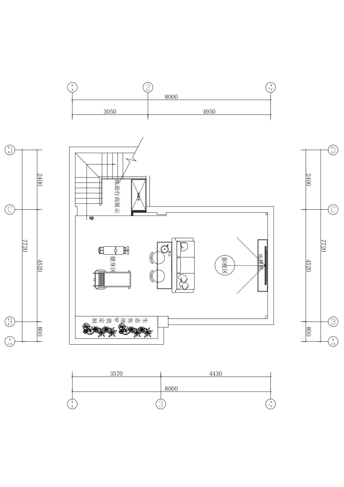
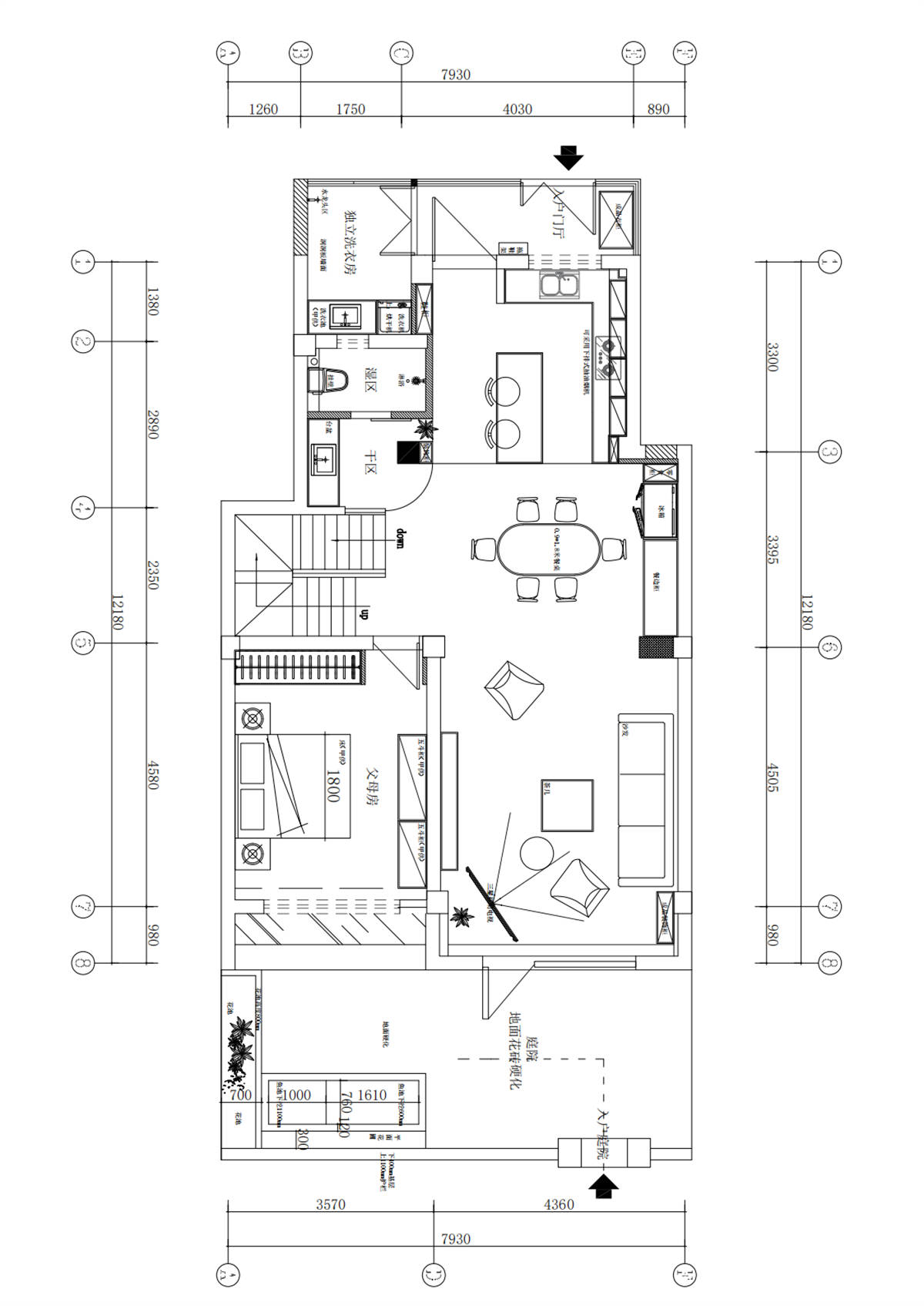
  • 图片
  • 图片
  • 图片
  • 图片
  • 图片
  • 图片
  • 图片
  • 图片
  • 图片
  • 图片
  • 图片
  • 图片
  • 图片
  • 图片
  • 图片
  • 图片
  • 图片
  • 图片
  • 图片
  • 图片
  • 图片
  • 图片
  • 图片
  • 图片
  • 图片
  • 图片
  • 图片
  • 图片
  • 图片
  • 图片
  • 上一个 下一个
    2024第八届金腾奖 私宅(独居)丨私宅(多人居)丨餐饮丨酒店丨办公丨商业丨公共丨公益丨人物丨NEW100 jintengAWARD(小金_金腾奖组委会) 广州市海珠区琶洲大道68号华新中心21楼
    金腾奖视频号 金腾奖小红书号 监制:刘译遥
    统筹:张俊媚
    运营:赖钰炼 曹凯月 刘芳棋 小金
    新媒体:王贝贝 严洁 张文一
    技术:黄天佑 丁德昌
    最终解释权归金腾奖主办方所有