公园壹号
作品详情
  • Details of the work 标题横线
    头像或者logo
    图片 高海洋 云上设计师俱乐部特约推荐
    城市:南京
    公司: 叁兀空间设计
    参赛作品: 公园壹号
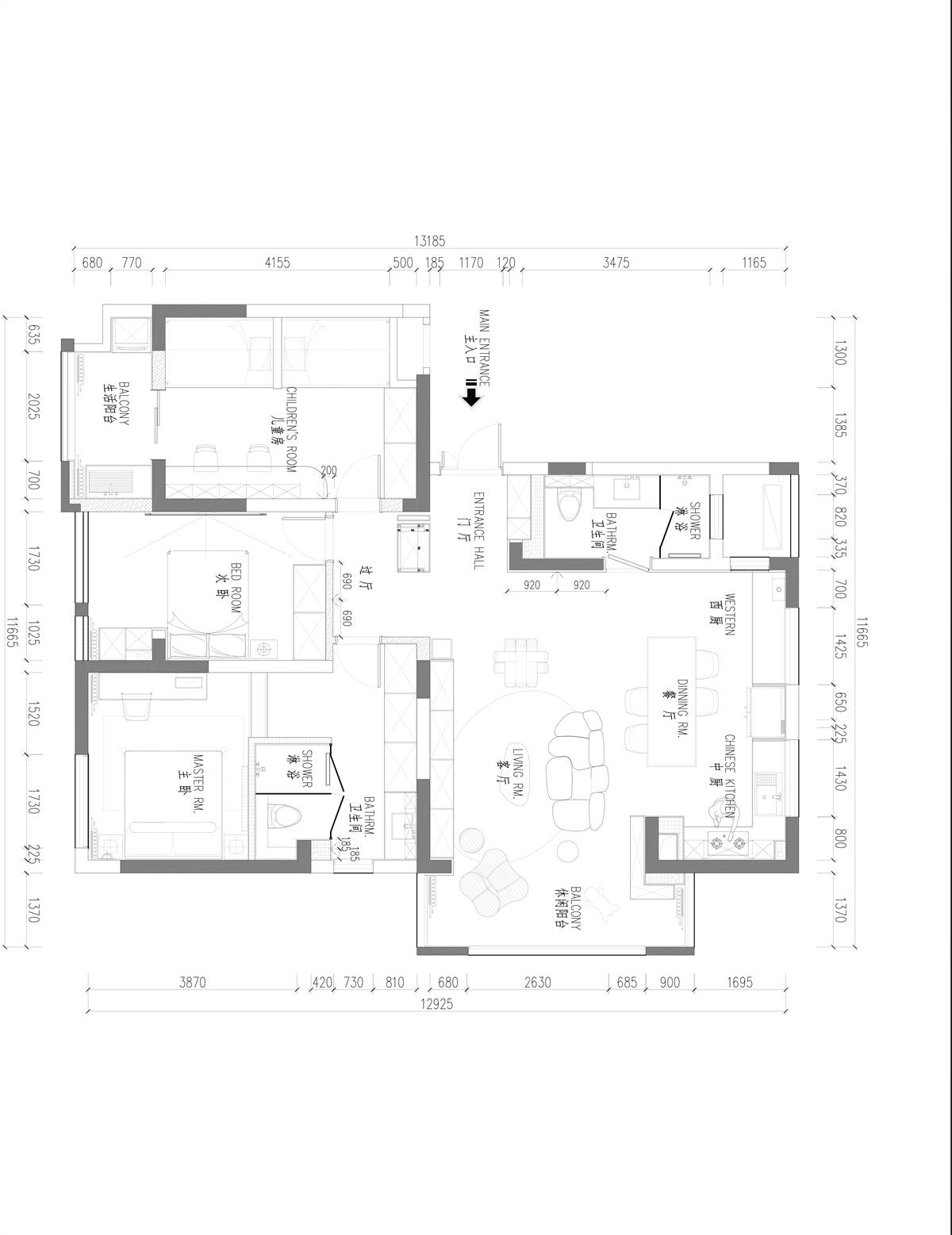
    空间类型:公寓(150㎡以下)
    个人/公司简介:
    高海洋 Ocean_G 南京叁兀空间设计 创始人 江苏名象智造设计 设计总监 北京博苑教育集团 环境软装设计顾问 南京云上设计师俱乐部 设计金陵共建人 长三角精英设计圈“精设汇”荣誉成员 凤凰网,设计说频道专访设计师 所获荣誉: 第四届Hi-Design室内设计大赛:公寓组三等奖(五矿玖玺台501);创意设计奖(玛赛客快餐厅) 2019德国高仪.中国住宅设计精英榜.江苏榜 优秀奖
    设计说明 | Design Instruction
  • 八月,南京的酷暑依然让人烦躁难耐,家乡的小镇却还吹拂着轻柔的晚风。帮最好的兄弟设计的房子,没有像以往那样选择现代极简的调调,而是选择了闲适风。房子的实用面积有120㎡,平时只有老婆带孩子在家,我尽可能将空间打开,将空间让给公区,给女主人留出直播空间,以及给孩子们流出玩耍的空间。
  • 图片
  • 图片
  • 图片
  • 图片
  • 图片
  • 图片
  • 图片
  • 图片
  • 图片
  • 图片
  • 图片
  • 图片
  • 图片
  • 图片
  • 图片
  • 图片
  • 图片
  • 图片
  • 图片
  • 图片
  • 图片
  • 图片
  • 图片
  • 图片
  • 图片
  • 图片
  • 图片
  • 图片
  • 图片
  • 图片
  • 图片
  • 图片
  • 图片
  • 图片
  • 图片
  • 图片
  • 图片
  • 图片
  • 图片
  • 图片
  • 图片
  • 上一个 下一个
    2024第八届金腾奖 私宅(独居)丨私宅(多人居)丨餐饮丨酒店丨办公丨商业丨公共丨公益丨人物丨NEW100 jintengAWARD(小金_金腾奖组委会) 广州市海珠区琶洲大道68号华新中心21楼
    金腾奖视频号 金腾奖小红书号 监制:刘译遥
    统筹:张俊媚
    运营:赖钰炼 曹凯月 刘芳棋 小金
    新媒体:王贝贝 严洁 张文一
    技术:黄天佑 丁德昌
    最终解释权归金腾奖主办方所有