紫金叠院
作品详情
  • Details of the work 标题横线
    头像或者logo
    图片 王高建 云上设计师俱乐部特约推荐
    城市:南京
    公司: 壹石空间设计
    参赛作品: 紫金叠院
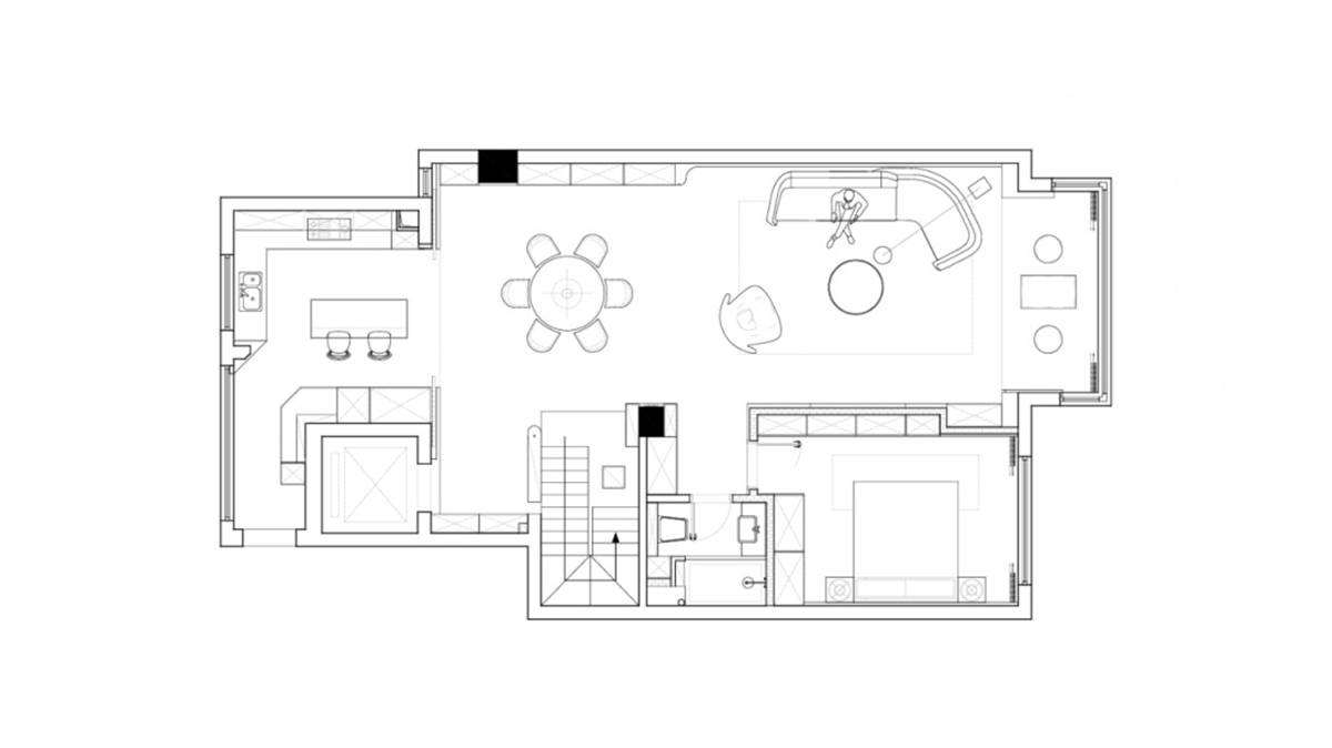
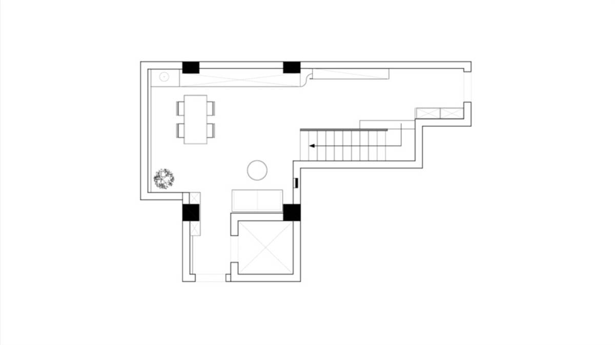
    空间类型:公寓(150㎡以下)
    个人/公司简介:
    王高建 壹石空间设计,创始人&设计总监,从业15年,追求品位与个性化设计,尊重客户的需求与喜爱, 设计上坚持实用、唯美、创新为主,做有温度的设计。
    设计说明 | Design Instruction
  • 让家与美学相遇。 业主对家的期待,希望是打破自己现有的喜好,愿意站在设计师的审美向上延伸,不固守,不执念,愿意改变和接纳,这本身就是一种难能可贵的品质。主动引导自己成为自己想成为的人,打造想要的环境,正如业主欣赏的稻盛和夫所说环境造就人,圈子改变人。家是我们的第一环境,所以要极为珍视它。
  • 图片
  • 图片
  • 图片
  • 图片
  • 图片
  • 图片
  • 图片
  • 图片
  • 图片
  • 图片
  • 图片
  • 图片
  • 图片
  • 图片
  • 图片
  • 图片
  • 图片
  • 图片
  • 图片
  • 图片
  • 图片
  • 图片
  • 图片
  • 图片
  • 图片
  • 图片
  • 图片
  • 图片
  • 图片
  • 图片
  • 图片
  • 图片
  • 图片
  • 图片
  • 图片
  • 图片
  • 图片
  • 图片
  • 图片
  • 图片
  • 图片
  • 图片
  • 图片
  • 图片
  • 图片
  • 图片
  • 图片
  • 图片
  • 上一个 下一个
    2024第八届金腾奖 私宅(独居)丨私宅(多人居)丨餐饮丨酒店丨办公丨商业丨公共丨公益丨人物丨NEW100 jintengAWARD(小金_金腾奖组委会) 广州市海珠区琶洲大道68号华新中心21楼
    金腾奖视频号 金腾奖小红书号 监制:刘译遥
    统筹:张俊媚
    运营:赖钰炼 曹凯月 刘芳棋 小金
    新媒体:王贝贝 严洁 张文一
    技术:黄天佑 丁德昌
    最终解释权归金腾奖主办方所有