书香门第
作品详情
  • Details of the work 标题横线
    头像或者logo
    图片 孙宴亭 云上设计师俱乐部特约推荐
    城市:南京
    公司: 廷里建筑空间设计
    参赛作品: 书香门第
    空间类型:公寓(150㎡以下)
    个人/公司简介:
    设计理念 设计之本质,是在条件严格限制下,克制冗杂想法,控制丰富细节,使事物呈现出一种非此不可的状态。 职业履历 8年建筑设计+8年室内设计经验,致力于提供美好、有趣且系统的空间问题解决方案。 100+全案项目落地经验, 50+实景拍摄项目案例。 主要项目 《疏影》 《絮语》 《尽致》 《镜·界》 《滤镜》 《午茶梦晴》 《大隐》 《折衷主义的表达》 《多维度曲拱元素推演多功能复古空间》…… 奖项荣誉 上海设计周新锐设计奖(2023-2024)TOP100 中国设计星(2022-2023)全国36强候选人 她设计奖(2022-2023)年度优秀软装作品 上海设计周新锐设计奖(2023-2024)TOP100 PCHOUSE AWARD 2023设计师/机构奖全国TOP100 第十一届Hi-Design室内设计大赛(2023)优秀奖 第十届Hi-Design室内设计大赛(2022)南京设计精英奖 第十一届Hi-Design室内设计大赛(2023)优秀奖 PCHOUSE AWARD 2023设计师/机构奖全国TOP100 第十届Hi-Design室内设计大赛(2022)南京设计精英奖 PCHOUSE AWARD 2021中国私宅设计年度评选TOP100
    设计说明 | Design Instruction
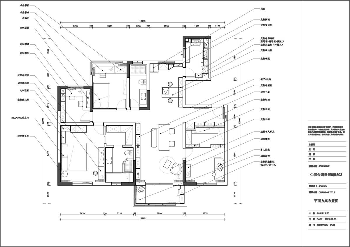
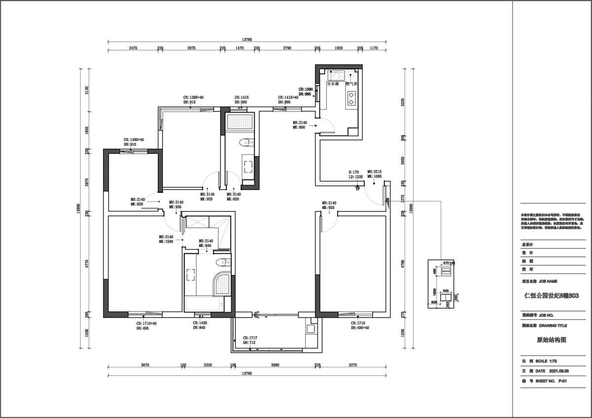
  • 每个家都应该因为业主不同的生活方式、气质、喜好和经历,而拥有自己独特的调性。好的设计就应该让每个家都能适配业主的独特气质才对呀,让人一进门就觉得:奥,这就应该是他们家的样子呐! 这是一个满溢书香氛围的家,妈妈和女儿都是极其爱书之人,除了每个房间都设置了能容纳海量书籍的书柜、书架外,客厅也摒弃了传统多人沙发,改为2.2m大书桌+单人沙发的形式,一家人可以在这里一起看书学习,一起看电影或者做做手工、聊聊天。 作为精装修交付住宅,我们根据业主需求,在现有户型基础上也做了有限改造: 1. 将原先的玄关墙体向南面多功能房间方向移动,使得玄关多出了一整面的储物空间,不同深度可以满足鞋、帽、衣服、杂物的不同收纳需求;我们又从多功能房间里偷出4.5平方的面积,将一间衣帽间藏在大书柜后面,使得空间取得了最大化的利用率。 2. 客餐厅摒弃了传统多人沙发,改为2.2m大书桌+单人沙发的形式,以学习桌为中心,把家里打造出更加浓郁的学习氛围,暗藏式的投影也能满足一家人偶尔看电影的需求。餐厅由岛台、西厨区和餐边柜组合而成,分门别类的收纳是生活整洁美观的保证。 3. 儿童房以实木成品家具为主,可灵活组合,适应孩子不同年龄段的成长需要。高低床充分利用层高空间,上面是睡眠区域,下面则是孩子的玩耍区域。童书也是这个空间必不可少的装饰,整个家里都书香氛围四溢。 4. 书房、多功能区、客厅都设置了整面的大书柜,充分满足业主对于书籍收纳的需要。主卧床头两侧也增加了书籍的摆放区,同时设置阅读壁灯,方便享受睡前读书的好时光。 5. 本案为现代简约风格,空间色调以原木+棕咖+米灰为主,柔润的木头奠定空间的温和基调,柔软的布艺烘托出空间的亲切感受,几许绿意塑造出空间的盎然活力,在多层次的灯光勾勒下,整体呈现出温暖舒适的居家氛围。 家是因为居住在里面的人而成为了它现在的样子,所以我们和一家爱书之人共同打造了这样一个书香门第。坚持以人为本,做真正个性化的设计,是我们不变的初心。
  • 图片
  • 图片
  • 图片
  • 图片
  • 图片
  • 图片
  • 图片
  • 图片
  • 图片
  • 图片
  • 图片
  • 图片
  • 图片
  • 图片
  • 图片
  • 图片
  • 图片
  • 图片
  • 图片
  • 图片
  • 图片
  • 图片
  • 图片
  • 图片
  • 图片
  • 图片
  • 图片
  • 图片
  • 图片
  • 图片
  • 图片
  • 图片
  • 图片
  • 图片
  • 图片
  • 图片
  • 图片
  • 图片
  • 图片
  • 图片
  • 图片
  • 图片
  • 图片
  • 图片
  • 图片
  • 图片
  • 图片
  • 图片
  • 图片
  • 图片
  • 图片
  • 图片
  • 图片
  • 图片
  • 图片
  • 图片
  • 图片
  • 图片
  • 上一个 下一个
    2024第八届金腾奖 私宅(独居)丨私宅(多人居)丨餐饮丨酒店丨办公丨商业丨公共丨公益丨人物丨NEW100 jintengAWARD(小金_金腾奖组委会) 广州市海珠区琶洲大道68号华新中心21楼
    金腾奖视频号 金腾奖小红书号 监制:刘译遥
    统筹:张俊媚
    运营:赖钰炼 曹凯月 刘芳棋 小金
    新媒体:王贝贝 严洁 张文一
    技术:黄天佑 丁德昌
    最终解释权归金腾奖主办方所有