致造
作品详情
  • Details of the work 标题横线
    头像或者logo
    图片 孙宴亭 云上设计师俱乐部特约推荐
    城市:南京
    公司: 廷里建筑空间设计
    参赛作品: 致造
    空间类型:公寓(150㎡以下)
    个人/公司简介:
    设计理念 设计之本质,是在条件严格限制下,克制冗杂想法,控制丰富细节,使事物呈现出一种非此不可的状态。 职业履历 8年建筑设计+8年室内设计经验,致力于提供美好、有趣且系统的空间问题解决方案。 100+全案项目落地经验, 50+实景拍摄项目案例。 主要项目 《疏影》 《絮语》 《尽致》 《镜·界》 《滤镜》 《午茶梦晴》 《大隐》 《折衷主义的表达》 《多维度曲拱元素推演多功能复古空间》…… 奖项荣誉 上海设计周新锐设计奖(2023-2024)TOP100 中国设计星(2022-2023)全国36强候选人 她设计奖(2022-2023)年度优秀软装作品 上海设计周新锐设计奖(2023-2024)TOP100 PCHOUSE AWARD 2023设计师/机构奖全国TOP100 第十一届Hi-Design室内设计大赛(2023)优秀奖 第十届Hi-Design室内设计大赛(2022)南京设计精英奖 第十一届Hi-Design室内设计大赛(2023)优秀奖 PCHOUSE AWARD 2023设计师/机构奖全国TOP100 第十届Hi-Design室内设计大赛(2022)南京设计精英奖 PCHOUSE AWARD 2021中国私宅设计年度评选TOP100
    设计说明 | Design Instruction
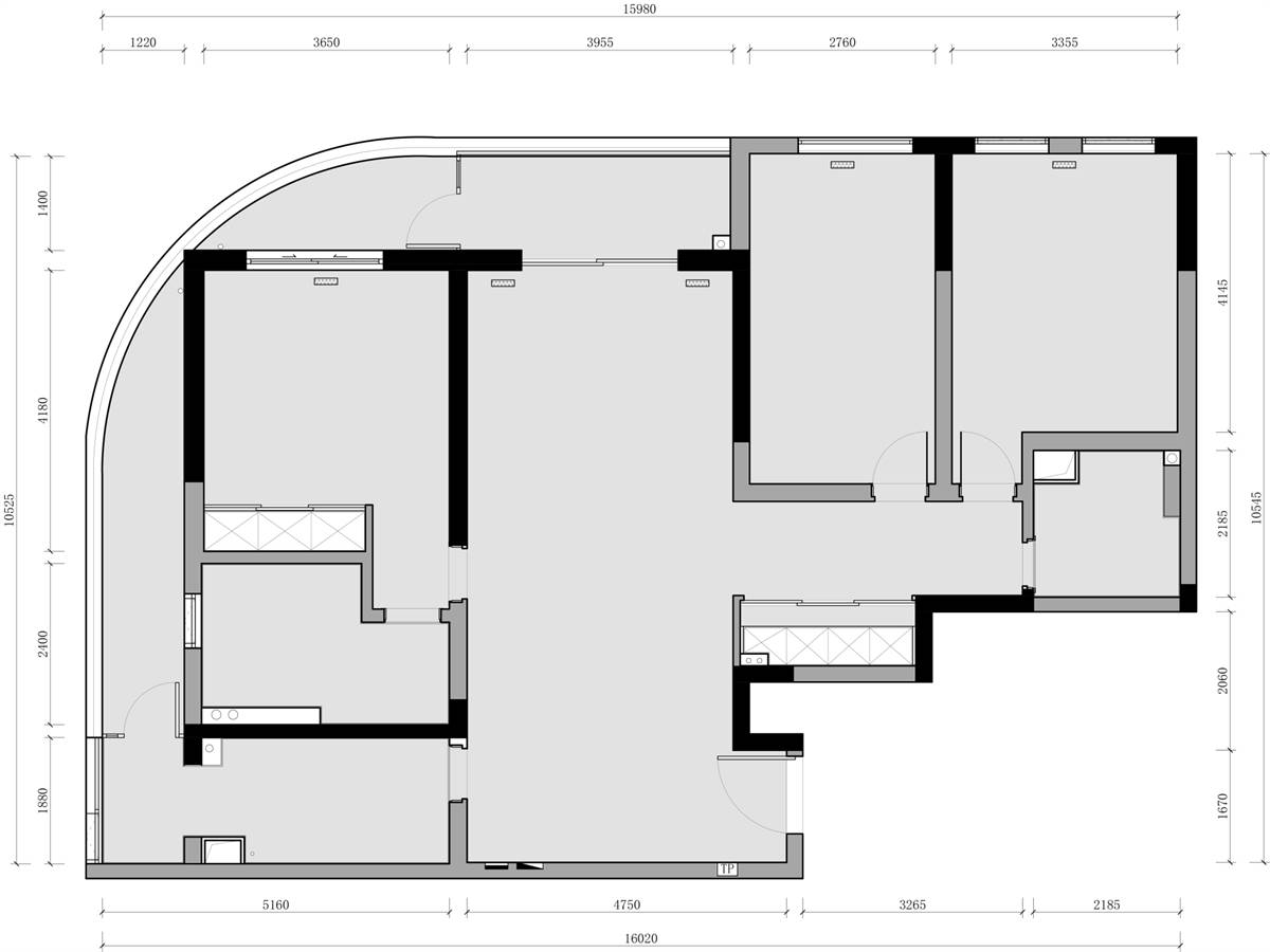
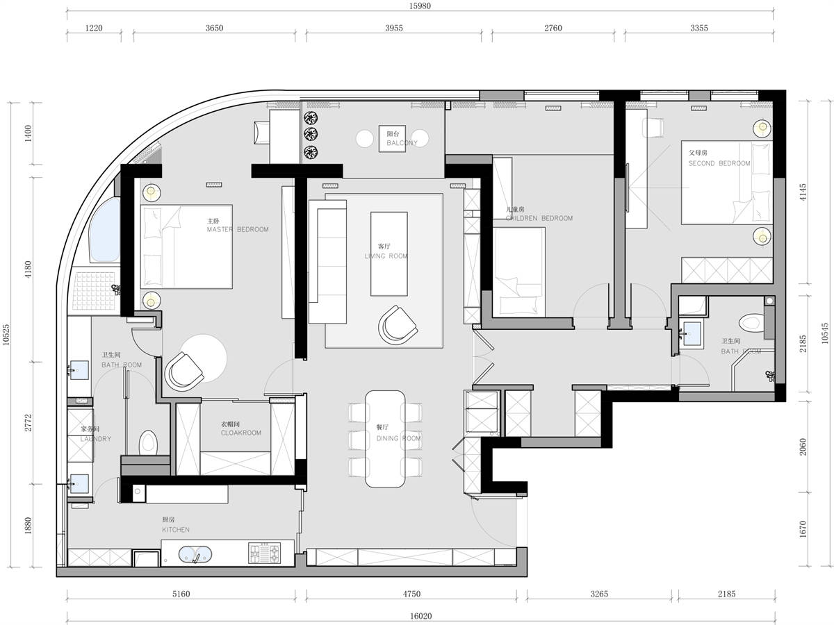
  • 每个家都应该因为业主不同的生活方式、气质、喜好和经历,而拥有自己独特的调性。好的设计就应该让每个家都能适配业主的独特气质才对呀,让人一进门就觉得:奥,这就应该是他们家的样子呐! 本案业主是一对可爱的年轻夫妇,两位均在银行工作,习惯周末去高档酒店享受生活。所以他们对此次装修的憧憬是家要和高档酒店一样,现代、高级;有高档酒店那样的独立衣帽间、三分离卫生间和全景大浴缸。所以我们一起呈现了这样一个充满酒店味道的台式禅意风格的家。 褪去了精装修原有的模样,她的家变身为高级感满满的台式酒店风,更有270度全景落地窗和大浴缸,就问谁看了不羡慕啊😆 把主卫改成主卧衣帽间,把阳台纳入主卧变成四件套豪华卫生间,仅需5步,立即将精装阳台改造成270度全景浴缸房!是谁狠狠心动了?! 在平面规划上,我们做了如下尝试:我们将20m的绝版弧形大阳台规划到6个区域中,由南至东分别为儿童房、客餐厅、主卧、主卫、洗衣房、厨房,在扩大各个空间实际使用面积的同时,使得空间规划更加合理了。在此基础上,儿童房和客厅得以通过地台联通,游玩动线多了一种可能;客餐厅通过纳入阳台进一步扩大了,空间变得更加宽敞明亮;主卧原先只有一个不连通室外的小窗,想透气要绕一大圈到客厅,这部分阳台纳入主卧后成功变身主卧自带的小书房,现在每天都可以走到窗边自由呼吸了,地标景观“南京眼”也尽收眼底;原先的主卫也有同样的问题,蜷于户型中心位置且没有直通室外的窗户,不仅压缩主卧的空间,空气也难以流通,重新规划平面后将东侧阳台变为新的卫生间,不仅拥有了270度全景落地窗和超级享受的大浴缸,还实现了双台盆和四分离;原先的卫生间位置腾出来一部分安排了独立的衣帽间,主卧面积变大的同时储物空间也大大增加了;厨房和主卫通过洗衣房形成了洄游动线,满足了业主小两口和老人同住的情况下方便又互不打扰的需求。 在调性把控上,禅意台式风是我们设计思路的出发点。色与质作为空间的第一感受被首先考虑,我们用烟熏橡木与黑白根大理石烘托出沉稳静谧的空间氛围,灰色基调和刻意留白让空间保持张弛有度的呼吸感,红色植物袋鼠爪成为禅意感的点睛之笔。 硬装上,遵循体块构成的法则,我们协调点、线、面、体的比例并均衡关系,尝试用灯光勾勒体块形态,并渲染空间的氛围,致力于营造和提升生活的品质。 令人开心的是,项目交付后我的可爱业主惊呼:“我家好像高档酒店噢!不,比酒店还要好!”还有什么比超出业主预期更令设计工作者欣慰的呢?这就是我们工作的原动力和意义所在呀,为了世界上多一个人从床上一睁眼就获得幸福感,为了世界的美好角落因为我们多一点点。
  • 图片
  • 图片
  • 图片
  • 图片
  • 图片
  • 图片
  • 图片
  • 图片
  • 图片
  • 图片
  • 图片
  • 图片
  • 图片
  • 图片
  • 图片
  • 图片
  • 图片
  • 图片
  • 图片
  • 图片
  • 图片
  • 图片
  • 图片
  • 图片
  • 图片
  • 图片
  • 图片
  • 图片
  • 图片
  • 图片
  • 图片
  • 图片
  • 图片
  • 图片
  • 上一个 下一个
    2024第八届金腾奖 私宅(独居)丨私宅(多人居)丨餐饮丨酒店丨办公丨商业丨公共丨公益丨人物丨NEW100 jintengAWARD(小金_金腾奖组委会) 广州市海珠区琶洲大道68号华新中心21楼
    金腾奖视频号 金腾奖小红书号 监制:刘译遥
    统筹:张俊媚
    运营:赖钰炼 曹凯月 刘芳棋 小金
    新媒体:王贝贝 严洁 张文一
    技术:黄天佑 丁德昌
    最终解释权归金腾奖主办方所有