昨日重现
作品详情
  • Details of the work 标题横线
    头像或者logo
    图片 孙宴亭 云上设计师俱乐部特约推荐
    城市:南京
    公司: 廷里建筑空间设计
    参赛作品: 昨日重现
    空间类型:公寓(150㎡以下)
    个人/公司简介:
    设计理念 设计之本质,是在条件严格限制下,克制冗杂想法,控制丰富细节,使事物呈现出一种非此不可的状态。 职业履历 8年建筑设计+8年室内设计经验,致力于提供美好、有趣且系统的空间问题解决方案。 100+全案项目落地经验, 50+实景拍摄项目案例。 主要项目 《疏影》 《絮语》 《尽致》 《镜·界》 《滤镜》 《午茶梦晴》 《大隐》 《折衷主义的表达》 《多维度曲拱元素推演多功能复古空间》…… 奖项荣誉 上海设计周新锐设计奖(2023-2024)TOP100 中国设计星(2022-2023)全国36强候选人 她设计奖(2022-2023)年度优秀软装作品 上海设计周新锐设计奖(2023-2024)TOP100 PCHOUSE AWARD 2023设计师/机构奖全国TOP100 第十一届Hi-Design室内设计大赛(2023)优秀奖 第十届Hi-Design室内设计大赛(2022)南京设计精英奖 第十一届Hi-Design室内设计大赛(2023)优秀奖 PCHOUSE AWARD 2023设计师/机构奖全国TOP100 第十届Hi-Design室内设计大赛(2022)南京设计精英奖 PCHOUSE AWARD 2021中国私宅设计年度评选TOP100
    设计说明 | Design Instruction
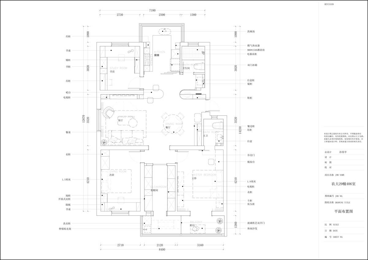
  • 1. 我们把原先南侧中间的小卧室纳入为主卧衣帽间,原先被当作储物间的空间改回主卧卫生间功能,双阳台拆除窗下墙后,也从原先的杂物间变成了休闲阳台+家务阳台的组合——通过一组复古造型的双开门,从此阳台的功能性和生活性都得到了满足。一番改造后,主卧竟然变成了一个带衣帽间、主卫和2个阳台的洄游动线套房,大大提高了居住在此处的生活品质。 2. 考虑到业主对于烹饪的爱好,我们把原有的餐厅区域纳入到厨房中来,充分拓展了厨房的面积,而原先的餐厅区域则被调整到了客厅东侧,体现了现代客餐厅一体的设计思路。我们还充分利用空间,结合客餐厅增设了早餐吧台区和西厨区,厨房瞬间从捉襟见肘、流线混乱的状态变成了即使塞下大冰箱和电器高柜也很宽裕,可以一边观景一边烹饪的惬意享受,一下子实现了质的飞跃。 3. 将原先的台盆区域从卫生间剥离,独立后的干区拓展成为了客餐厅的一部分,同时结合鞋柜增设的一排储物柜也充分满足了家庭储物的需要。 4. 客厅电视背景高柜、入户玄关鞋柜、西厨区、衣帽间、储物柜……我们充分利用空间的每个角落,在保证造型比例美观和空间尺度适当的同时,极大的增加了空间的使用效率。每个空间每个功能都有相应的储物区域,从此只有生活的氛围感,没有生活的凌乱感。 5. 空间整体色调以黄杨、豆蔻绿叠加奶昔白为背景,辅以姜黄、杏仁和胡桃,在黄铜的点缀下,质感呼之欲出。2cm的石膏线条勾勒出空间的复古调性,却并未耀武扬威的宣誓主权;藤编椅、老钢门和小花砖承载着过去年代的记忆;天堂鸟和龟背竹在盎然伫立,雏菊和栀子花正吐露芬芳,他们的身影立即为整个家注入勃勃生机。
  • 图片
  • 图片
  • 图片
  • 图片
  • 图片
  • 图片
  • 图片
  • 图片
  • 图片
  • 图片
  • 图片
  • 图片
  • 图片
  • 图片
  • 图片
  • 图片
  • 图片
  • 图片
  • 图片
  • 图片
  • 图片
  • 图片
  • 图片
  • 图片
  • 图片
  • 图片
  • 图片
  • 图片
  • 上一个 下一个
    2024第八届金腾奖 私宅(独居)丨私宅(多人居)丨餐饮丨酒店丨办公丨商业丨公共丨公益丨人物丨NEW100 jintengAWARD(小金_金腾奖组委会) 广州市海珠区琶洲大道68号华新中心21楼
    金腾奖视频号 金腾奖小红书号 监制:刘译遥
    统筹:张俊媚
    运营:赖钰炼 曹凯月 刘芳棋 小金
    新媒体:王贝贝 严洁 张文一
    技术:黄天佑 丁德昌
    最终解释权归金腾奖主办方所有