一半烟火入世间,一半诗意许清欢
作品详情
  • Details of the work 标题横线
    头像或者logo
    图片 吕海萁 云上设计师俱乐部特约推荐
    城市:南京
    公司: 锦华装饰
    参赛作品: 一半烟火入世间,一半诗意许清欢
    空间类型:公寓(150㎡以下)
    个人/公司简介:
    一事精致,便能动人。 自幼习画,师从名家。毕业与南京师范大学美术系。 设计师:吕海萁 从业时间:20年 设计理念:大美无界 大道无形 从业经历: 二十年专注于住宅空间美学设计 北京业之峰装饰首席设计师 北京东易日盛装饰主任级设计师 观城嘉软装运营总监 居美优品运营总监 香港陈设未来国际艺术创意总监 锦华装饰高级设计师 获得荣誉: 2023年《老宅新生》十大改造设计师 南京十八频道《标点家装》长期特邀嘉宾 江苏频道《完美空间》特邀嘉宾 北京圣诺佳成软装培训 课程研发组成员 《ID+C内室设计与装修》杂志软装色彩顾问 中国建筑协会室内分会CIID注册设计师 设计作品陆续在业内颇具影响力的电视、报刊、杂志、电子传媒上发布 如江苏电视台城市频道,D-life杂志,星空地产网,HOUSE365网站,搜房网等。
    设计说明 | Design Instruction
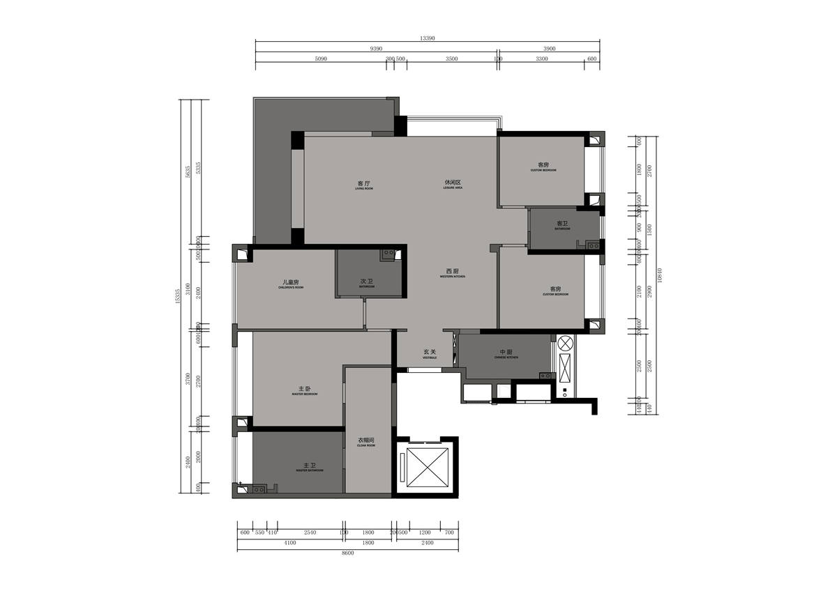
  • 女主人姓冷,却是温暖的大女主。文艺兼修,才华横溢。她是昆曲编剧,审美在线,写的一手好书法,我还是她小说的粉丝。男主人也是满腹经纶,自有的文化公司专门给企业家培训,标准的精英CEO。有个古灵精怪的女儿,绘画编程。。。信手拈来。真是高颜值高智商的一家子。我和女主人一见如故,相互欣赏,思想的碰撞产生了灵感的火花! 他们对于家自然有着自己独特的见解。希望生活一半烟火,一半清欢。空间能够兼具优雅与空灵,家人能在此温馨互动,让舒适愉悦的情愫在家中流淌。设计师在轻微改动硬装框架的基础之上,用赋有质感的黑白灰色、木色和大地色调营造出轻雅简约的居室氛围,同时运用水元素灵感,化身流动的弧线造型延伸墙面,巧妙弱化了原始梁与柱。 让空间流动起来。不锈钢水波纹画表作为空间的视觉亮点,打造出具有艺术性的空间质感。 在这个纷纷扰扰的世界,越来越繁杂的交际让我们疲惫。幸而,有家。家是港湾,如果这个港湾的每一个细节都美的让人挪不开眼,那么一定是现代自然风。他不同于工业风的神秘冷峻,简约自然风温暖治愈。许多人白天由于现实生活的压力,晚上回到家,渴望一头扎进温柔乡,眼底充盈着温暖的云朵色系,身体陷进舒适安逸的沙发里,整个人被柔软包裹起来,心情放松而惬意。 本案在二楼,本来还有点担心采光。拿房时候窗外视野非常惊喜,静谧自然,绿意盎然。大落地窗风景极佳,业主当即决定采纳我们的设计打开阳台,拆掉移门。设计师拓展了客厅面积,将原有的阳台空间一并容纳进来,使整个空间在视野上更加开阔与通透。 餐厅高脚吧台代替了传统餐桌,是业主生活方式的体现,平时应酬多,基本一两人就餐,周末一家人在自己的会所聚餐。胡桃木原木大茶台兼具画桌的功能,是业主最喜欢的一方天地,独处写书画小楷,友人聊天喝茶,竹影婆娑,兰花飘香,好不惬意。宁可食无肉,不可居无竹,从古至今,不变的是文人情怀。 主卧原有空间略显局促,不够宽敞,我们拆掉衣帽间隔墙,开放式衣帽间设置柜门,水波纹玻璃隔断精致而高级。视觉上开阔很多。邻居都来取经,客户很是满意。感谢我们给了她梦想中的家! 从入行那天起,我更愿意称自己的行业为“空间魔法师”。 设计创造了价值,房子无论基础如何,在我们的手中发生蜕变。看着一个个冰冷的房屋在我们与业主的共同努力下,抽丝剥茧,蜕变成蝴蝶的那个瞬间,就是我们“空间魔法师”存在的意义吧!
  • 图片
  • 图片
  • 图片
  • 图片
  • 图片
  • 图片
  • 图片
  • 图片
  • 图片
  • 图片
  • 图片
  • 图片
  • 图片
  • 图片
  • 图片
  • 图片
  • 上一个 下一个
    2024第八届金腾奖 私宅(独居)丨私宅(多人居)丨餐饮丨酒店丨办公丨商业丨公共丨公益丨人物丨NEW100 jintengAWARD(小金_金腾奖组委会) 广州市海珠区琶洲大道68号华新中心21楼
    金腾奖视频号 金腾奖小红书号 监制:刘译遥
    统筹:张俊媚
    运营:赖钰炼 曹凯月 刘芳棋 小金
    新媒体:王贝贝 严洁 张文一
    技术:黄天佑 丁德昌
    最终解释权归金腾奖主办方所有