lillika space
作品详情
  • Details of the work 标题横线
    头像或者logo
    图片 国振斌 青岛青创设计传媒特约推荐
    城市:青岛
    公司: 国振斌设计工作室
    参赛作品: lillika医美空间
    空间类型:办公
    个人/公司简介:
    国振斌设计工作室,致力于高品质商业空间和住宅空间设计。创始人国振斌,2013年毕业于中央美术学院,毕业后成立设计工作室,专注于空间设计至今11年,在空间叙事,材料研究和灯光设计上有自己独到的方法和见解。尤为擅长将西方现代主义的秩序,框架和构成,梳理转化为传递东方意境美学的设计方式。 服务甲方包括:北京故宫博物院,玉雕大师邱启敬,四川尽膳口福餐饮集团,椿庐(北京,上海,深圳6家店),青岛鮨臣,青岛八大关安纳空间,青岛浮山目屿设计,青岛锦上鱼府,青岛松坂寿喜烧,青岛汤辰炖品大师店,青岛迟棠,北京鮨麟,北京与子山隐,等等设计观:得其意,忘其形,致广大,尽精微 近年所获奖项:陈设中国晶麒麟奖,金瓦奖,金堂奖,金住奖,艾特奖 等等。
    设计说明 | Design Instruction
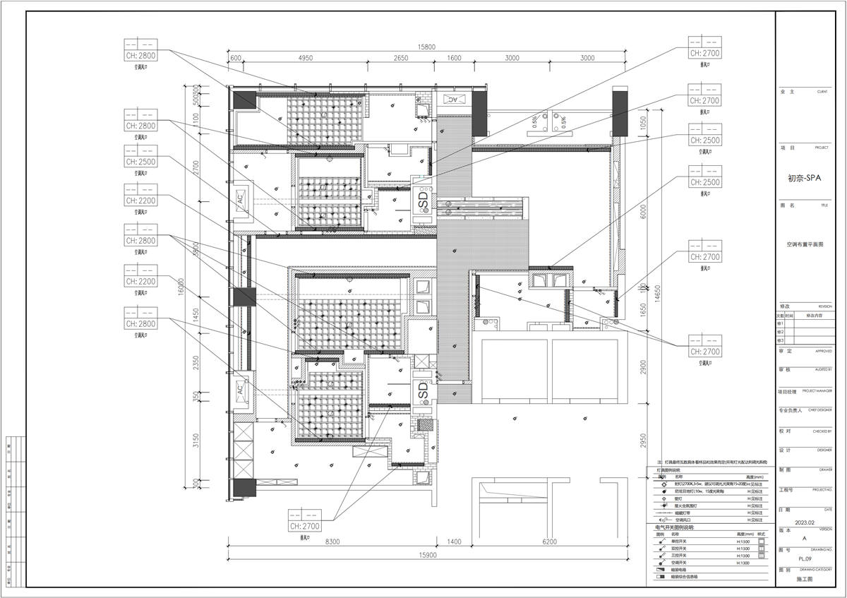
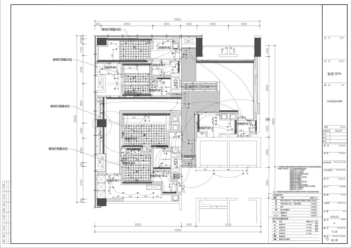
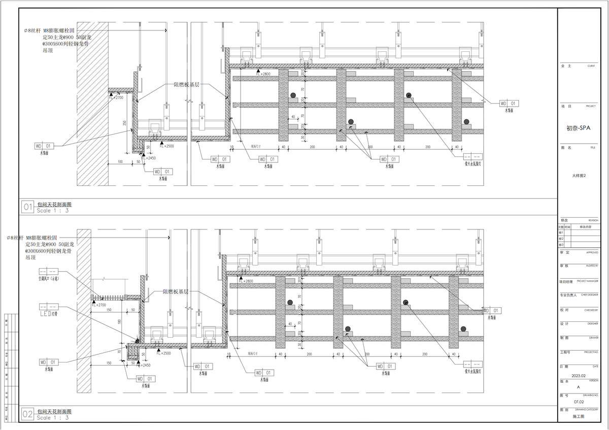
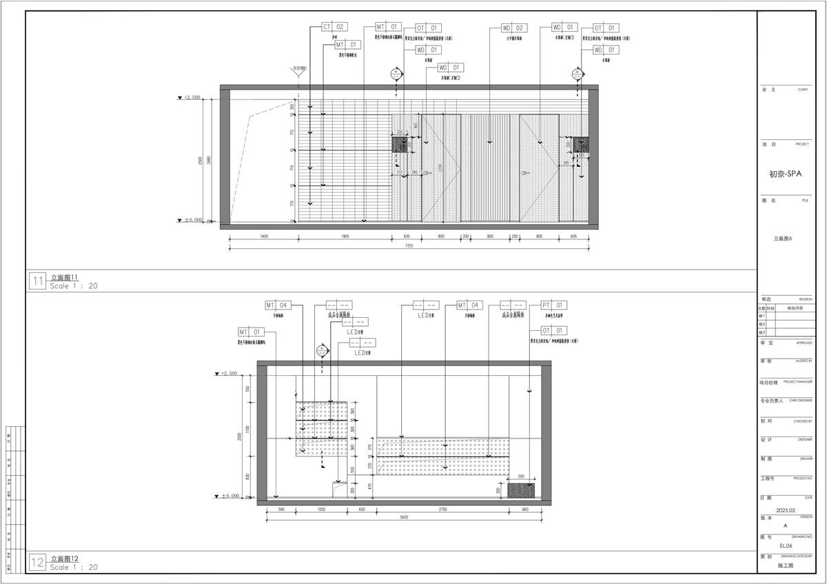
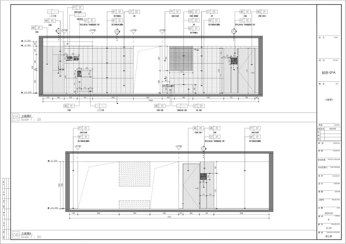
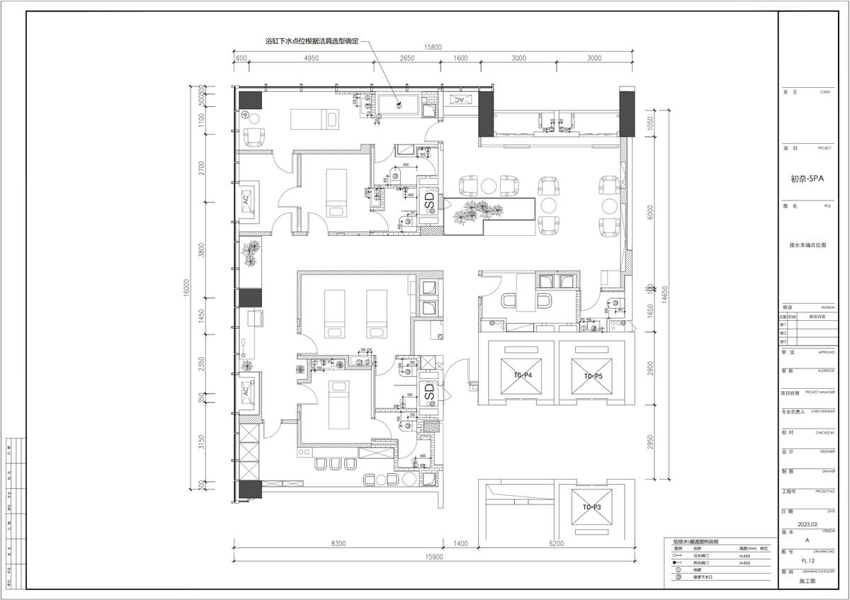
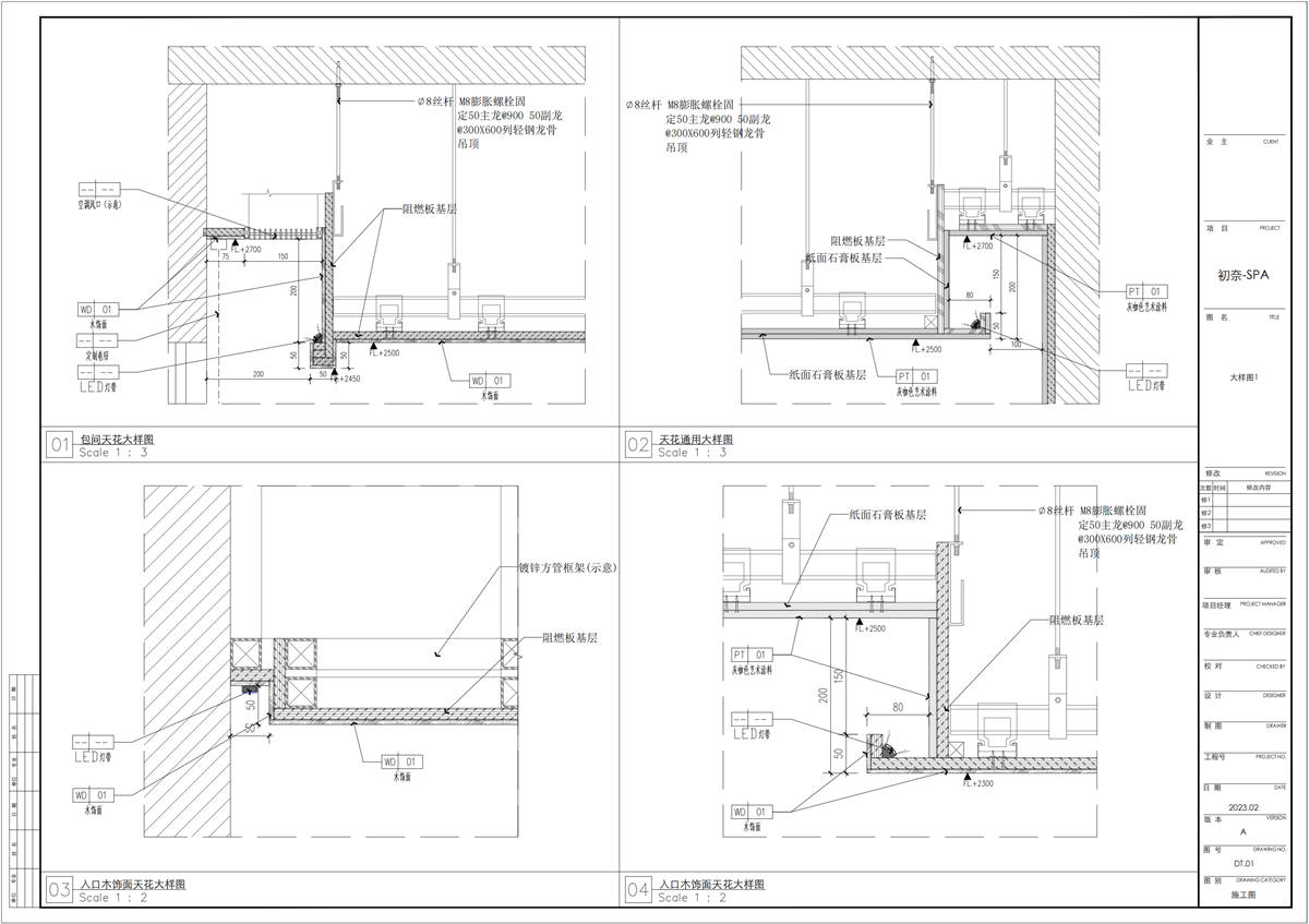
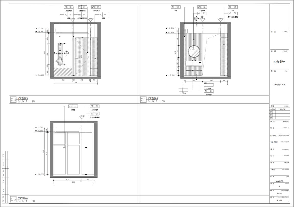
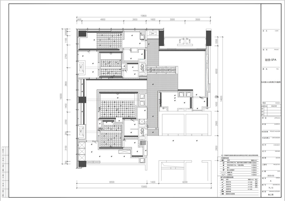
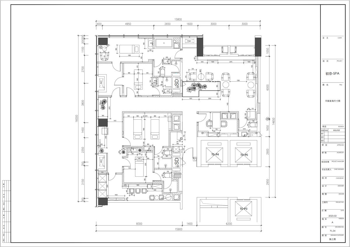
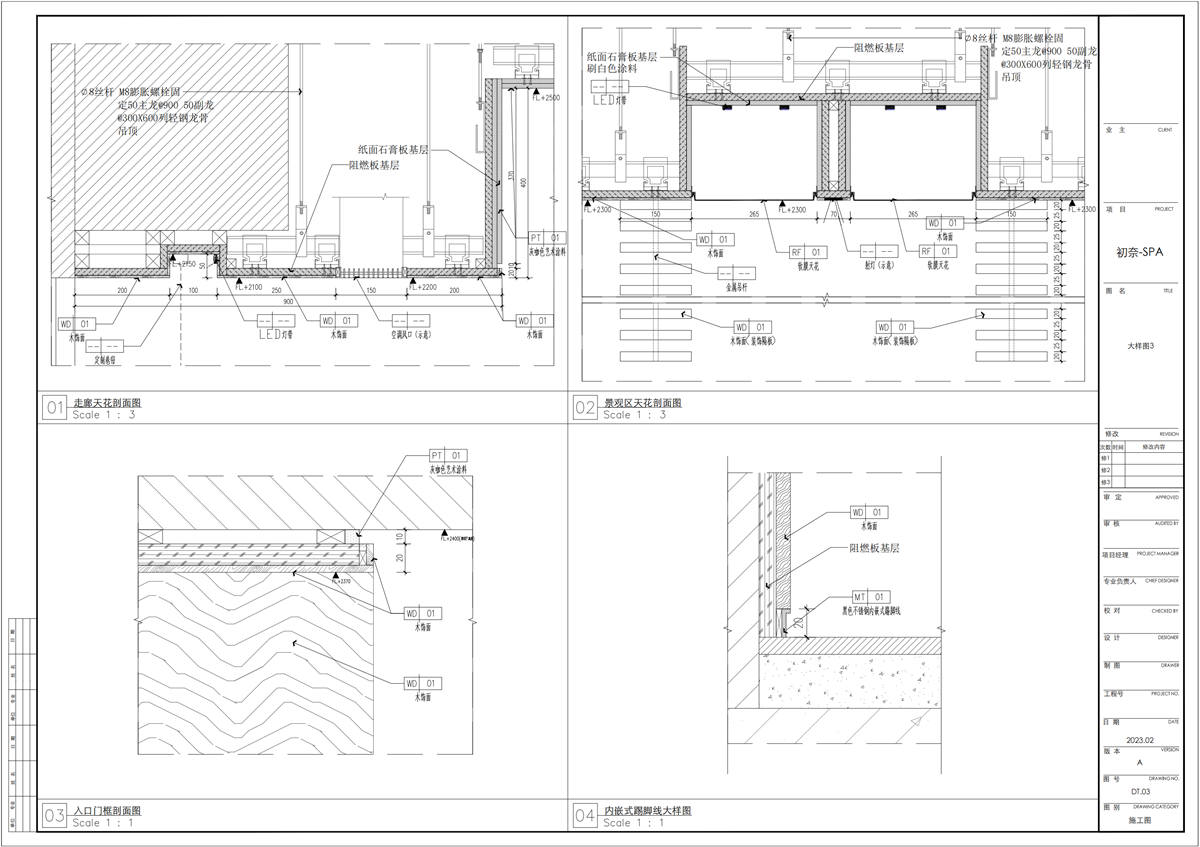
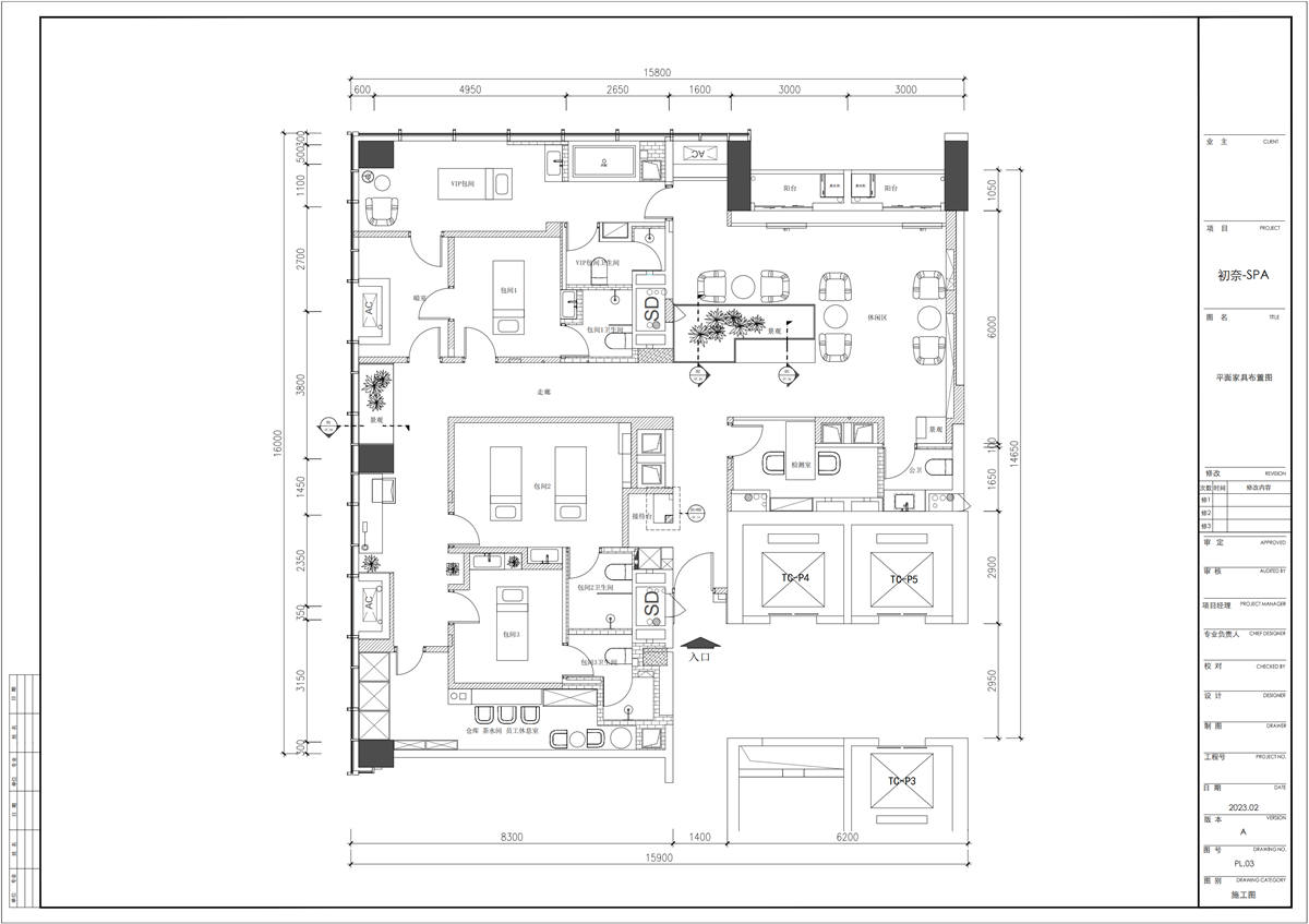
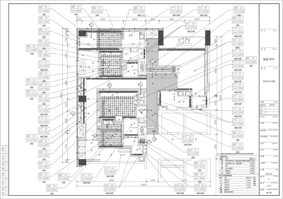
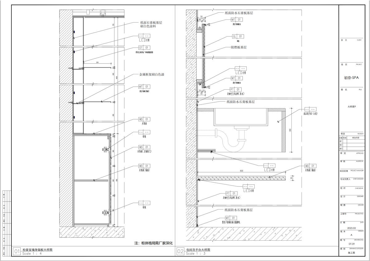
  • 这是我第一次设计医美空间,LILLIKA(中文名:莉莉卡) 项目在桂林万象城旁边的写字楼,是一个需要让人能完全放松下来的空间。在设计之初, 我作为设计师就开始记录老店面里的问题,最好的方式就是体验,自己作为客人体验一遍所有服务, 再把自己作为服务员,体验一遍所有的服务流程,从进门换鞋,到提供餐食的方式,躺下享受服务的过程,罗列了非常多问题。 这些问题可能都是传统医美空间的通病。所以我在设计的时候逐步去解决,首先有别于大部分医美的白色调,我用了很深邃的木质感和多层次的光影来让人放松,小景观,和纸灯箱的氛围光一步一景的引导人进去空间。包间里面,人大部分时候是面对天花板的,所以天花的设计是重点。天花我结合了东方美感的三层木结构,穿插组合于吊顶。 三层之间结合了许多不同维度的灯光,一呼一吸模拟萤火虫发光的感觉,让客人在这种静谧的灯光中完全放松下来。
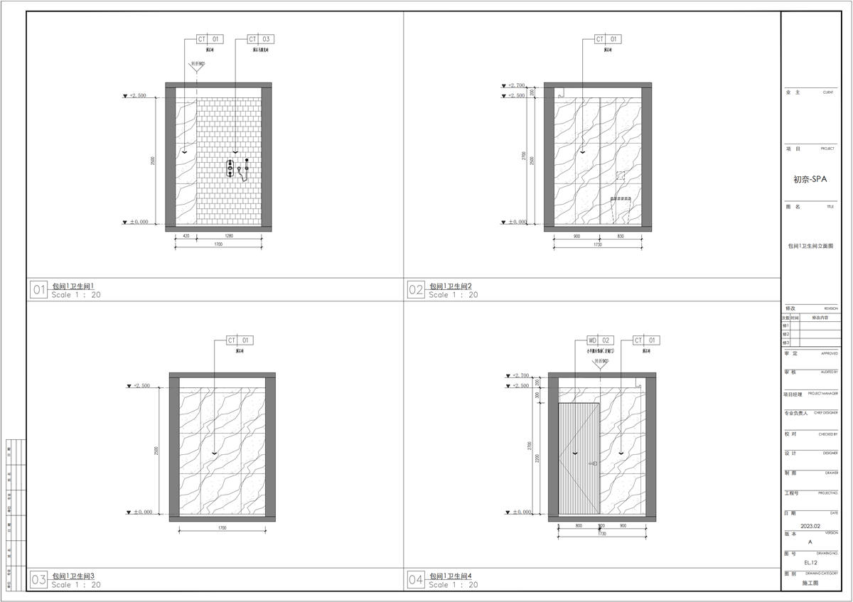
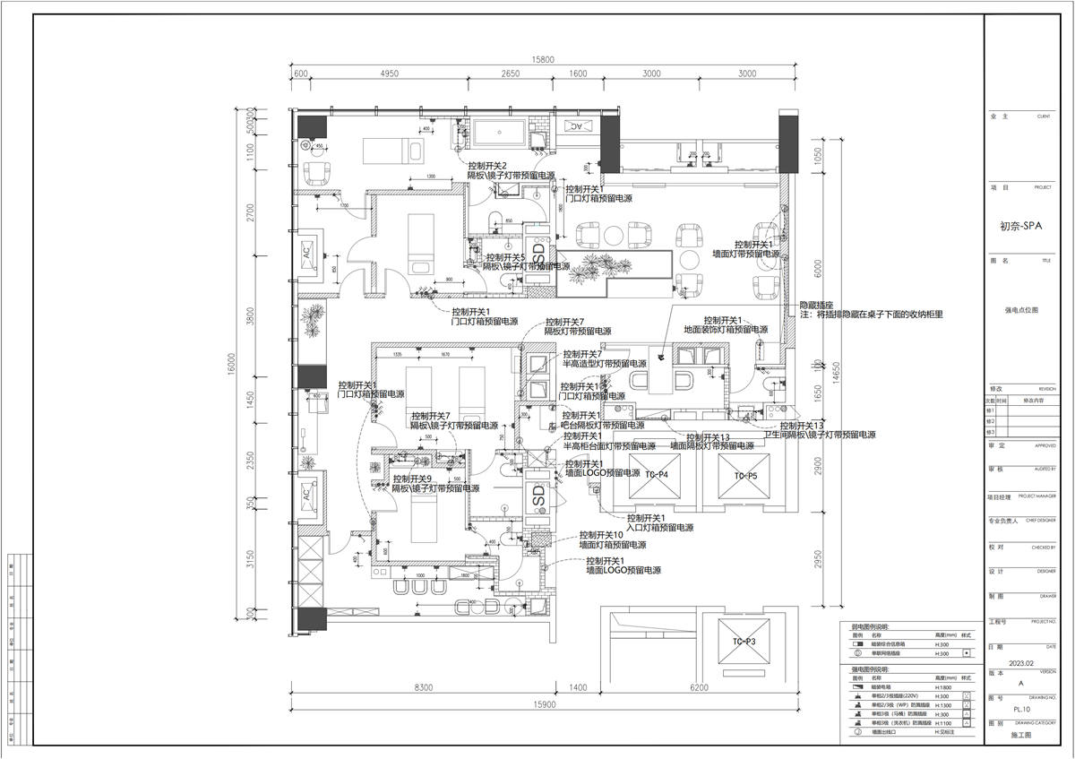
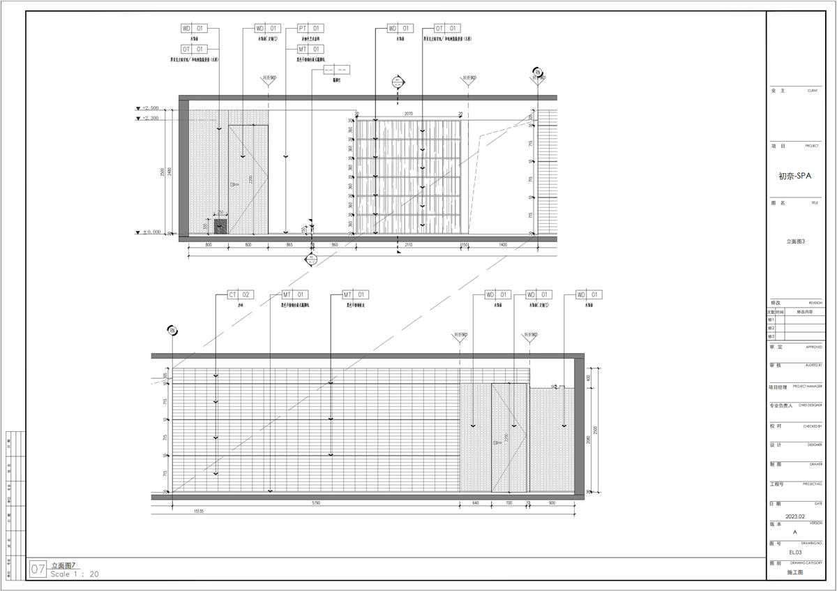
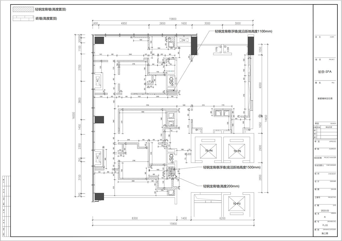
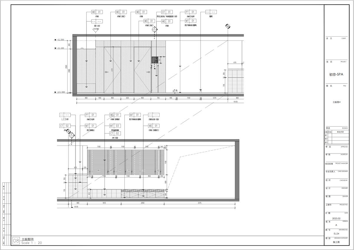
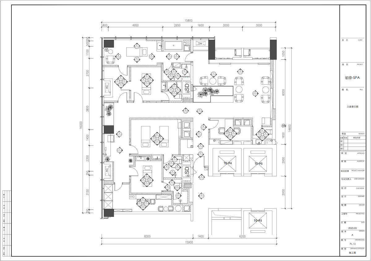
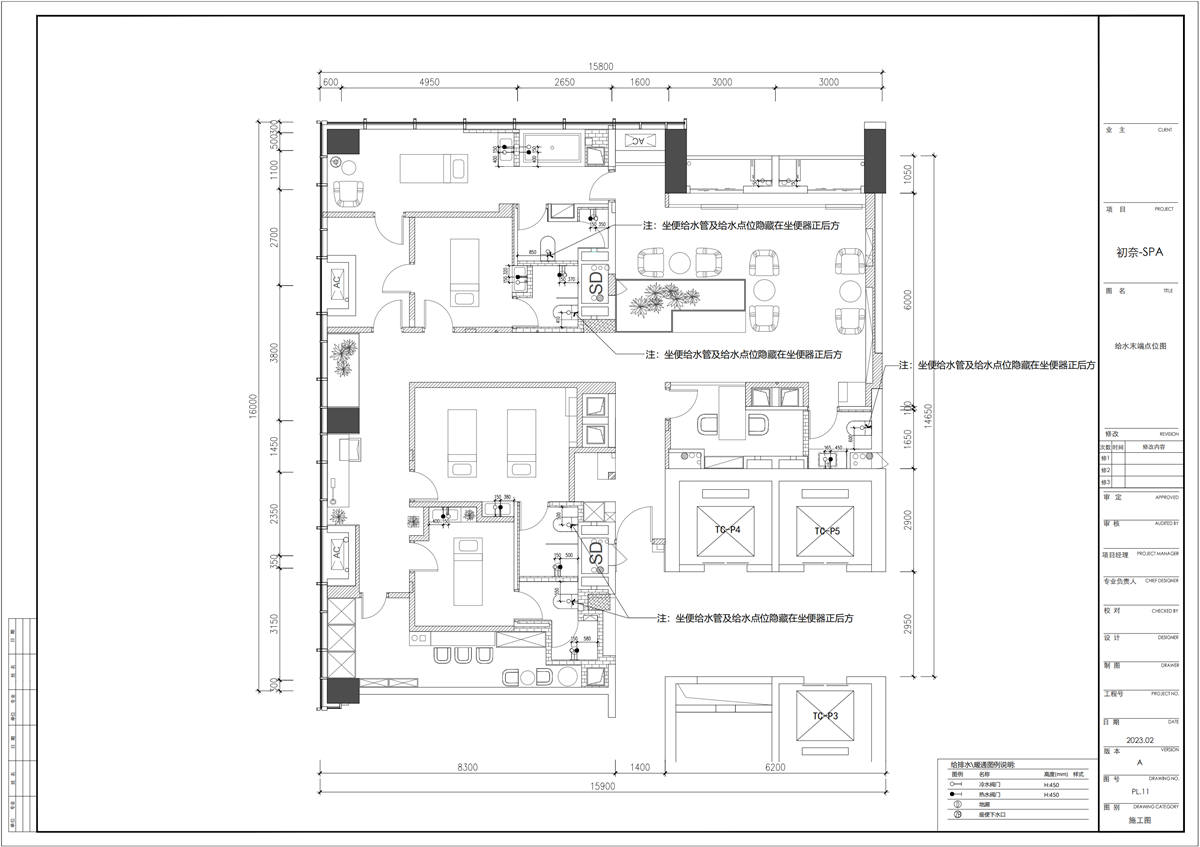
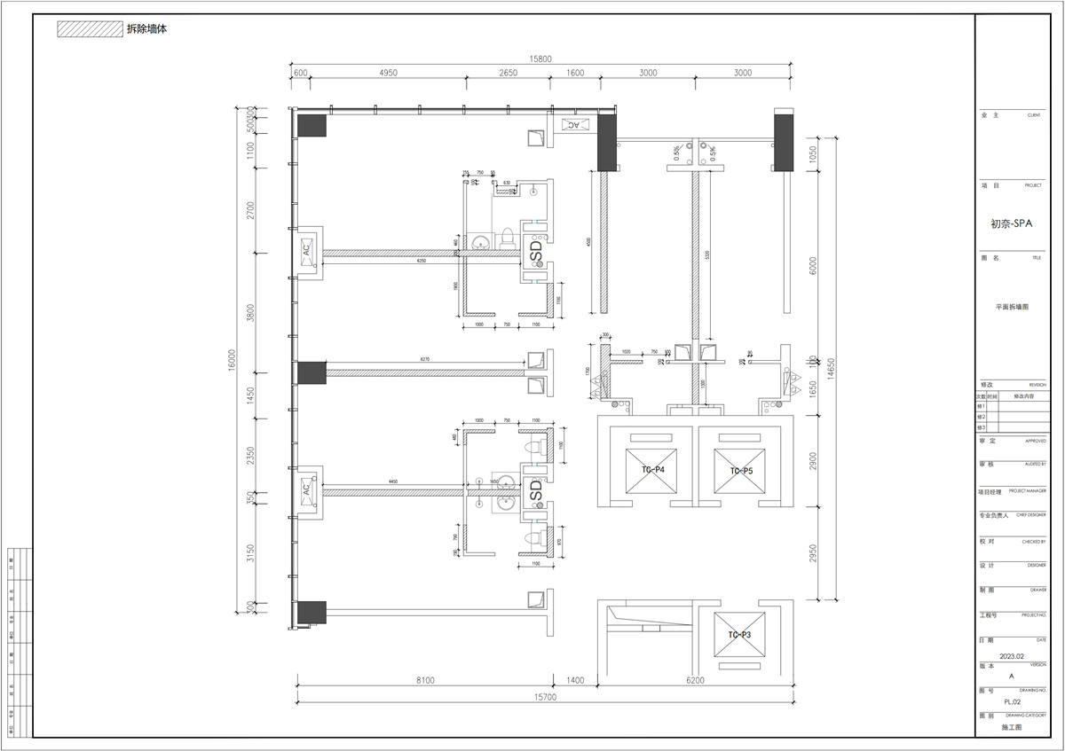
  • 图片
  • 图片
  • 图片
  • 图片
  • 图片
  • 图片
  • 图片
  • 图片
  • 图片
  • 图片
  • 图片
  • 图片
  • 图片
  • 图片
  • 图片
  • 图片
  • 图片
  • 图片
  • 图片
  • 图片
  • 图片
  • 图片
  • 图片
  • 图片
  • 图片
  • 图片
  • 图片
  • 图片
  • 图片
  • 图片
  • 图片
  • 图片
  • 图片
  • 图片
  • 图片
  • 图片
  • 图片
  • 图片
  • 图片
  • 图片
  • 图片
  • 图片
  • 图片
  • 图片
  • 图片
  • 图片
  • 图片
  • 图片
  • 图片
  • 图片
  • 图片
  • 图片
  • 图片
  • 图片
  • 图片
  • 图片
  • 图片
  • 图片
  • 图片
  • 图片
  • 图片
  • 图片
  • 图片
  • 图片
  • 图片
  • 图片
  • 图片
  • 图片
  • 图片
  • 上一个 下一个
    2024第八届金腾奖 私宅(独居)丨私宅(多人居)丨餐饮丨酒店丨办公丨商业丨公共丨公益丨人物丨NEW100 jintengAWARD(小金_金腾奖组委会) 广州市海珠区琶洲大道68号华新中心21楼
    金腾奖视频号 金腾奖小红书号 监制:刘译遥
    统筹:张俊媚
    运营:赖钰炼 曹凯月 刘芳棋 小金
    新媒体:王贝贝 严洁 张文一
    技术:黄天佑 丁德昌
    最终解释权归金腾奖主办方所有