Mondrian's Home
作品详情
  • Details of the work 标题横线
    头像或者logo
    图片 向右设计
    城市:杭州
    公司: 向右设计
    参赛作品: 蒙德里安之家
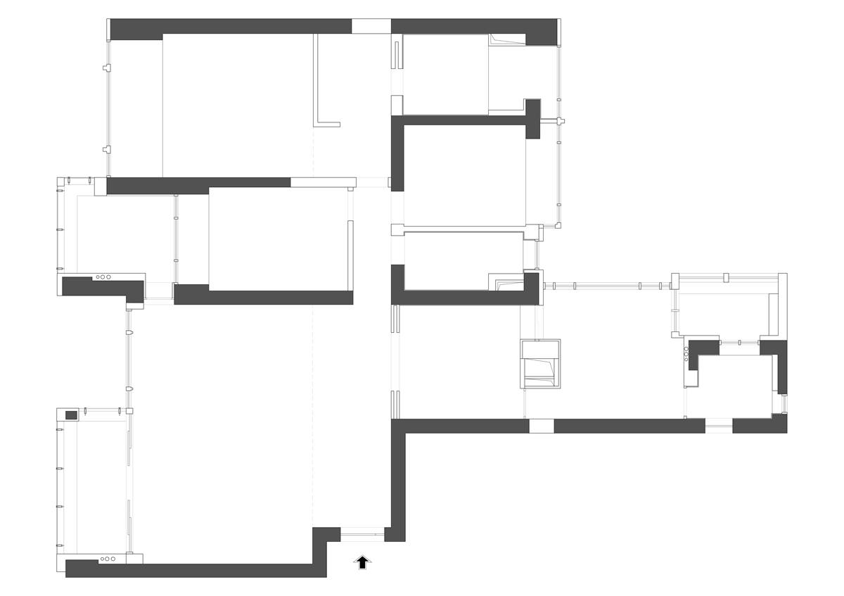
    空间类型:公寓(150㎡以下)
    个人/公司简介:
    向右设计是一个小众的设计团队,由90后成员组成,致力于居住类私宅空间与商业类空间设计,不被风格与空间束缚,专注追求创造美学和功能并存的设计团队。
    设计说明 | Design Instruction
  • 1919年~1938年是蒙德里安转变时期,他发现了新的个人形式,使用更基本的元素创作(直线、直角、三原色)组成抽象画面,此时期的代表作“线与色彩的构成”色彩柔和、充满轻快和谐的节奏感。 屋主月月是一位95后海漂,在外10年多国留学,疫情后回国定居杭州,她虽然是兽医专业但从小喜欢艺术。她说“家是我内心世界的延展,我的内心是彩色的,希望家也是包容的,能放的进那些多彩的艺术品,我希望家的形式跟随功能,这样会比较符合我的生活状态。”我们在思考这个案子的同时,反思当下室内空间的同质化现象,我们希望以室内设计的形式,借鉴月月的内心独白和蒙德里安的创作方式,同时运用几何图形和色彩组合,展现出另一种住宅设计理念。 厨房作为生活气最为浓重的空间,我们将跳跃的色彩放置其中,在有限的空间内,运用绿色弧形砖于中心砌筑岛台,从而形成洄游动线。醒目的绿于此渲染绽放,左侧添加蓝色油烟机,右侧置入黄色开放格,色彩交织而成的感官呼之欲出,发挥形成暧昧的平衡。 打破客厅传统电视背景墙的模式,采用壁画电视与其它画作相融的方式 ,仿佛在空间举办了一场艺术画展。普拉达绿与黑色木纹阵列组合,形成一种媒介,将原本无法感知到的情感具象化。 大面积的白,与红黄蓝三原色的餐椅相映成画,不同的颜色产生丰富的层次感。墙面的异形装置灵感是儿时的哈哈镜,扭曲的反射增添空间的趣味,捕捉俗常生活的简趣与时光,成为放松的、惬意的片刻。 狭长的过道原本为空间的阴暗处,但光与色彩为其编织了一个童话般的长廊。 伸原有飘窗结构使之形成地台,再将床与梳妆台的功能融合其中,把空间与功能剥开重组。色彩、线条、积木、堆叠给空间的体验和创意制定新的秩序。
  • 图片
  • 图片
  • 图片
  • 图片
  • 图片
  • 图片
  • 图片
  • 图片
  • 图片
  • 图片
  • 图片
  • 图片
  • 图片
  • 图片
  • 图片
  • 图片
  • 图片
  • 图片
  • 图片
  • 图片
  • 图片
  • 图片
  • 图片
  • 图片
  • 图片
  • 图片
  • 图片
  • 图片
  • 图片
  • 图片
  • 图片
  • 图片
  • 图片
  • 图片
  • 图片
  • 图片
  • 图片
  • 图片
  • 图片
  • 图片
  • 图片
  • 图片
  • 图片
  • 图片
  • 图片
  • 图片
  • 图片
  • 图片
  • 图片
  • 图片
  • 图片
  • 上一个 下一个
    2024第八届金腾奖 私宅(独居)丨私宅(多人居)丨餐饮丨酒店丨办公丨商业丨公共丨公益丨人物丨NEW100 jintengAWARD(小金_金腾奖组委会) 广州市海珠区琶洲大道68号华新中心21楼
    金腾奖视频号 金腾奖小红书号 监制:刘译遥
    统筹:张俊媚
    运营:赖钰炼 曹凯月 刘芳棋 小金
    新媒体:王贝贝 严洁 张文一
    技术:黄天佑 丁德昌
    最终解释权归金腾奖主办方所有