Heaven's will for Hua Yuan
作品详情
  • Details of the work 标题横线
    头像或者logo
    图片 张巍龙
    城市:青岛
    公司: 独立设计师
    参赛作品: 天意华苑
    空间类型:别墅
    个人/公司简介:
    从业经历:2012年-2013年北京业之峰、2013年-2014年四川立和善品、2014年至今在东方家园大宅别墅中心。主要设计作品:八大关别墅、安纳溪、涵碧楼私宅、鲁商蓝岸丽舍御园、 观海听澜、龙湖天璞、金口路别墅、双龙园别墅、鲁信未央、依云小镇别墅、华侨新村别墅区 。获奖经历:CIID注册高级室内设计师、中国CCDH设计文-2016年最任设计机构大宅空间北京站国际设计奖、第九届中国建筑装饰协会双年设计奖、中国室内设计十三届室内设计金奖、日本优能福祉 住宅改善士、第七届HI-DESI0N室内设计大赛优秀奖。设计理念:设计以人为本、不限于形、无界无疆。
    设计说明 | Design Instruction
  • 中国人对于居住的梦想,从来就不限于房子本身。除了风格和美观之外,要解决细致的使用功能,也会有更多内心、情感层面的考量。更深一步,家庭成员之间的和睦、父母子女之间的精神传承,也可以在环境的潜移默化之中逐渐变化,这是空间的“场”与人的互相影响和教化。透过不同的材质来体现整个空间的肌理感,微水泥搭配墙板,在颜色上和谐统一,在细节上又大有不同,而红木家具的搭配使空间不再单调。圆弧形门洞显得更加柔和,让整个空间更加温馨。圆弧门的特点是造型美观、空间占用小、流畅自然。直排式衣柜将一切凌乱隐藏,在这里,梳妆打扮、更衣整理,完成身份的转变,悦己悦心,才是对自己最好的成全。透明玻璃搭配金属边框的电梯,在空间中是唯美的点缀。回形而上的楼梯,通过硬朗的踏步,柔和光线,将这股带着温度的强劲,传递到细节里。
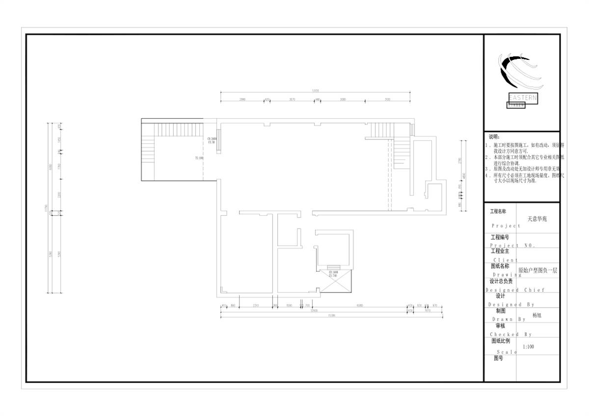
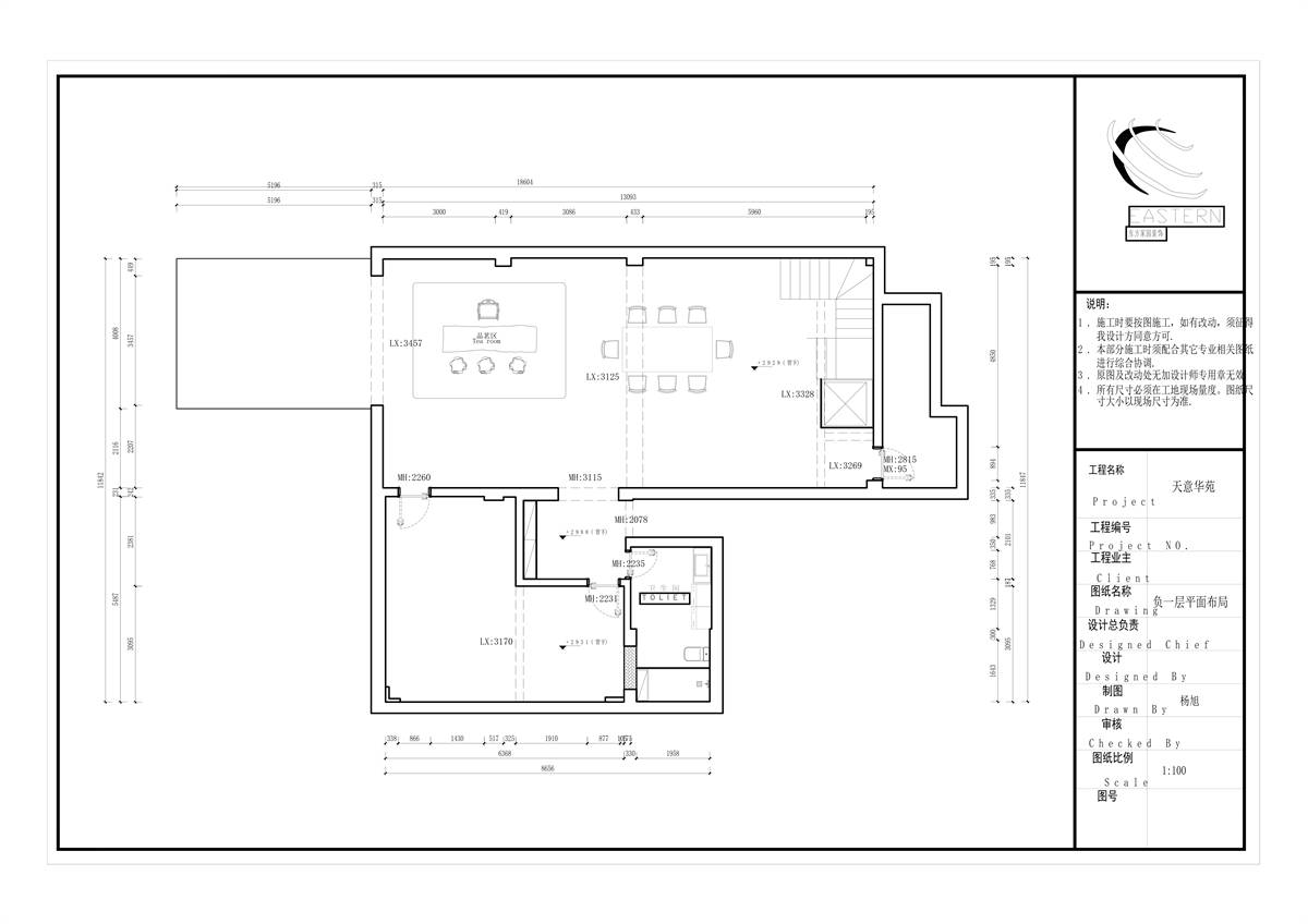
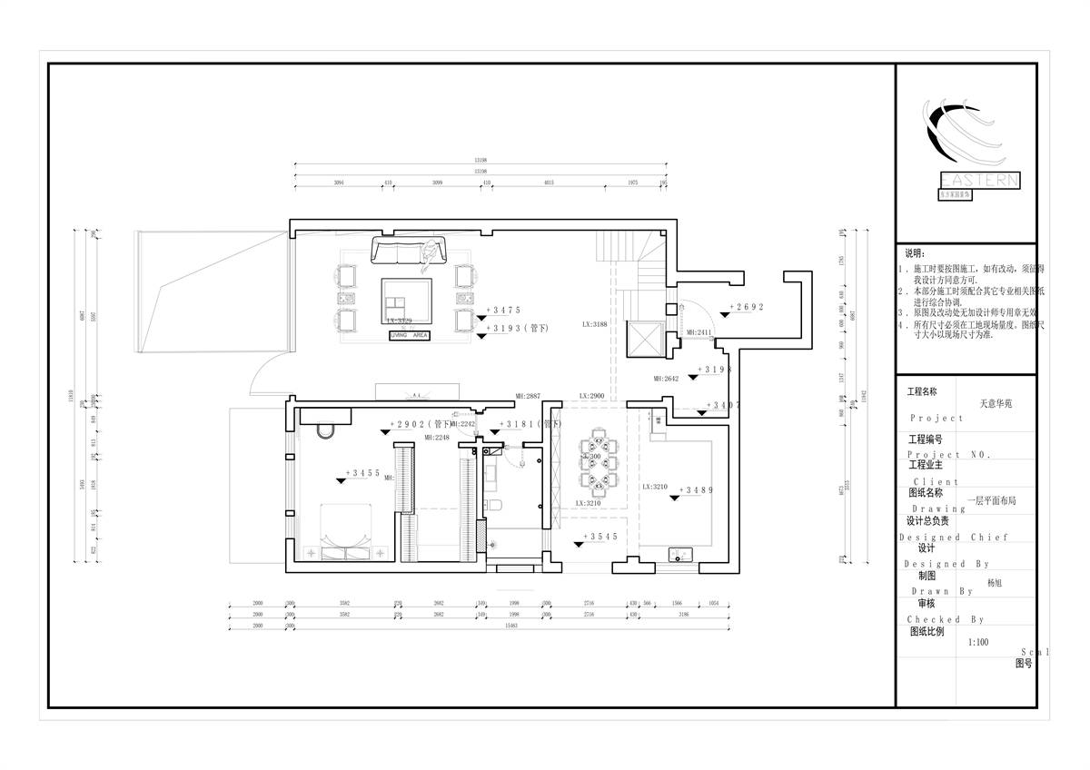
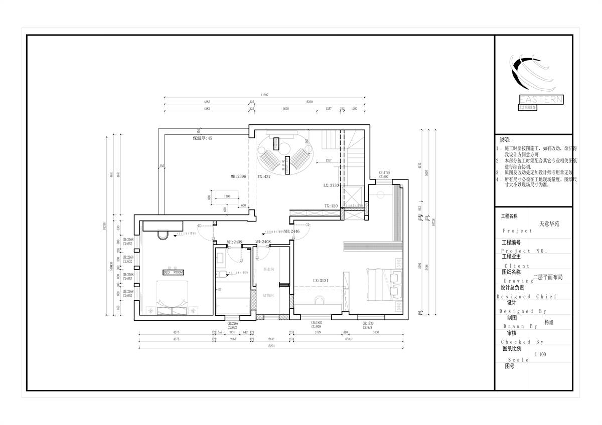
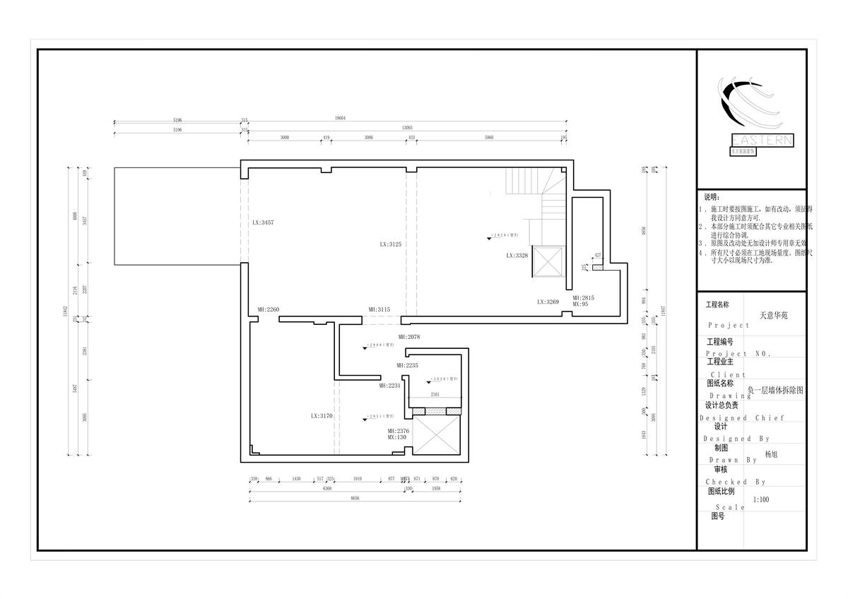
  • 图片
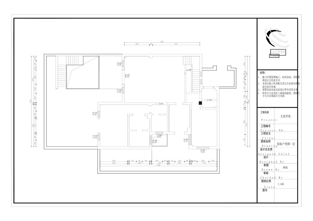
  • 图片
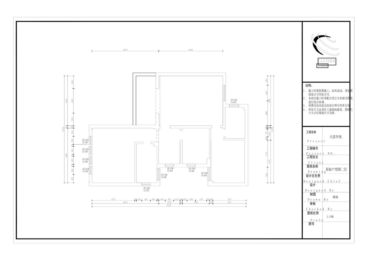
  • 图片
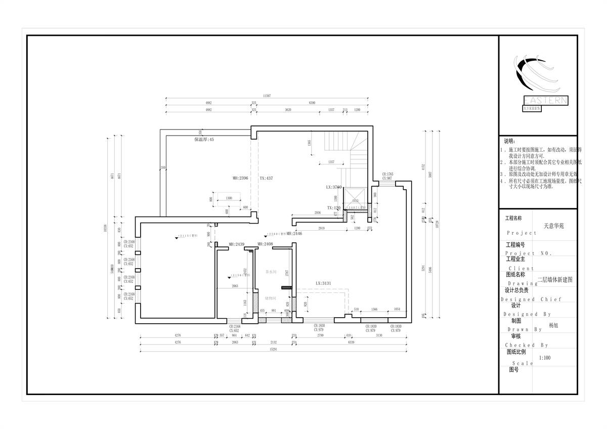
  • 图片
  • 图片
  • 图片
  • 图片
  • 图片
  • 图片
  • 图片
  • 图片
  • 图片
  • 图片
  • 图片
  • 图片
  • 图片
  • 图片
  • 图片
  • 图片
  • 图片
  • 图片
  • 图片
  • 图片
  • 图片
  • 图片
  • 图片
  • 图片
  • 图片
  • 图片
  • 图片
  • 图片
  • 图片
  • 图片
  • 图片
  • 图片
  • 图片
  • 图片
  • 图片
  • 图片
  • 图片
  • 图片
  • 图片
  • 上一个 下一个
    2024第八届金腾奖 私宅(独居)丨私宅(多人居)丨餐饮丨酒店丨办公丨商业丨公共丨公益丨人物丨NEW100 jintengAWARD(小金_金腾奖组委会) 广州市海珠区琶洲大道68号华新中心21楼
    金腾奖视频号 金腾奖小红书号 监制:刘译遥
    统筹:张俊媚
    运营:赖钰炼 曹凯月 刘芳棋 小金
    新媒体:王贝贝 严洁 张文一
    技术:黄天佑 丁德昌
    最终解释权归金腾奖主办方所有