Mystery Garden
作品详情
  • Details of the work 标题横线
    头像或者logo
    图片 上海映象设计
    城市:上海
    公司:上海映象设计
    参赛作品: 神秘花园
    空间类型:公寓(150㎡以下)
    个人/公司简介:
    2004年成立于上海,历经二十年的发展,品牌所倡导的舒适、自由的生活文化风靡全国。做最有范儿的设计,传播“更自由、更自我、更自在”的生活方式。
    设计说明 | Design Instruction
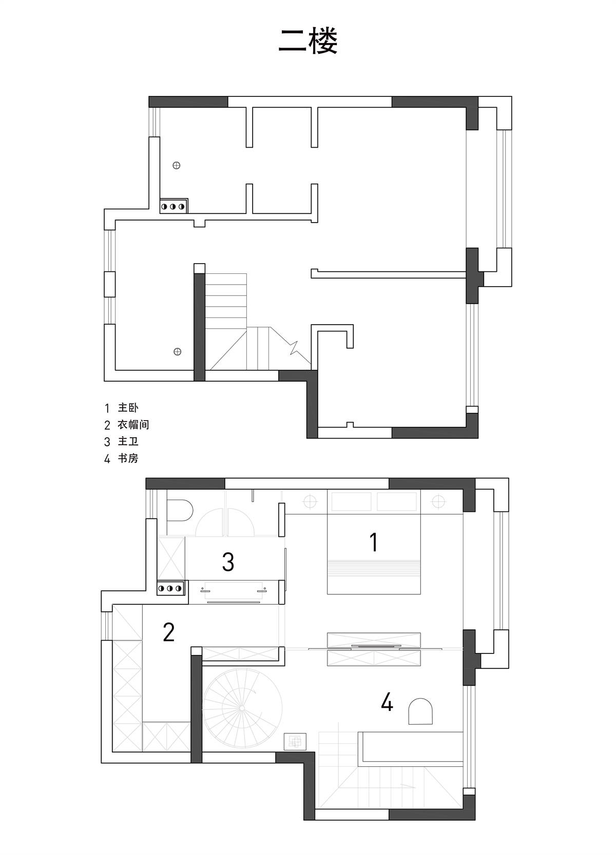
  • 居所是家的「容器」,是生活的背景,简约的氛围更能衬托「生活才是主角」这一主旨。 法风的柔美优雅,一直是萦绕在爱美之人,是居所这个「舞台」的绝佳装饰。 设计师以现代的简约感作为空间的底色,用轻复古轻法风为点缀,装饰空间的边边角角,也把生活的温馨浪漫藏进家的方方面面。 设计亮点: 1.拆除一楼多余隔墙形成的小空间,获得更加宽阔的客厅和餐厨空间; 2.借助客餐厅的完整墙面,利用橱柜打造开放式厨房,满足操作台面和设备柜的空间需要; 3.改变楼梯位置,把原楼梯空间释放给客厅休闲区域,利用客厅多余面宽容纳全新楼梯结构; 4.拆除二楼中央隔墙,打造两面储物的电视背景墙,让整个二楼呈现主卧套房形式; 5.用旋转楼梯连接二楼和阁楼,减少空间占用的同时,也给空间带来造型的趣味。
  • 图片
  • 图片
  • 图片
  • 图片
  • 图片
  • 图片
  • 图片
  • 图片
  • 图片
  • 图片
  • 图片
  • 图片
  • 图片
  • 图片
  • 图片
  • 图片
  • 图片
  • 图片
  • 图片
  • 图片
  • 图片
  • 图片
  • 图片
  • 图片
  • 图片
  • 图片
  • 图片
  • 图片
  • 图片
  • 图片
  • 图片
  • 图片
  • 图片
  • 图片
  • 图片
  • 图片
  • 图片
  • 图片
  • 图片
  • 图片
  • 图片
  • 图片
  • 图片
  • 图片
  • 图片
  • 图片
  • 图片
  • 图片
  • 图片
  • 图片
  • 图片
  • 图片
  • 图片
  • 图片
  • 图片
  • 图片
  • 图片
  • 图片
  • 图片
  • 上一个 下一个
    2024第八届金腾奖 私宅(独居)丨私宅(多人居)丨餐饮丨酒店丨办公丨商业丨公共丨公益丨人物丨NEW100 jintengAWARD(小金_金腾奖组委会) 广州市海珠区琶洲大道68号华新中心21楼
    金腾奖视频号 金腾奖小红书号 监制:刘译遥
    统筹:张俊媚
    运营:赖钰炼 曹凯月 刘芳棋 小金
    新媒体:王贝贝 严洁 张文一
    技术:黄天佑 丁德昌
    最终解释权归金腾奖主办方所有