star dream
作品详情
  • Details of the work 标题横线
    头像或者logo
    图片 上海映象设计
    城市:上海
    公司:上海映象设计
    参赛作品: 星想室成
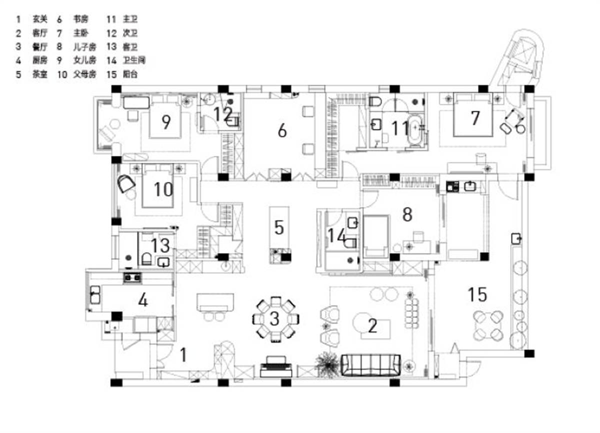
    空间类型:别墅
    个人/公司简介:
    2004年成立于上海,历经二十年的发展,品牌所倡导的舒适、自由的生活文化风靡全国。做最有范儿的设计,传播“更自由、更自我、更自在”的生活方式。
    设计说明 | Design Instruction
  • 一个家,能藏下多少生活的美好和感动? 设计师用设计细节的堆砌与彼此融合,将居所的每一寸都赋予鲜活的设计生命力。 让空间的每一处都是景色,让居家的每一刻都入人心。 设计亮点: 1.玄关运用橱柜打造半包围结构,满足超大的玄关储物需求,也是引导视线动线的过渡空间; 2.利用客餐厅与卧室书房之间的过渡空间,打造茶室,满足喝茶和藏品展示的文化需求; 3.打造融合卧室主卫和衣帽间的主卧套房,并且重塑格局留出储物空间,提升生活品质感; 4.让阳台连接多个空间,形成可以自由行动的超大洄游动线,从而赋能整屋的通透豪华感。
  • 图片
  • 图片
  • 图片
  • 图片
  • 图片
  • 图片
  • 图片
  • 图片
  • 图片
  • 图片
  • 图片
  • 图片
  • 图片
  • 图片
  • 图片
  • 图片
  • 图片
  • 图片
  • 图片
  • 图片
  • 图片
  • 图片
  • 图片
  • 图片
  • 图片
  • 图片
  • 图片
  • 图片
  • 图片
  • 图片
  • 图片
  • 图片
  • 图片
  • 图片
  • 图片
  • 图片
  • 图片
  • 图片
  • 图片
  • 图片
  • 图片
  • 图片
  • 图片
  • 图片
  • 图片
  • 图片
  • 图片
  • 图片
  • 图片
  • 图片
  • 图片
  • 图片
  • 图片
  • 图片
  • 图片
  • 图片
  • 图片
  • 图片
  • 图片
  • 图片
  • 图片
  • 图片
  • 图片
  • 图片
  • 图片
  • 图片
  • 图片
  • 上一个 下一个
    2024第八届金腾奖 私宅(独居)丨私宅(多人居)丨餐饮丨酒店丨办公丨商业丨公共丨公益丨人物丨NEW100 jintengAWARD(小金_金腾奖组委会) 广州市海珠区琶洲大道68号华新中心21楼
    金腾奖视频号 金腾奖小红书号 监制:刘译遥
    统筹:张俊媚
    运营:赖钰炼 曹凯月 刘芳棋 小金
    新媒体:王贝贝 严洁 张文一
    技术:黄天佑 丁德昌
    最终解释权归金腾奖主办方所有