The white house full of childishness
作品详情
  • Details of the work 标题横线
    头像或者logo
    图片 王子豪 庐州家居特约推荐
    城市:合肥
    公司: 独立设计师
    参赛作品: 纯白童趣之家
    空间类型:公寓(150㎡以下)
    个人/公司简介:
    设计理念:没有什么伟大的愿景,因为我主要是做私宅项目的,只希望可以通过营造一个美好家的形式,替我的业主留住当下最美好的期许。我们所居住的家,不应该是随着流行摆动的浮萍,它应该是有着强韧的根系,即便受到岁月的冲击,也仍能扎根于这具体的时代,真实地展现我们存在过的痕迹。
    设计说明 | Design Instruction
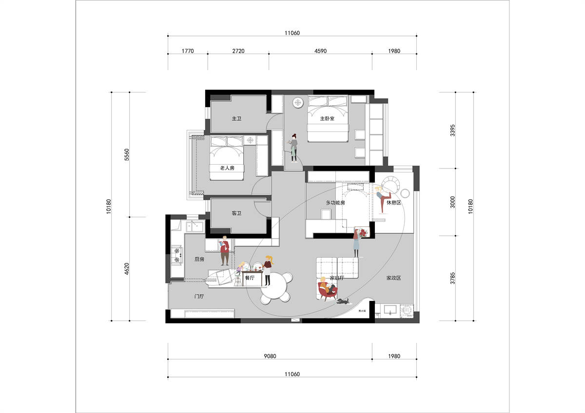
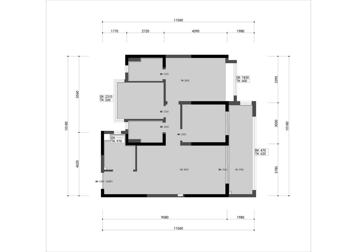
  • 本案是一套常规三居室的精装改造,厨房和卫生间保持原状。因为原始户型的空间感受欠佳,所以在方案里作出了针对性的回应。 首先设计了一个大圆弧吊顶贯穿公共区域,改善了整体的空间感,并且为整个家塑造了一个空间主题; 然后将厨房打开,利用一根椭圆立柱界定空间,使其形成了与门厅、餐厅互为关联又彼此独立的复合空间,而立柱本身则起到了隐藏门扇、视觉焦点、收纳展陈的作用; 其次,将通往后场区域的过道向南扩张,不仅舒缓了原本局促的交通关系,也为主卧平添了一处方便使用的收纳体系,使得主卧空间感得以提升; 而原本的次卧在损失一部分面积后,通过一段共有地台,与半边阳台连为整体,既弥补了空间上的缺失,获得了一个独立的休憩区,同时也延长了客厅的空间感,使其在视觉上显得更加开阔。 关于这个家为什么会叫童趣之家,是因为这个家运用了很多具有童真趣味的设计元素,譬如圆形、譬如各处大大小小的孔隙、譬如柜门上的玻璃。其实一开始也是无心之举,前面也交代了大圆弧和椭圆立柱的由来,但随着方案的推进,我发现业主真的很宠爱自家的小女儿,也听了很多关于这个家庭日常的故事。于是我就开始刻意在方案里加入一些有形的元素,借以引出无形的生活场景。
  • 图片
  • 图片
  • 图片
  • 图片
  • 图片
  • 图片
  • 图片
  • 图片
  • 图片
  • 图片
  • 图片
  • 图片
  • 图片
  • 图片
  • 图片
  • 图片
  • 图片
  • 图片
  • 图片
  • 图片
  • 图片
  • 图片
  • 图片
  • 图片
  • 图片
  • 图片
  • 图片
  • 图片
  • 图片
  • 图片
  • 图片
  • 图片
  • 图片
  • 图片
  • 图片
  • 图片
  • 图片
  • 图片
  • 图片
  • 图片
  • 图片
  • 图片
  • 图片
  • 图片
  • 图片
  • 上一个 下一个
    2024第八届金腾奖 私宅(独居)丨私宅(多人居)丨餐饮丨酒店丨办公丨商业丨公共丨公益丨人物丨NEW100 jintengAWARD(小金_金腾奖组委会) 广州市海珠区琶洲大道68号华新中心21楼
    金腾奖视频号 金腾奖小红书号 监制:刘译遥
    统筹:张俊媚
    运营:赖钰炼 曹凯月 刘芳棋 小金
    新媒体:王贝贝 严洁 张文一
    技术:黄天佑 丁德昌
    最终解释权归金腾奖主办方所有