新宇科技展厅
作品详情
  • Details of the work 标题横线
    头像或者logo
    图片 张磊 庐州家居特约推荐
    城市:合肥
    公司: 合肥万相筑造建筑设计有限公司
    参赛作品: 新宇科技展厅
    空间类型:办公
    个人/公司简介:
    为热爱而设计,执着而专注。 设计转化为现实,是一件美妙的事情。 金住奖合肥十大居住空间设计师 40 UNDER 40 中国(合肥)设计杰出青年等
    设计说明 | Design Instruction
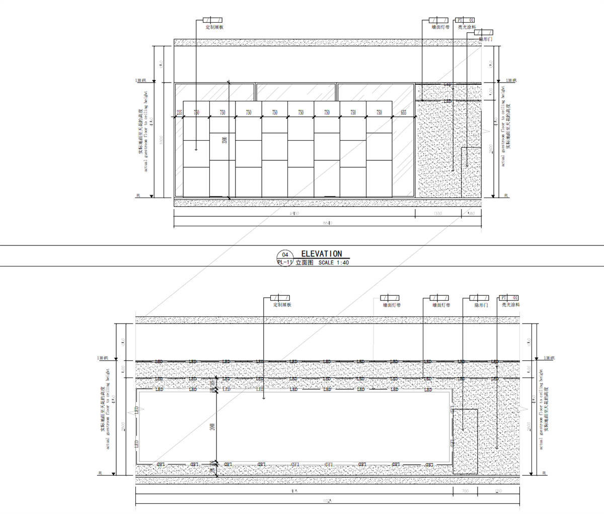
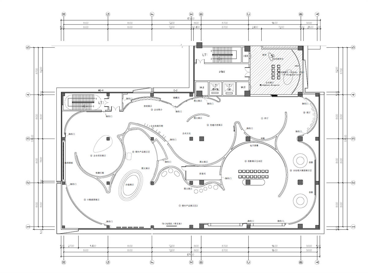
  • 在空间里把这种抽象的想法赋予体块关系,几何形状交织或分离构成了一个自由开放的几何平面,奠定了流畅流畅的空间基础。 年轮是生命的象征,时间创造周期的动能。从企业文化和发展历程中提取圆形的年轮作为设计概念,在方形的场地置入圆筒,围绕其布局动线,以全生命周期概念来表达企业的发展进程。 空间表达尝试使用减法,以垂直水平线和圆形构成。简单的元素孕育着无穷的力量,正如空间正中的圆形空间,贯穿破除两个空间界限,各部分的存在构成了一个整体,使空间更具有生命力。
  • 图片
  • 图片
  • 图片
  • 图片
  • 图片
  • 图片
  • 图片
  • 图片
  • 图片
  • 图片
  • 图片
  • 图片
  • 图片
  • 图片
  • 图片
  • 图片
  • 图片
  • 图片
  • 图片
  • 图片
  • 图片
  • 图片
  • 图片
  • 图片
  • 图片
  • 图片
  • 图片
  • 图片
  • 图片
  • 图片
  • 图片
  • 图片
  • 图片
  • 图片
  • 图片
  • 图片
  • 图片
  • 图片
  • 图片
  • 图片
  • 图片
  • 图片
  • 图片
  • 图片
  • 图片
  • 图片
  • 图片
  • 图片
  • 图片
  • 图片
  • 图片
  • 图片
  • 图片
  • 图片
  • 图片
  • 图片
  • 上一个 下一个
    2024第八届金腾奖 私宅(独居)丨私宅(多人居)丨餐饮丨酒店丨办公丨商业丨公共丨公益丨人物丨NEW100 jintengAWARD(小金_金腾奖组委会) 广州市海珠区琶洲大道68号华新中心21楼
    金腾奖视频号 金腾奖小红书号 监制:刘译遥
    统筹:张俊媚
    运营:赖钰炼 曹凯月 刘芳棋 小金
    新媒体:王贝贝 严洁 张文一
    技术:黄天佑 丁德昌
    最终解释权归金腾奖主办方所有