半山隐
作品详情
  • Details of the work 标题横线
    头像或者logo
    图片 赵胜 庐州家居特约推荐
    城市:合肥
    公司: 独立设计师
    参赛作品: 半山隐
    空间类型:办公
    个人/公司简介:
    2017荣获万科创意N次方最佳布局奖 2017荣获中国设计品牌大会办公类作品最受关注作品奖 2017年合肥市最受欢迎设计师荣获“十佳设计师”奖 2019年40UNDER40大奖中荣获安徽省区设计杰出青年 2019-2020年华鼎奖中国建筑装饰行业最具影响力设计师(会所空间类) 2019-2020年华鼎奖会所空间类金奖 2020年40UNDER40大奖中荣获安徽省区设计杰出青年 2020年金堂奖年度杰出“休闲娱乐空间” 2020-2021年新锐中国设计奖合肥城际榜 2020-2021年新锐中国设计奖安徽省际榜 2021年G+全球设计精英大赛安徽合肥榜 2021年M+中国高端室内设计大赛全国TOP100 2021-2022年40UNDER40大奖中荣获安徽省区设计杰出青年 2022年金堂奖年度杰出“休闲娱乐空间” 2022年年度老宅新生设计奖合肥十大改造设计师 2023年年度设计千人计划设计入选合肥设计师
    设计说明 | Design Instruction
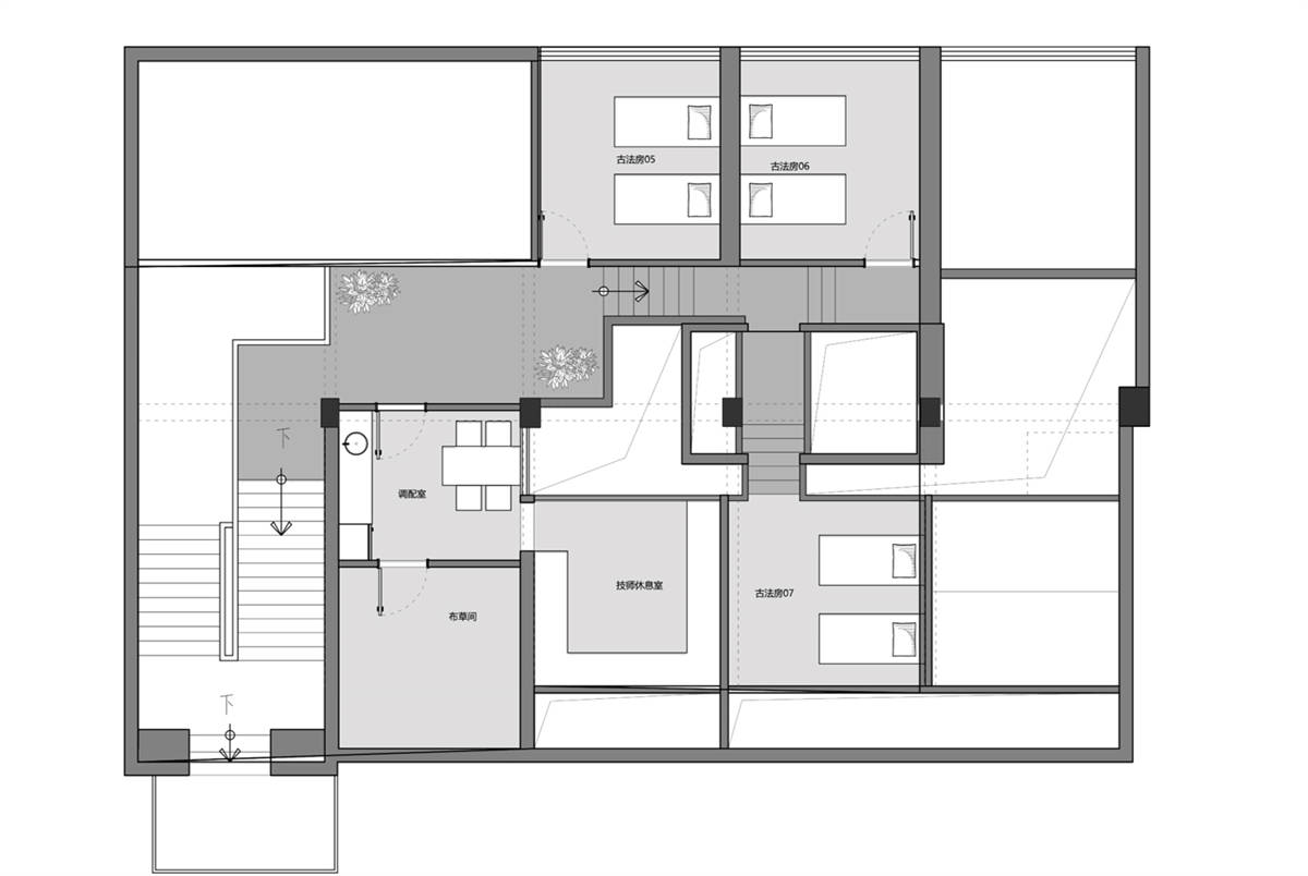
  • 在节奏加速的都市生活中,工作与压力并重,人们渴望一种释放、一种回归自然的宁静。于是,本案设计主理人将泰式按摩带入了熙攘城市,选择了一种非泰式(东南亚)的装修风格,不仅是引入,更是升华。最舒适的体验是由最舒适的手法和最舒适的环境共同构成的,这个融合了东方哲学的泰式SPA馆,一键开启了身心舒畅的新旅行。路径明晰正如夏目漱石所阐述:“休息是天赐的权利,生存的必需与义务,都须通过休息来恢复。”从前台开始,设计师希望让客人感受到来自东南亚的小资与惬意,洗净外界喧扰,绿色的石材与百叶屏风,将自然意境视觉化处理。等候区我们采用的内外结合的方式,整面的折叠窗,无疑在拉近每一位路过门店的客人,户外的休息区同样在对游玩客人的一份友好,抽离表面形式,赋能惬意享受。
  • 图片
  • 图片
  • 图片
  • 图片
  • 图片
  • 图片
  • 图片
  • 图片
  • 图片
  • 图片
  • 图片
  • 图片
  • 图片
  • 图片
  • 图片
  • 图片
  • 图片
  • 图片
  • 图片
  • 图片
  • 上一个 下一个
    2024第八届金腾奖 私宅(独居)丨私宅(多人居)丨餐饮丨酒店丨办公丨商业丨公共丨公益丨人物丨NEW100 jintengAWARD(小金_金腾奖组委会) 广州市海珠区琶洲大道68号华新中心21楼
    金腾奖视频号 金腾奖小红书号 监制:刘译遥
    统筹:张俊媚
    运营:赖钰炼 曹凯月 刘芳棋 小金
    新媒体:王贝贝 严洁 张文一
    技术:黄天佑 丁德昌
    最终解释权归金腾奖主办方所有