夕阳下的法式浪漫梦
作品详情
  • Details of the work 标题横线
    头像或者logo
    图片 上海本墨设计 ARENA场所特约推荐
    城市:上海
    公司:上海本墨设计
    参赛作品: 夕阳下的法式浪漫梦
    空间类型:公寓(150㎡以下)
    个人/公司简介:
    上海本墨设计成立于2011年5月,是由夫妻档设计师史宁,贺勤创立的空间设计工作室,专注高端私宅整案设计项目,始终坚持以人的需求为出发点,让空间服务生活,用空间作品去呈现和理解更多的不同生活方式。 设计总监:史宁,主要管控空间规划与居住逻辑,呈现执行落地。 软装总监:贺勤,主要控制软装视觉逻辑。 我们从不关心我们是不是做的最大的,我们只关心是不是还可以做得更好! 2016年度好好住年度设计师 2017年度好好住最受欢迎工作室 2017年度营造家奖最佳收纳金奖 2017年度PC house 创新风格设计奖 2018年度筑巢奖专业组类金奖 2017年 12月30日 登上CCTV2《空间榜样》 2018年登上《一条》第1313期 2018年度营造家奖最佳收纳奖 2018年度营造家奖提名奖 2019年度40under40 中国省会(上海)杰出青年设计师奖 史宁 2019年营造家奖最佳收纳银奖 2020年法国双面神GPDP AWARD国际空间设计大奖 2020年JAPAN IDPA AWARD日本国际先锋设计大奖 2021年台湾金邸奖 2021年FUTURE50私宅坐标人物 2023年年度40under40 中国省会(上海)杰出青年设计师奖 贺勤 2023年香港亚太设计师 2023年台湾TINTA金邸奖
    设计说明 | Design Instruction
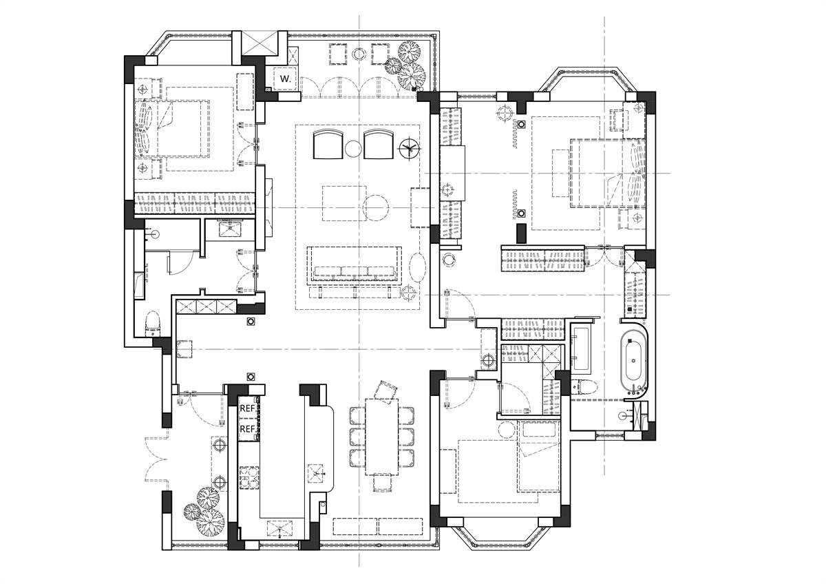
  • 原始户型除客餐厅有较为舒适的尺度外,主卧套房空间被分割成若干份显得局促,通往主卧的走道窄而狭长,转折的弯道有种迷宫的感觉,业主夫妇是留学回国的创业者,在国外住惯大尺度住宅总感觉这个房子有些局促。接到业主的委托我们重新梳理了室内空间关系,将主卧的所有空间拆除重新规划,缩短走道空间避让出儿童房及主卧的收纳空间,短的走道形成室内的第二玄关,进入主卧将原有的衣帽间横向布置,满足收纳的需求外增加了宽敞的过度转换空间,由过度空间进入卧室照顾到主卧的隐私情况下仪式感倍增,过渡区墙面两侧设置可通行洞口形成环形动线方便夜间盥洗,改变厨房进出动线敞开对外的吧台满足了社交属性,提供家人之间的交流互动,客厅利用可拆除的墙面壁炉左右两侧开门既满足了通向两个不同功能的通道也使客厅看上去更有仪式感,和壁炉对称摆放柚木色的vintage家具营造出浓烈的复古气息在夕阳的余晖映照下更显优雅浪漫的氛围。
  • 图片
  • 图片
  • 图片
  • 图片
  • 图片
  • 图片
  • 图片
  • 图片
  • 图片
  • 图片
  • 图片
  • 图片
  • 图片
  • 图片
  • 图片
  • 图片
  • 图片
  • 图片
  • 图片
  • 图片
  • 图片
  • 图片
  • 图片
  • 图片
  • 图片
  • 图片
  • 图片
  • 图片
  • 图片
  • 图片
  • 图片
  • 图片
  • 图片
  • 图片
  • 图片
  • 图片
  • 图片
  • 上一个 下一个
    2024第八届金腾奖 私宅(独居)丨私宅(多人居)丨餐饮丨酒店丨办公丨商业丨公共丨公益丨人物丨NEW100 jintengAWARD(小金_金腾奖组委会) 广州市海珠区琶洲大道68号华新中心21楼
    金腾奖视频号 金腾奖小红书号 监制:刘译遥
    统筹:张俊媚
    运营:赖钰炼 曹凯月 刘芳棋 小金
    新媒体:王贝贝 严洁 张文一
    技术:黄天佑 丁德昌
    最终解释权归金腾奖主办方所有