Bright Optical
作品详情
  • Details of the work 标题横线
    头像或者logo
    图片 崔凯
    城市:南京
    公司: 栖刻建筑设计
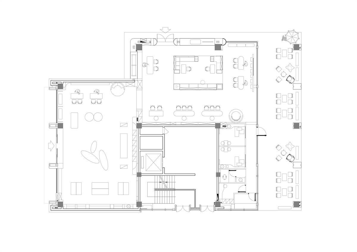
    参赛作品: 明亮眼镜.江阴旗舰店
    空间类型:办公
    个人/公司简介:
    个人简介: 毕业于南京艺术学院,从业十余年始终秉持学院派的设计初心,相信设计的动人之处来自长期积累迸发的天赋。2018年创办栖刻建筑设计,向不同领域提供具有前瞻性的商业空间设计服务,引领审美的同时运用设计的智慧重构空间秩序,创造与内心感受更加契合的空间体验。 行业荣誉: 中国设计星2022-2023全国36强 40UNDER40中国(江苏)设计杰出青年 NCA2023年度新商业空间设计师TOP100 2023老宅新生设计奖年度优秀商业空间奖 2023IWDA办公空间创新设计大奖 WYDF2022年度(大中华区)室内设计金奖 金堂奖2022年度杰出零售空间 2022ICS国际色彩空间设计优秀奖 红棉中国设计2021年度最美极简空间设计奖 金案奖2021-2022全国优胜奖 2021ICS国际色彩空间设计优秀奖 2020第十届艾特奖最佳办公空间设计奖
    设计说明 | Design Instruction
  • 作为一个以南京为中心,创办至今近30年的眼镜零售品牌,明亮眼镜门店遍布长三角各大城市及周边地区,坐拥数量庞大的“老客”的同时,其原本的店铺形象更是深入人心。因此,如何在完全实现门店空间升级的前提下,大幅提升高奢体验感的同时,保留顾客对品牌的辨识度,实现稳步提升,是我们在此次项目设计开始阶段,与品牌方反复探讨的重点内容。 首先是品牌方合理的区域布局计划,无锡区域首店选择全新商圈的沿街独栋商铺,并配合旗舰店的体量。用全新的品牌形象迎接全新的顾客群体,掀起线上线下新的传播热潮。 空间设计层面,我们提取原品牌门店视觉体系的中间色调,用更能引领当下审美趋势的材料质感、工艺技法、细节搭配予以重新诠释。起到对品牌升级承上启下的作用。 零售空间的动线布局会直接影响购物者的体验与销售层面的成交量,我们为此做了重点梳理,利用一个颇具空间张力的造型门洞,实现内外门厅域的转换。外厅以主入口为起点,形成相对环绕交织的动线,并予以更充足的商品陈列数量。内厅是以高端产品线陈列为主的体验及洽谈区,动线相对清晰直接,同时内厅可连通至次入口的步行街及后场的户外茶歇区,跟外厅共同形成多重循环的新零售动线。 内厅中间区域几组不同走向展架围合而成的核心区域,非常吸睛。是我们在零售领域的全新尝试。我们希望将陈列展示、洽谈销售、放松休憩在这里实现融合。展架向下延伸形成卡座,卡座向两侧发散承载各类产品画册,我们还专门为这个区域设计了造型独特的洽谈桌,让这里成为顾客进店之后最想坐下来感受空间之美的角落,最终销售环节也在此刻顺理成章的完成。
  • 图片
  • 图片
  • 图片
  • 图片
  • 图片
  • 图片
  • 图片
  • 图片
  • 图片
  • 图片
  • 图片
  • 图片
  • 图片
  • 图片
  • 图片
  • 图片
  • 图片
  • 图片
  • 图片
  • 图片
  • 图片
  • 图片
  • 图片
  • 图片
  • 图片
  • 图片
  • 图片
  • 图片
  • 上一个 下一个
    2024第八届金腾奖 私宅(独居)丨私宅(多人居)丨餐饮丨酒店丨办公丨商业丨公共丨公益丨人物丨NEW100 jintengAWARD(小金_金腾奖组委会) 广州市海珠区琶洲大道68号华新中心21楼
    金腾奖视频号 金腾奖小红书号 监制:刘译遥
    统筹:张俊媚
    运营:赖钰炼 曹凯月 刘芳棋 小金
    新媒体:王贝贝 严洁 张文一
    技术:黄天佑 丁德昌
    最终解释权归金腾奖主办方所有