HOMING
作品详情
  • Details of the work 标题横线
    头像或者logo
    图片 刘英杰 合观学社特约推荐
    城市:沧州
    公司: 见界空间
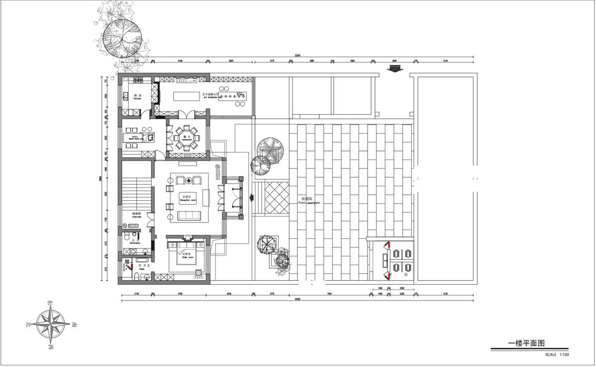
    参赛作品: 归巢
    空间类型:别墅
    个人/公司简介:
    刘英杰 设计总监 毕业于河北师范大学环艺系 曾任北京经济科学大学客座讲师。合观学社沧州分社执行委员会委员 见界空间创始人 设计理念:用理性的思维创作感性的设计 从业年限:7年 个人荣誉: 2018年 亚太空间室内设计大赛《十大空间魔法师》 2021年 金住奖中国(沧州)《十大居住空间设计师》 2023年 IS智能空间设计奖 《智能豪宅新势力(沧州)》 2023年 40UNDER40(河北)当代设计杰出青年 2024年 北京洞窝杯设计大赛 金奖
    设计说明 | Design Instruction
  • 以理性思维指导感性设计,这是我个人设计哲学的核心。设计的全过程是设计师不断融合理性与感性认知的循环上升过程。优秀的设计作品能够巧妙融合感性与理性,以设计师的个人素质为基础,从感性角度完美诠释理性需求。通过分析经典设计案例,本文提出设计师应正确把握和运用感性与理性思维,适当融合二者,以塑造优秀作品。在此基础上延伸的设计理念,将与设计初衷保持一致,更好地指引我们朝着正确的方向前进。 在当今设计界,感性与理性的融合已经成为一种不可避免的趋势。设计师们不再单纯地依赖直觉或者逻辑,而是寻找两者之间的平衡,以创造出更加出色、更加贴近用户需求的设计作品。这种融合不仅提升了设计的美感,也增强了设计的实用性和用户体验。 感性思维让设计师能够从用户的角度出发,去感受和理解用户的需求和情感,从而创造出更加人性化的设计。而理性思维则帮助设计师从功能、结构、技术等方面进行深入的分析和思考,确保设计的可行性和实用性。 通过不断地交替和融合感性与理性思维,设计师可以创造出更加优秀的设计作品。这些作品不仅具有美观的外观和良好的用户体验,同时也具备了强大的功能和技术支持。这正是理性与感性完美结合的体现,也是设计作品能够取得成功的关键所在。 因此,对于设计师来说,正确地把握和运用感性与理性思维,将二者恰当地融合,是进行优秀设计的基础。在这个基础上,设计师可以充分发挥自己的创造力和专业技能,为用户提供更加出色的设计作品,推动设计领域不断向前发展。
  • 图片
  • 图片
  • 图片
  • 图片
  • 图片
  • 图片
  • 图片
  • 图片
  • 图片
  • 图片
  • 图片
  • 图片
  • 图片
  • 图片
  • 图片
  • 图片
  • 图片
  • 图片
  • 图片
  • 图片
  • 图片
  • 图片
  • 图片
  • 图片
  • 图片
  • 图片
  • 图片
  • 图片
  • 图片
  • 图片
  • 图片
  • 图片
  • 图片
  • 上一个 下一个
    2024第八届金腾奖 私宅(独居)丨私宅(多人居)丨餐饮丨酒店丨办公丨商业丨公共丨公益丨人物丨NEW100 jintengAWARD(小金_金腾奖组委会) 广州市海珠区琶洲大道68号华新中心21楼
    金腾奖视频号 金腾奖小红书号 监制:刘译遥
    统筹:张俊媚
    运营:赖钰炼 曹凯月 刘芳棋 小金
    新媒体:王贝贝 严洁 张文一
    技术:黄天佑 丁德昌
    最终解释权归金腾奖主办方所有