CHUNJU&CÉNCÉN
作品详情
  • Details of the work 标题横线
    头像或者logo
    图片 张焱
    城市:南京
    公司: 栖刻建筑设计
    参赛作品: CHUNJU&CÉNCÉN
    空间类型:办公
    个人/公司简介:
    个人简介: 深耕室内设计行业十余年,并专注商业空间设计。对色彩及材料质感的搭配有着极高的敏感度,擅长运用设计巧思,平衡空间设计的学术性与商业性,实现商业空间的高溢价形象。2018年联合创办栖刻建筑设计。 行业荣誉: 《2023中国室内设计年鉴》入围收录 2023发现中国好设计发现100年度设计师 DESIGNCHINA2023年度(南京)十大先锋 2023老宅新生设计奖年度优秀商业空间奖 2023第26届CIID中国室内设计大奖赛铜奖 40UNDER40中国(南京)设计杰出青年 2022ICS国际色彩空间设计优秀奖 2021第十一届艾特奖餐饮空间设计优秀奖 2021第十一届艾特奖商业空间设计优秀奖 红棉中国设计2021年度最美极简空间设计奖 红棉中国设计2021年度最美艺术空间设计奖 红棉中国设计2021年度最美现代空间设计奖 金案奖2021-2022全国优胜奖 2021ICS国际色彩空间设计优秀奖 2020第十届艾特奖最佳办公空间设计奖
    设计说明 | Design Instruction
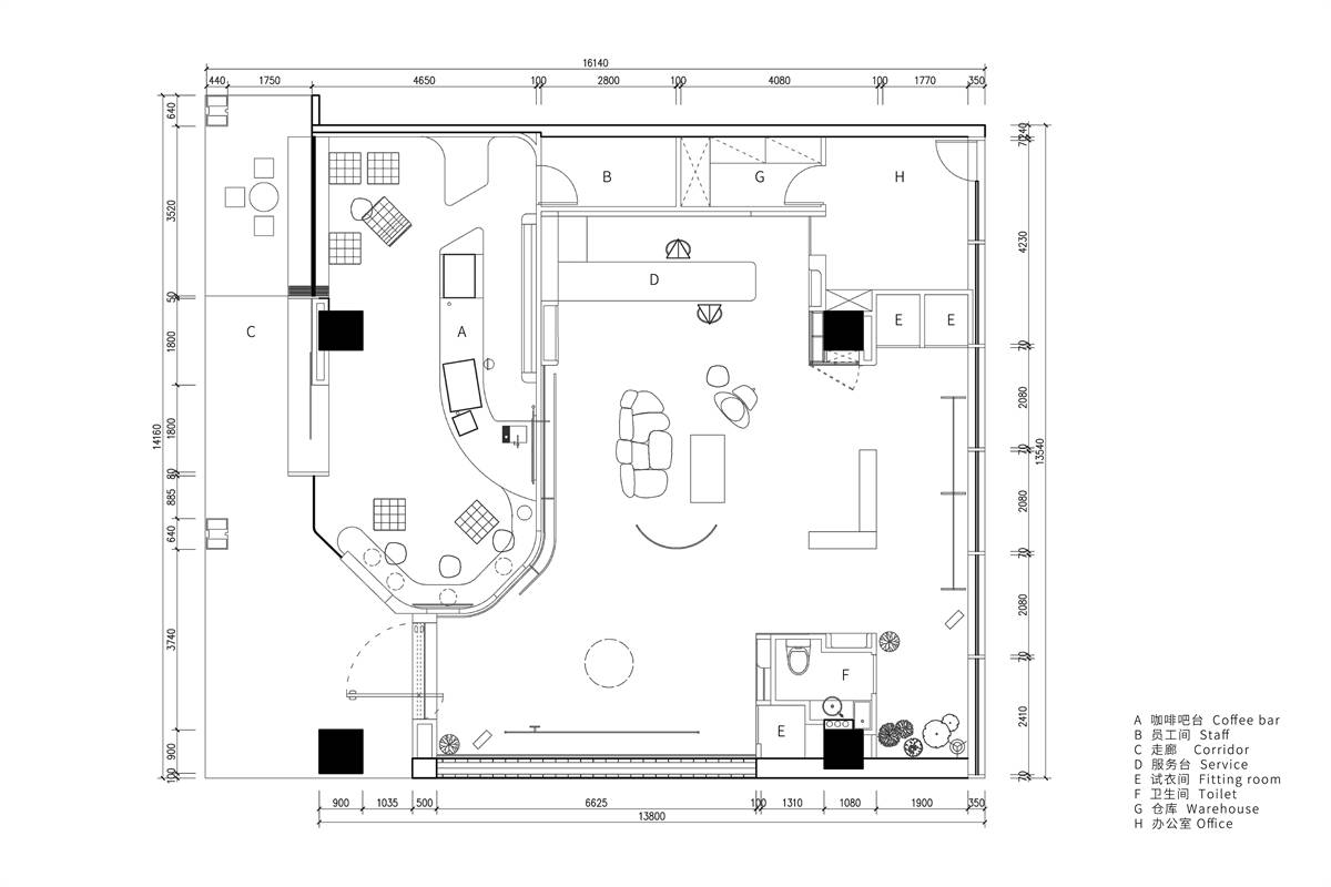
  • 本案选址于一栋公寓建筑一楼商铺的端头,但由于整体商铺开面位于公寓楼的背面并非临街,且距离主干道较远,自然视觉上不易察觉。从商业角度来看其实并非是一个优选铺位。然而当品牌主理人把我们约至项目现场,看到商铺周围的自然环境时,我们一致认为可以在此大胆尝试,创造一个富有生命力的空间产品,将自然与当下chill风格生活方式融合,品味时尚与美味的同时,沉浸在自然的怀抱中。 这是我们与CHUNJU品牌的第三次合作,从经营品类上,这次除了买手店还融入原创品牌CENCEN咖啡,结合项目选址的先天条件,品牌主理人将其命名为“大院儿”咖啡。 空间布局方面,我们从设计层面作出商业决策,说服主理人将更宽的铺位开面留给CENCEN大院儿咖啡,将更大的铺位深度留给CHUNJU买手店,并且两者之间并不互通。这样既保证咖啡店可以应对大量的自然人流,以利用外摆区域实现经营场地的自然扩展。又保证了买手店内有足够的消费舒适度,同时合理完成对咖啡店引流而来的新客筛选。 “大院儿”充分利用并延展了户外空间,我们使用柏油铺装及斑马线的点缀方式,营造出一个独立于城市的小生态圈。户外桌椅使用简单线条勾勒出轻松的户外风格,既符合现代都市的审美,又能与周围的绿树和草地和谐融合。 店内的景观落地窗,是消费者争先选择的最佳“打卡点”,阳光透过窗斑驳地洒在桌面,时间仿佛放慢了脚步,窗外的绿树和白色天幕在蓝天下构成了漫画中的景象。 在买手店这一侧,我们在设计之初就决定实现对自然光影的巧妙运用,这种运用不仅增强了空间的美感,还赋予了空间生命力和活力。光线从我们打开并用磨砂U形玻璃填充的东侧墙面透射进来,形成了一种温暖而柔和的氛围。南侧原有的采光窗用白色百叶帘加以遮盖,这种可控的光影效果不仅突出了衣物的质感和色彩,还使得整个空间更加温馨、舒适。 通过合理的设计手法,提升空间的商业价值,是我们追求的目标。因地制宜实现消费与环境的结合,让CHUNJU&CENCEN不仅是一个消费场所,更是一个生活方式引领的空间。开业后不久,其火爆的客流量以及社交媒体引爆的话题量,也印证了这一期待,实现了我们的设计初衷。
  • 图片
  • 图片
  • 图片
  • 图片
  • 图片
  • 图片
  • 图片
  • 图片
  • 图片
  • 图片
  • 图片
  • 图片
  • 图片
  • 图片
  • 图片
  • 图片
  • 图片
  • 上一个 下一个
    2024第八届金腾奖 私宅(独居)丨私宅(多人居)丨餐饮丨酒店丨办公丨商业丨公共丨公益丨人物丨NEW100 jintengAWARD(小金_金腾奖组委会) 广州市海珠区琶洲大道68号华新中心21楼
    金腾奖视频号 金腾奖小红书号 监制:刘译遥
    统筹:张俊媚
    运营:赖钰炼 曹凯月 刘芳棋 小金
    新媒体:王贝贝 严洁 张文一
    技术:黄天佑 丁德昌
    最终解释权归金腾奖主办方所有