YuanCheng Optical
作品详情
  • Details of the work 标题横线
    头像或者logo
    图片 张焱
    城市:南京
    公司: 栖刻建筑设计
    参赛作品: 远橙视光
    空间类型:办公
    个人/公司简介:
    个人简介: 深耕室内设计行业十余年,并专注商业空间设计。对色彩及材料质感的搭配有着极高的敏感度,擅长运用设计巧思,平衡空间设计的学术性与商业性,实现商业空间的高溢价形象。2018年联合创办栖刻建筑设计。 行业荣誉: 《2023中国室内设计年鉴》入围收录 2023发现中国好设计发现100年度设计师 DESIGNCHINA2023年度(南京)十大先锋 2023老宅新生设计奖年度优秀商业空间奖 2023第26届CIID中国室内设计大奖赛铜奖 40UNDER40中国(南京)设计杰出青年 2022ICS国际色彩空间设计优秀奖 2021第十一届艾特奖餐饮空间设计优秀奖 2021第十一届艾特奖商业空间设计优秀奖 红棉中国设计2021年度最美极简空间设计奖 红棉中国设计2021年度最美艺术空间设计奖 红棉中国设计2021年度最美现代空间设计奖 金案奖2021-2022全国优胜奖 2021ICS国际色彩空间设计优秀奖 2020第十届艾特奖最佳办公空间设计奖
    设计说明 | Design Instruction
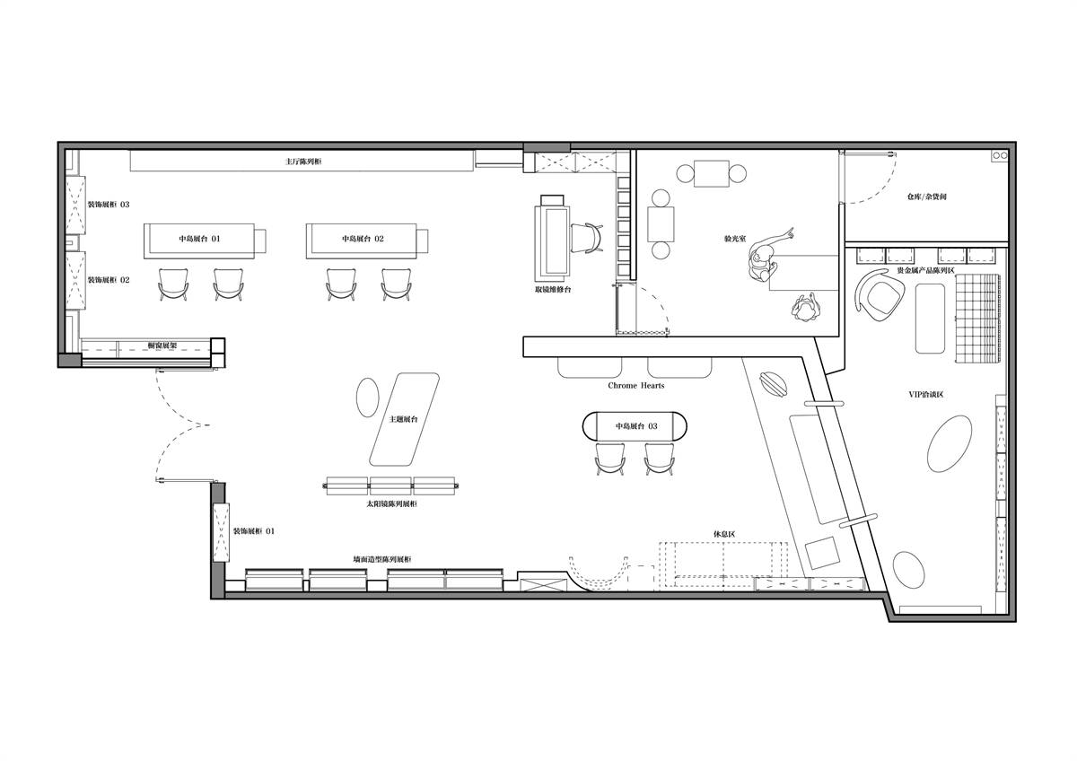
  • 在2023年底,我们携手远橙视光 ,为其设计位于北京市五道口商圈的全新零售店。从设计到施工完成,历经近半年的时间,终于在2024年7月,以令人眼前一亮的形态,呈现给消费者。 在本项目中,高档消费品定位与用户体验完美融合,在平面布局设计上,我们采取相对开放的设计手法。我们认为开放的产品陈列和顾客动线,可以消解高档消费品本身的定位所带来的距离感,配合伴随式的销售服务,突出“自由闲逛”,而不是用柜台将销售人员与顾客区隔开来,更符合当下高档消费品零售店的购物体验。 我们尝试在空间中使用天然材料,整体质感在视觉及触觉方面,均趋于哑光,温和而自然。局部用高光或平滑的质感点缀,相得益彰。 对于空间色彩的把控,源于我们对各种新材料探索的兴趣与搭配的技巧。我们希望在有序中跳脱几分无序,但却并不刻意,一切都明快而平静。 项目位于商业体底层商铺,并且身处内部走廊端头,没有自然采光。我们围绕原建筑剪力墙基础结构,利用层高优势,通过创造落差的方式,在空间转换处引入一缕“自然光”,实现在功能区转换的同时,感知空间高度及光照的变化,为空间体验者带来额外的惊喜。 我们希望打造的商业零售空间,既应该是产品的载体,更应该是体验的载体。所有的展示陈列系统,大至墙面壁龛陈列柜层级间距,小至抽屉内的托盘植绒厚度,均以细致到毫米级的方式论证与探讨,是我们一如既往的坚持。
  • 图片
  • 图片
  • 图片
  • 图片
  • 图片
  • 图片
  • 图片
  • 图片
  • 图片
  • 图片
  • 图片
  • 图片
  • 图片
  • 图片
  • 图片
  • 图片
  • 图片
  • 图片
  • 图片
  • 图片
  • 图片
  • 图片
  • 图片
  • 图片
  • 上一个 下一个
    2024第八届金腾奖 私宅(独居)丨私宅(多人居)丨餐饮丨酒店丨办公丨商业丨公共丨公益丨人物丨NEW100 jintengAWARD(小金_金腾奖组委会) 广州市海珠区琶洲大道68号华新中心21楼
    金腾奖视频号 金腾奖小红书号 监制:刘译遥
    统筹:张俊媚
    运营:赖钰炼 曹凯月 刘芳棋 小金
    新媒体:王贝贝 严洁 张文一
    技术:黄天佑 丁德昌
    最终解释权归金腾奖主办方所有