Residence CC
作品详情
  • Details of the work 标题横线
    头像或者logo
    图片 王伟丞 i室设圈漂亮家居设计家媒体特约推荐
    城市:台北
    公司: CPD interiors (Cheng and Partners Design Office)
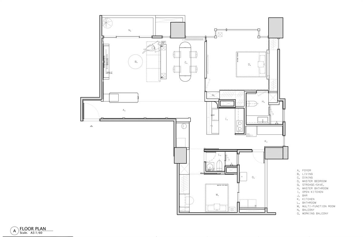
    参赛作品: Residence CC界无界
    空间类型:公寓(150㎡以下)
    个人/公司简介:
    CPD interiors以王伟丞为首,致力于发展空间/品牌/艺术设计,深入探索人为环境的物理特性与精神本质,期许未来与更多伙伴协作,分享多样且美好的空间经验。 设计跳脱常态规则,擅长解构既定的机能,从逻辑、材料与造型转译惯性思维,深化美学底蕴引发空间使用者的感性体悟。 过去执行过住宅公设、连锁饭店、大型书店和零售业等商业与公众空间规划案,其负责的「爵醒Newborn 30」与「衍伸Extend Derivative」两项目并连续获得2012 TID商业空间与单层居住空间奖项。
    设计说明 | Design Instruction
  • 再亲密的夫妻也存在不可解决的歧异,当不同风格的两种表述碰撞时,这个空间选择承认歧异的存在,并且表现之。在壁垒分明的深色调与浅色调之间,找到斯文共处的适切比例,而乍看硬气的拼接里,如同藏针缝埋入渗透细节,使屋檐下的两种生活可以相依相偎,活出尊重又亲爱的彼此。 由于居住人口单纯,把原有三房调整为两房,打开的空间合并到客厅,展现出格局连续落地窗的采光优点。利用尺度的大小与色调的明暗对比,制造情绪上的反差,比如深色压缩的玄关以及明亮开敞的客厅、藏于阴翳的厨房吧台与光线明媚的餐厅,低音与高音一起发声,协和与不协和在巧妙对位下,组成独特的曲式。 以位在格局中间的玄关为界,按7:3的比例划分上下半部为明与暗的世界,于两个世界相接的边缘加入渗透,玄关柜的上下悬空,渗过天花板与地板材质,而与墙脱开的狭缝,则伸入客厅白色石材墙;反之,包覆柜体的黑色镀钛则沿着弧角,显露在客厅面的书柜上。光线与材质刻意越界,提前暗示即将迎来的反差,使过渡化于无形。 拆解机能重组于量体,玄关柜不只整合鞋柜与衣帽柜,更可双面使用成为客厅的书柜;分界客餐厅的双面矮柜结合插座,支持客厅的充电需求。至厨房,吧台桌面下结合金属卡槽与微型插座,可收纳杂志与笔电,赋予居家办公的功能。并藉由两道隐藏拉门界定客房为雅房或套房,使空间使用更为弹性。 在明与暗的调性里,各自使用五至六种不同材料,如:皮革、金属、木质、石材、布料等,用视觉的看见或是触觉的摸到,展现出明/暗色调里的丰富层次。此外,玄关黑色木皮墙上的序列壁灯,以及底端连接吧台的镀钛弧形墙,除了具有暗示动线延伸或是收尾的作用,同时营造出长廊与端景效果,为居家注入使生活变得讲究的仪式感。
  • 图片
  • 图片
  • 图片
  • 图片
  • 图片
  • 图片
  • 图片
  • 图片
  • 图片
  • 图片
  • 图片
  • 图片
  • 图片
  • 上一个 下一个
    2024第八届金腾奖 私宅(独居)丨私宅(多人居)丨餐饮丨酒店丨办公丨商业丨公共丨公益丨人物丨NEW100 jintengAWARD(小金_金腾奖组委会) 广州市海珠区琶洲大道68号华新中心21楼
    金腾奖视频号 金腾奖小红书号 监制:刘译遥
    统筹:张俊媚
    运营:赖钰炼 曹凯月 刘芳棋 小金
    新媒体:王贝贝 严洁 张文一
    技术:黄天佑 丁德昌
    最终解释权归金腾奖主办方所有