Meditation House
作品详情
  • Details of the work 标题横线
    头像或者logo
    图片 李羿桦 i室设圈漂亮家居设计家媒体特约推荐
    城市:台北
    公司: 桦设设计
    参赛作品: 僻静所
    空间类型:公寓(150㎡以下)
    个人/公司简介:
    桦设室内设计有限公司,自2017成立以来,心中怀抱着对设计的执着与热情,已经深耕室内设计、空间规划领域多年, 起初设计的初衷,是在有限的空间内,以专业的方式解决屋主繁复的生活问题,藉由改变动线、氛围、色彩,重塑生活样貌追求更具互动的空间。桦设设计精工细作的态度包含的不只是单纯的点.线.面.的架构而已,透过相同的理念以及对细节的严格要求,为屋主创造梦想,让空间展现感动人心的生命力。
    设计说明 | Design Instruction
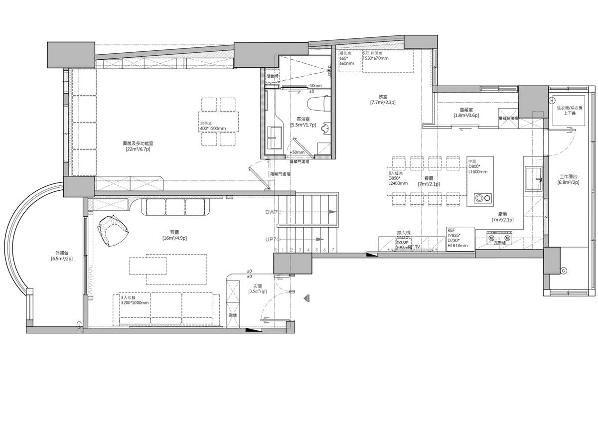
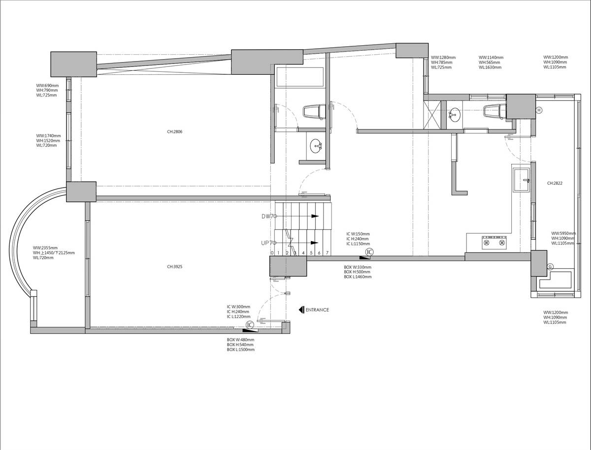
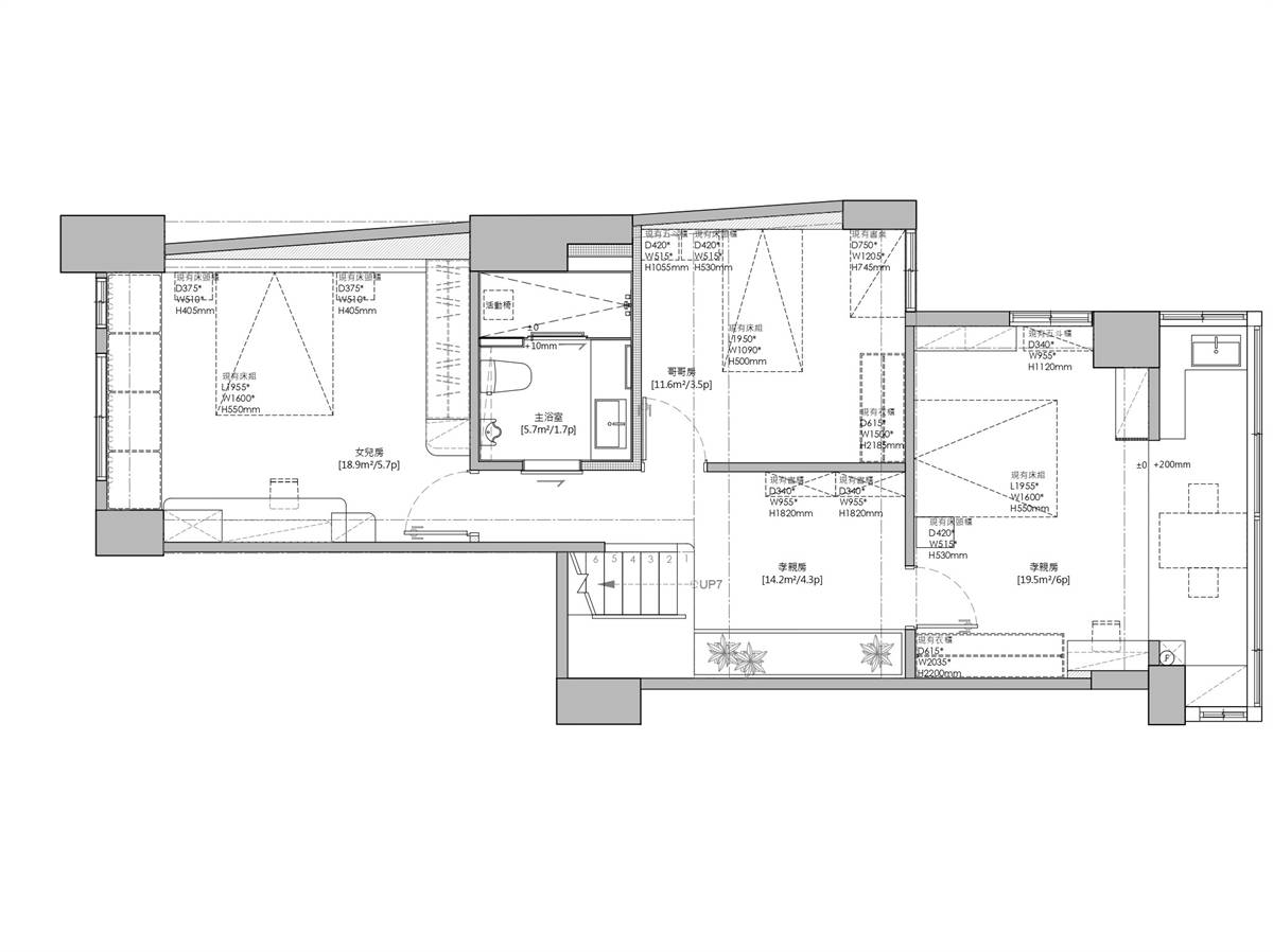
  • 这间55坪的老屋是一间作为礼佛共学的招待所,屋主期待在舒适放松的空间里,和一群有着共同信仰的朋友读经学习并开班授课。在这样的前提下,微调格局与楼梯结构,拆除一房与餐厨合并,搭配镂空楼梯维持通透视野,同时纳入大量弧线软化空间线条。温润的木质与陶砖增添自然质朴的韵味,空间凝聚一股宁定内省的氛围,藉此促进人与人、人与空间更深层的心灵联系。 由于屋主并不在此定居,如何容纳大量共学的朋友和学生,打造一处贡佛的静修之地,成为设计的重要关键。因此公共领域尽可能维持开阔通透,利用超过4米的屋高,从天花到墙面安排连续性的木饰面,彰显恢弘宁静的气度。而原先的水泥楼梯则改以铁件建构,镂空的设计维持上下空间的穿透感。社交重心则集中于书房和餐厨区。一房拆除改为佛堂,与餐厨相邻,保有开阔尺度。书房安排长桌和卧榻,多人使用也游刃有余,沿墙设置整排柜体则有效扩增收纳量,大量的经学读本都能收藏于此。
  • 图片
  • 图片
  • 图片
  • 图片
  • 图片
  • 图片
  • 图片
  • 图片
  • 图片
  • 图片
  • 图片
  • 图片
  • 图片
  • 图片
  • 图片
  • 图片
  • 图片
  • 图片
  • 图片
  • 图片
  • 图片
  • 图片
  • 图片
  • 图片
  • 上一个 下一个
    2024第八届金腾奖 私宅(独居)丨私宅(多人居)丨餐饮丨酒店丨办公丨商业丨公共丨公益丨人物丨NEW100 jintengAWARD(小金_金腾奖组委会) 广州市海珠区琶洲大道68号华新中心21楼
    金腾奖视频号 金腾奖小红书号 监制:刘译遥
    统筹:张俊媚
    运营:赖钰炼 曹凯月 刘芳棋 小金
    新媒体:王贝贝 严洁 张文一
    技术:黄天佑 丁德昌
    最终解释权归金腾奖主办方所有