Fairy Tale
作品详情
  • Details of the work 标题横线
    头像或者logo
    图片 郑茹君&吴易霖 i室设圈漂亮家居设计家媒体特约推荐
    城市:新北
    公司: 豫禾设计
    参赛作品: 童话
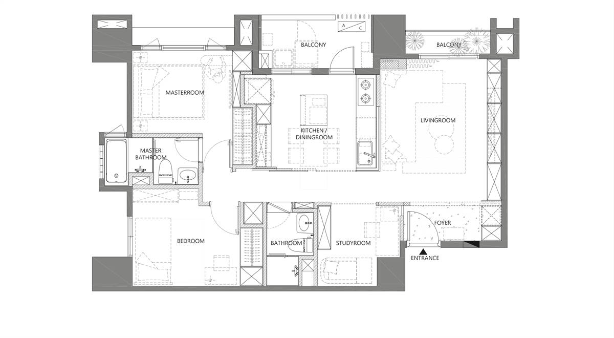
    空间类型:公寓(150㎡以下)
    个人/公司简介:
    「豫禾-创造真正的安逸和乐居所。」做为设计师来说,美学是必然存在的,而我们希望透过进一步细节沟通,彻底让空间更贴近于屋主每一寸生活,让屋主入住后,能惊艳于每个细心及巧思,真正享受设计师所给予的专属舒适。
    设计说明 | Design Instruction
  • 在屋里能感受到柔软的色调、简约的线条、典雅的线板饰条,偶尔跳色带给空间变化感,这些元素都来自屋主多元的喜好,藉由色彩的整合,让每个区块都拥有独特的样貌。此外,热爱宴客的屋主十分注重厨房空间,希望拥有相对更大的尺度,因此进行格局上的微调,给予整体公共区域更舒适的机能性。 建商原本规划的格局依据需求做了微调,为了符合屋主大厨房的期望,将厨房与一房合并,藉由与主卧室相邻的壁面调整两侧柜体使用深度,让主卧与厨房都能保有舒适的动线,小孩房则是为了给予更多收纳机能,退掉半套卫浴设施。屋主也提出了储物需求,客厅区的收纳结合玄关柜整合为电视墙,同时满足大电视、游戏设备、音响设备等需求,保持利落、宽敞的空间感。男主人偶尔需在家工作,运用畸零角落规划为书房,以家具量体消弭非方正的空间,并藉由垂帘保持空间的通透与延伸。 厨房则合并两房的空间,增加了中岛与餐厨柜,在料理时能做为辅助平台,较大的电器则能置放于深度较充足的中岛中,并且配置伸缩餐桌,平日收起能保持流畅的动线,延伸时的跨界则能进一步连接客厅机能,并且以拉门阻隔油烟,同时能创造最大开口与外界连结,采用玻璃隔屏联系着公共区块的通透空间感,促进宾主间的情感交流。
  • 图片
  • 图片
  • 图片
  • 图片
  • 图片
  • 图片
  • 图片
  • 图片
  • 图片
  • 图片
  • 图片
  • 图片
  • 图片
  • 图片
  • 图片
  • 图片
  • 图片
  • 图片
  • 图片
  • 图片
  • 图片
  • 图片
  • 图片
  • 图片
  • 图片
  • 图片
  • 图片
  • 图片
  • 上一个 下一个
    2024第八届金腾奖 私宅(独居)丨私宅(多人居)丨餐饮丨酒店丨办公丨商业丨公共丨公益丨人物丨NEW100 jintengAWARD(小金_金腾奖组委会) 广州市海珠区琶洲大道68号华新中心21楼
    金腾奖视频号 金腾奖小红书号 监制:刘译遥
    统筹:张俊媚
    运营:赖钰炼 曹凯月 刘芳棋 小金
    新媒体:王贝贝 严洁 张文一
    技术:黄天佑 丁德昌
    最终解释权归金腾奖主办方所有