Keqiao - Qiaodu Yipin Grand Flat
作品详情
  • Details of the work 标题横线
    头像或者logo
    图片 钱瀚 江南名师汇特约推荐
    城市:杭州
    公司: 钱瀚设计团队
    参赛作品: 柯桥·侨都一品大平层
    空间类型:别墅
    个人/公司简介:
    获奖荣誉: CIID青年设计大赛优秀设计师奖 金堂奖年度评选十佳住宅空间 亚太室内设计双年大奖赛银奖 陈设中国‘晶麒麟奖’优秀作品奖 尚层设计师峰会 金奖 中国建筑装饰金鹰设计金奖
    设计说明 | Design Instruction
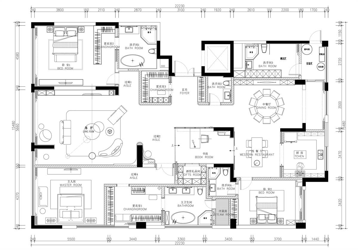
  • 大平层户型是闹市生活的承载,往往多了几许在寒暑推移中闹中取静的寻觅和向往,于是在设计理念上,便也增了几多悠然与厚重。 本项目位于柯桥核心主城区 瓜渚湖畔,地段繁华,四通八达,这套侨都一品的高层大平层住宅被金柯桥大道、群线路、湖西路、百花路四条繁忙的商业主轴所怀抱,直面瓜渚湖一线湖景,坐拥社区内20000平方米的天然小西湖,为柯桥城区中心独一无二的天然水景。 主创设计钱老师慎重解构并解读建筑的结构,在充分利用项目建筑与景观优势的同时,将业主对未来生活的展望从点滴开始描绘,并以有序的平面布局、精致的选材和优雅的氛围营造生活的仪式感。 320平方的室内空间内,设计师根据业主的家庭构成和生活社交状态进行了平面排布。以入户大门为界,这套住宅可以分为两个区块:外部区域包括玄关、换鞋区、入户长廊以及中西餐厅、公卫、洗衣房和保姆间等功能空间;内部区域包括客会客厅,3个套房、1个敞开式书房以及配套的卫生间和生活储物空间。 住宅的平面布局是影响房屋气质的重要因素,设计师改造布局后实现了南北通透,将客厅,餐厅,书房连成一体,同时确保空间功能齐全,在动线上形成生活闭环。主卧放置在客厅东方,合理的布局确保了主卧的面积和私密性。 客厅四周以石材纹理打造了弧线形墙体,减少了棱角的线条,增加了盈润的气息,给每一次休憩带来更多惬意。巨大的落地窗可以一览城市中的车水马龙与湖光水色,将天际线尽收眼底。 餐厅剔除了繁琐的设计元素,保留直白的装饰语言和完整的户外光源来营造回家的简约氛围,墙面的原木色为空间构造出沉稳内敛的气质,渲染一夕一食中的安闲自在。 书房作为家庭中的办公空间在平面上略有上升,简约的线条配合木质原色,如同意识海洋中的浮岛,独立而清醒。在半开放的围合空间里,主人沉浸在自己精神世界中的同时,仍保留着和家庭的互动。 主卧空间以木质地板营造安逸氛围,透过整面的落地玻璃幕墙,遥相呼应城市风景,足不出户也能感受到城中湖水的波光。床体以木饰面与白色护墙板为背景墙,当阳光穿透,淡淡光阴拉长时间的影子,享受一段悠闲的栖息。 城市生活的多元化赋予了动静空间的实际意义,设计师搭配室内平曲结构,用简约设计手法进行了有层次的意境表达,营造出一个生机盎然的时尚居家空间。
  • 图片
  • 图片
  • 图片
  • 图片
  • 图片
  • 图片
  • 图片
  • 图片
  • 图片
  • 图片
  • 图片
  • 图片
  • 图片
  • 图片
  • 图片
  • 图片
  • 图片
  • 图片
  • 图片
  • 图片
  • 图片
  • 上一个 下一个
    2024第八届金腾奖 私宅(独居)丨私宅(多人居)丨餐饮丨酒店丨办公丨商业丨公共丨公益丨人物丨NEW100 jintengAWARD(小金_金腾奖组委会) 广州市海珠区琶洲大道68号华新中心21楼
    金腾奖视频号 金腾奖小红书号 监制:刘译遥
    统筹:张俊媚
    运营:赖钰炼 曹凯月 刘芳棋 小金
    新媒体:王贝贝 严洁 张文一
    技术:黄天佑 丁德昌
    最终解释权归金腾奖主办方所有