Chase dreams
作品详情
  • Details of the work 标题横线
    头像或者logo
    图片 李昱卓 麟居特约推荐
    城市:长治
    公司: 嶺東设计
    参赛作品: 逐梦
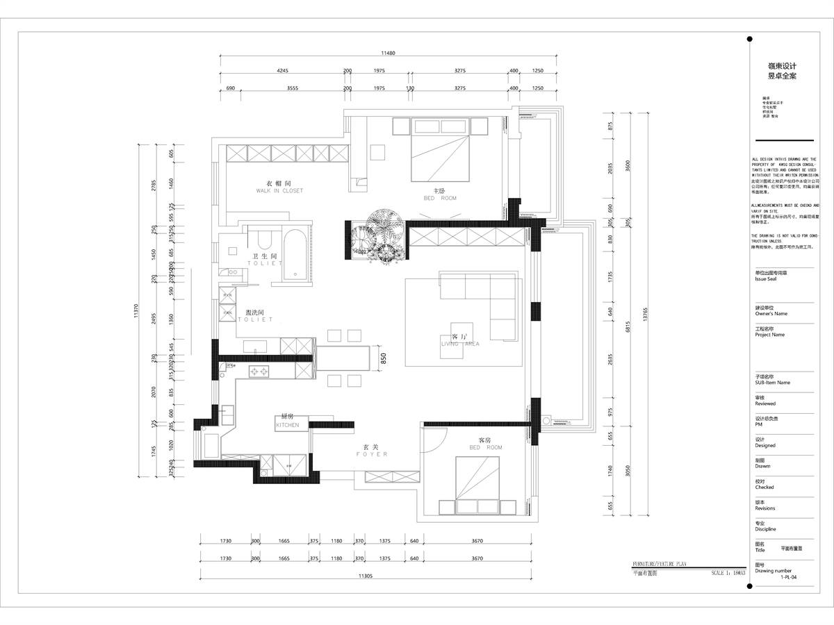
    空间类型:公寓(150㎡以下)
    个人/公司简介:
    李昱卓 2007年毕业于山西建筑学院建筑装饰系 国际建筑室内装饰协会注册高级室内配饰 2011入选交换空间,设计作品《遇见》 2014山西十大新锐设计师称号 2014山西顶层设计大赛年度优秀住宅空间设计奖 2018居然设计杯室内设计大赛住宅空间优秀奖 2020年金住奖-中国(长治)十大居住空间设计师 2020年度躺平设计家设计人物奖 2021年金住奖-中国(长治)十大居住空间设计师 2021年4040长治设计师杰出青年 2021年百度馨居奖全国TOP300 金堂奖2022年度杰出设计作品
    设计说明 | Design Instruction
  • 去放肆地想象,明晰你最想要的生活的模样,在细化的过程中,演绎现代主义美学,把没有生命的空间,变成有情感的生活搭档,令人不再畏惧孤独,跟着时光慢悠悠地走,内心笃定而满足,焦距目光与自然对话,空间以温润的白作为主色调,通过内部的构造来呈现空间层次感,实现了功能与形式的并存。增加空间的厚重感与延伸感,每个细节都被考虑在内,每一处空间都被赋予其意义。
  • 图片
  • 图片
  • 图片
  • 图片
  • 图片
  • 图片
  • 图片
  • 图片
  • 图片
  • 图片
  • 图片
  • 图片
  • 图片
  • 图片
  • 图片
  • 图片
  • 图片
  • 图片
  • 图片
  • 图片
  • 图片
  • 图片
  • 上一个 下一个
    2024第八届金腾奖 私宅(独居)丨私宅(多人居)丨餐饮丨酒店丨办公丨商业丨公共丨公益丨人物丨NEW100 jintengAWARD(小金_金腾奖组委会) 广州市海珠区琶洲大道68号华新中心21楼
    金腾奖视频号 金腾奖小红书号 监制:刘译遥
    统筹:张俊媚
    运营:赖钰炼 曹凯月 刘芳棋 小金
    新媒体:王贝贝 严洁 张文一
    技术:黄天佑 丁德昌
    最终解释权归金腾奖主办方所有