liangqiju
作品详情
  • Details of the work 标题横线
    头像或者logo
    图片 内江市拾亩装饰设计有限责任公司
    城市:内江
    公司:内江市拾亩装饰设计有限责任公司
    参赛作品: 良栖居
    空间类型:别墅
    个人/公司简介:
    公司成立于2014年,是一家以设计加施工一体的「设计型」家装公司。7年来,我们一直坚守「设计 创造美好生活」提供包括全案/软装设计施工、主材/软装代购在内的室内装修服务,承接内江本地乃至全国设计服务。
    设计说明 | Design Instruction
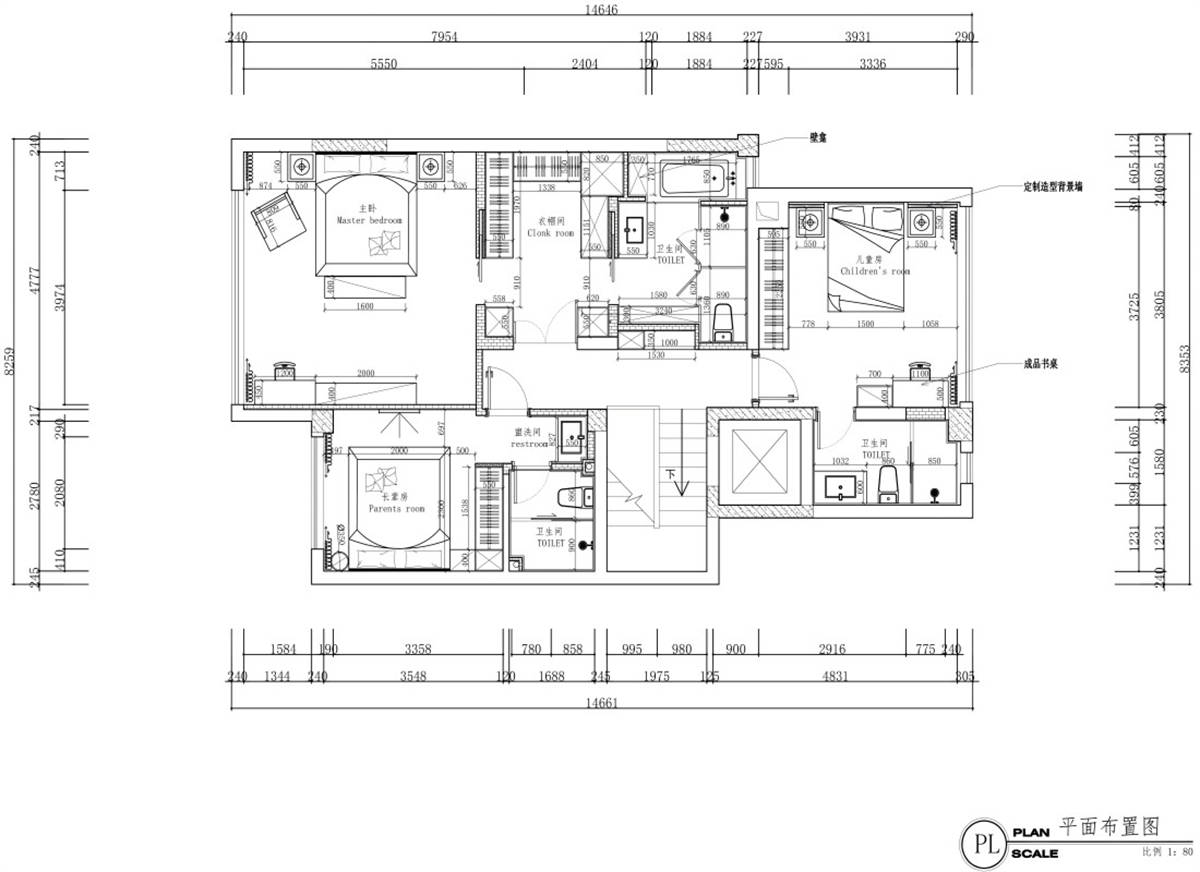
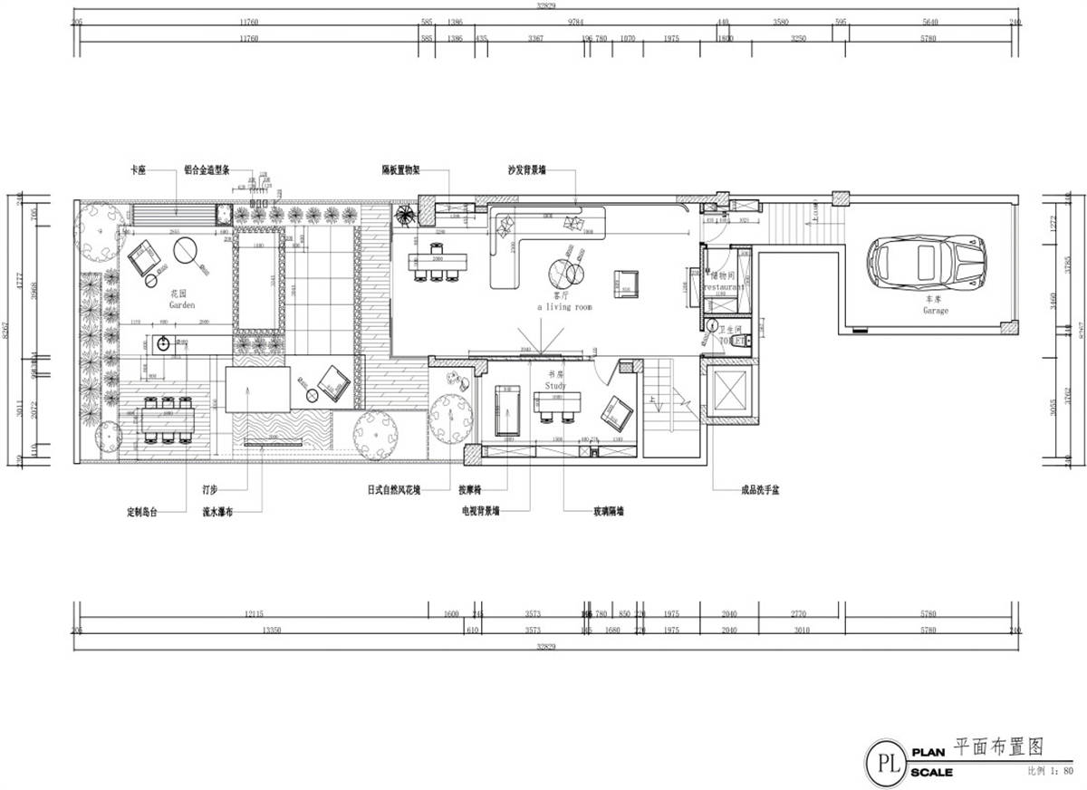
  • 业主要求:1.需要独立书房2.老人不看电视3.可以开放式厨房4老人喜欢打理花园 现场环境条件:1F进深长、车库入户黑、入户方式过于直接。小房间与客厅的互动性差,独立厕所(不常用)占据过多空间,导致房间面积狭小。 □ 1F厨房狭小、结构单一。 □ 2F原始卧室空间布局的不合理性 设计方案立意:呈现出低调含蓄的空间氛围 技术层面特殊考虑及做法: -1楼玻璃和岩板结合的墙面,玻璃的和岩板之间的施工先后顺序是难点 业主评价:家里常住人口九人,我们所提出的需求,在实景中都得到了落实,做到了1:1还元落地实景,实景效果还是非常满意的。 设计思路:本案例为室内249平+室外126平的下叠别墅项目。男屋主是外地人,父母大概半年会来这里居住一次。有一个正在上幼儿园的小朋友,是其乐融融的幸福之家。重视家庭氛围的营造,尤其强调书香气息的熏陶,本案主题的关键词为:开放自由、理性克制。
  • 图片
  • 图片
  • 图片
  • 图片
  • 图片
  • 图片
  • 图片
  • 图片
  • 图片
  • 图片
  • 图片
  • 图片
  • 图片
  • 图片
  • 图片
  • 图片
  • 图片
  • 图片
  • 图片
  • 图片
  • 图片
  • 图片
  • 图片
  • 图片
  • 图片
  • 图片
  • 图片
  • 图片
  • 图片
  • 图片
  • 上一个 下一个
    2024第八届金腾奖 私宅(独居)丨私宅(多人居)丨餐饮丨酒店丨办公丨商业丨公共丨公益丨人物丨NEW100 jintengAWARD(小金_金腾奖组委会) 广州市海珠区琶洲大道68号华新中心21楼
    金腾奖视频号 金腾奖小红书号 监制:刘译遥
    统筹:张俊媚
    运营:赖钰炼 曹凯月 刘芳棋 小金
    新媒体:王贝贝 严洁 张文一
    技术:黄天佑 丁德昌
    最终解释权归金腾奖主办方所有