Romantic
作品详情
  • Details of the work 标题横线
    头像或者logo
    图片 曾骏
    城市:株洲
    公司: 点道设计机构
    参赛作品: Z宅
    空间类型:公寓(150㎡以下)
    个人/公司简介:
    22届ciid中国室内设计大奖赛文化传承方案类入选奖 2021-2022 TOP DESIGN100 设计头条年鉴榜TOP100 “寻找国民好设计”阿里巴巴每平每屋设计挑战赛 全国TOP300 40Under40 中国(株洲)设计杰出青年(2021-2022) 40Under40 中国(株洲)设计杰出青年(2022-2023) 中国设计星(2022-2023)全国36强候选人 2022顶峰设计奖住宅空间实景类铜奖 25届CIID中国室内设计大奖赛经济型住宅工程类优秀奖
    设计说明 | Design Instruction
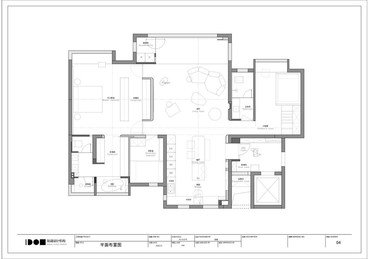
  • 本案是个四房两厅三卫户型, 根据业主的家庭情况最终决定以女主人和孩子的需求为主进行整体设计规划。平面规划的重点:1.尽量减轻家务与育儿负担。2.让空间的纵深感和尺度感最大化。3.人在空间中的动线流畅。4.把户型的采光与视线优化到极致。 打开厨房空间,T形餐岛与轴门的组合,让餐厅与厨房有了互动与交流,并且关照到中式餐饮的封闭需要。整合收纳功能,立面上使用仿金属饰面材质划分,既提升整体摩登现代的感觉又将功能整理成面,形成统一。 主卧套配置拉满,双衣帽间、洄游动线、四分离卫浴、景观浴缸。让主人享受这大平层带来的身体和心灵的双重舒适感。 儿童房将学习、睡眠、收纳都进行模块化处理,让小孩有了自己舒适的卧室空间的同时,还能有足够的休闲与学习空间。同时加入了乐高元素,整体颜色搭配有活泼的氛围,抽象化的处理也不会在小孩成长之后感觉到幼稚与过时。
  • 图片
  • 图片
  • 图片
  • 图片
  • 图片
  • 图片
  • 图片
  • 图片
  • 图片
  • 图片
  • 图片
  • 图片
  • 图片
  • 图片
  • 图片
  • 图片
  • 图片
  • 图片
  • 图片
  • 图片
  • 图片
  • 上一个 下一个
    2024第八届金腾奖 私宅(独居)丨私宅(多人居)丨餐饮丨酒店丨办公丨商业丨公共丨公益丨人物丨NEW100 jintengAWARD(小金_金腾奖组委会) 广州市海珠区琶洲大道68号华新中心21楼
    金腾奖视频号 金腾奖小红书号 监制:刘译遥
    统筹:张俊媚
    运营:赖钰炼 曹凯月 刘芳棋 小金
    新媒体:王贝贝 严洁 张文一
    技术:黄天佑 丁德昌
    最终解释权归金腾奖主办方所有