Private Residence Design of Nanchang Greenland Haibolanting
作品详情
  • Details of the work 标题横线
    头像或者logo
    图片 江西精壹装饰设计有限公司 江西省室内装饰协会特约推荐
    城市:南昌
    公司:江西精壹装饰设计有限公司
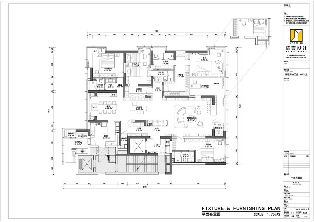
    参赛作品: 南昌绿地海珀兰庭私宅设计
    空间类型:别墅
    个人/公司简介:
    公司成立于2018年,致力于建筑室内空间的设计探索与服务,为不同类型空间发挥多样化的创意及美学价值。
    设计说明 | Design Instruction
  • 项目位于南昌市红谷滩新区核心商圈,周围高楼林立、酒绿灯红,人们在享受便利生活的同时,也面临着城市的污染和喧嚣,忙碌的工作和快节奏的生活,因而,更加向往清净治愈,自由随性的居住环境。本案委托人是一个幸福的四口之家,夫妻爱好健身和旅行,喜欢简洁通透、色调融洽的空间氛围,男主人平时热爱阅读,也希望能够在潜移默化中感染两个女儿,女主人对空间收纳系统要求极高,希望通过收纳设计令空间保持长久整洁。对于新家夫妻两人各有不同诉求,一个侧重精神,一个侧重现实。音乐人林二曾说过:“其实每个人都需要一个属于自己的角落,避一避楼宇之间的风,我们管那叫寻找温暖。”我们希望家能够成为承载精神与现实、时间与生活的容器,每一个人都能在家里找到属于自己的那份温暖。 我们想,这份温暖应该是先从踏出电梯门开始.....,消火栓箱被巧妙的隐藏到了柜体中间,同时收纳空间得到最大释放。色调成为室内的外在延续,同时延续出来的还有归家的松弛感。室内玄关与洗手台形成独立的“岛式”结构,将圆弧形态作为空间的一种补充构成,同时解决公卫较远所带来的不便。会客区、品茶区和餐厅整体化的设计,宽敞通透,形成了更加完美的空间形态。自由且舒展的洄游动线连接了家庭各成员行为模式,各个区域因功能不同,而增加洄游行走的交互体验。 室内各空间区域在造型上利用简洁线条,多以直线为主,偶有曲线,以追求纯粹设计感。色调以米色、浅灰色为设计主基调,辅以温润细腻的暖灰调的木饰面,再用少量深色将空间层次维度拉开,简洁而温馨。收纳系统功能强大,与空间形态互为补充,理性而富有温情。软装设计中采用与硬装融合且沉稳的家具及色彩搭配,辅以鲜艳的彩色挂画,使视觉上既稳重又不乏趣味。 在这里,家更多的是营造一个了解居者自己的时刻,能够被感知与归属,可以根据自己的意愿探索不同的路线和角落,开启一种心向往之的生活方式。作家陈年喜在《微尘》中说:“世界和生活从不慌张,慌张的是被世界和生活押解着的每一个人。”尽管城市的喧嚣和忙碌的工作时时充斥着我们的生活,对于居所的营造,我们始终希望为身处其中的人们带来从容与安宁。
  • 图片
  • 图片
  • 图片
  • 图片
  • 图片
  • 图片
  • 图片
  • 图片
  • 图片
  • 图片
  • 图片
  • 图片
  • 图片
  • 图片
  • 图片
  • 图片
  • 图片
  • 图片
  • 图片
  • 图片
  • 图片
  • 图片
  • 上一个 下一个
    2024第八届金腾奖 私宅(独居)丨私宅(多人居)丨餐饮丨酒店丨办公丨商业丨公共丨公益丨人物丨NEW100 jintengAWARD(小金_金腾奖组委会) 广州市海珠区琶洲大道68号华新中心21楼
    金腾奖视频号 金腾奖小红书号 监制:刘译遥
    统筹:张俊媚
    运营:赖钰炼 曹凯月 刘芳棋 小金
    新媒体:王贝贝 严洁 张文一
    技术:黄天佑 丁德昌
    最终解释权归金腾奖主办方所有