胡晓作品
作品详情
  • Details of the work 标题横线
    头像或者logo
    图片 胡晓 壹家居设计研究院特约推荐
    城市:昆明
    公司: 中策壹上高端工作室
    参赛作品: 胡晓作品
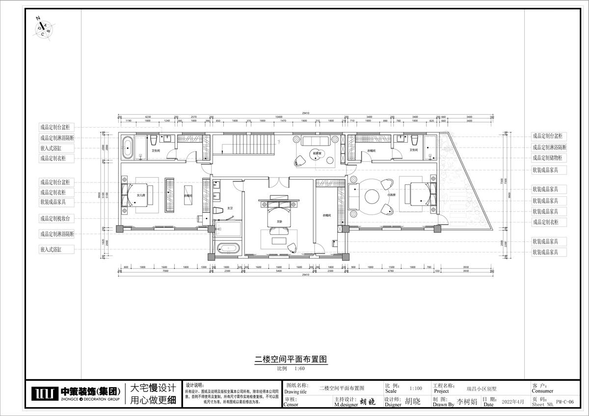
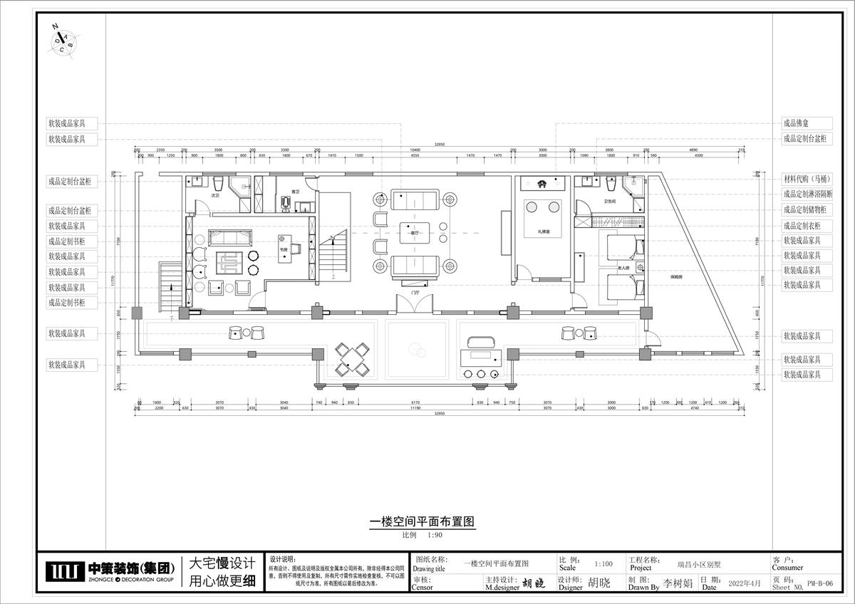
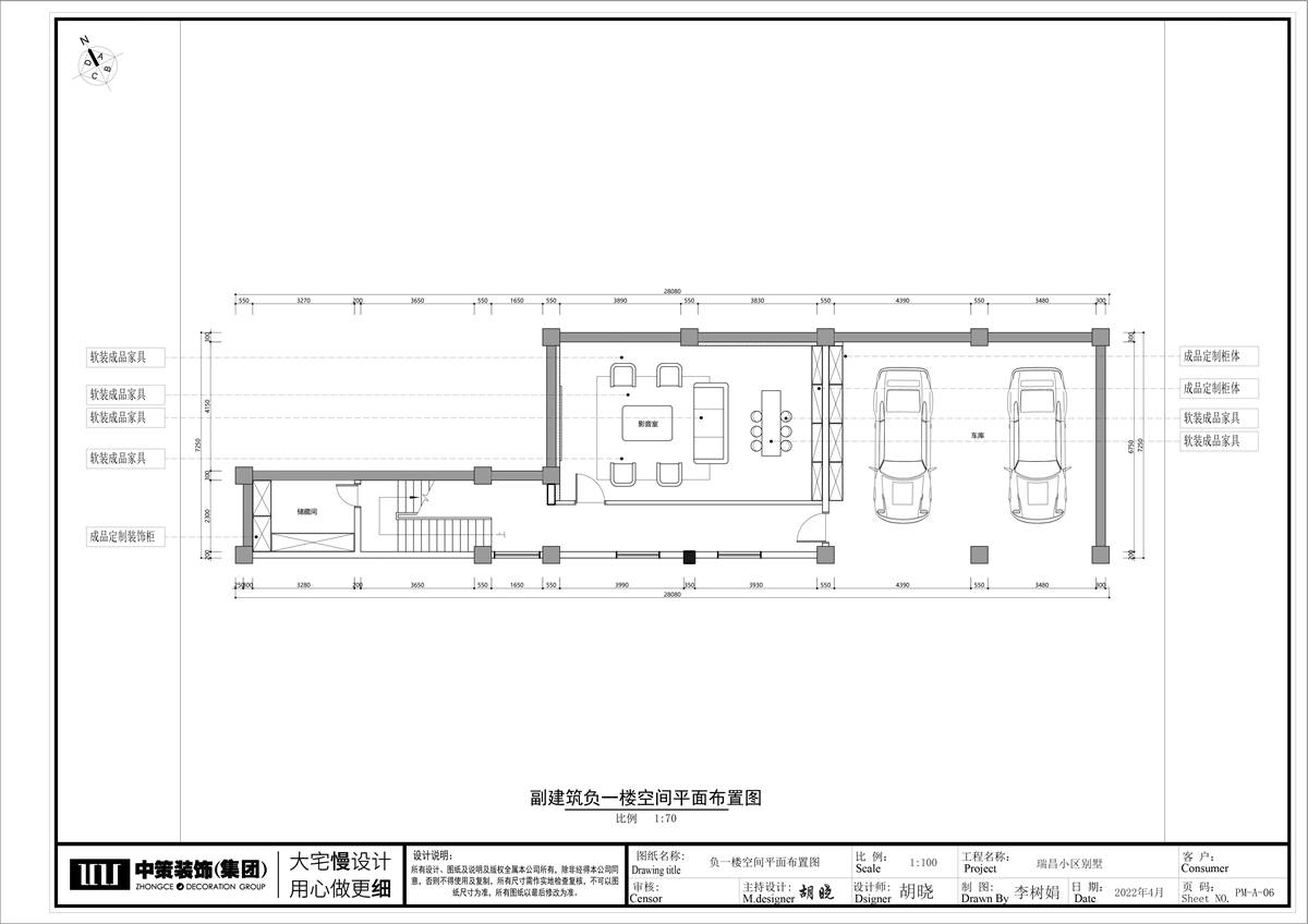
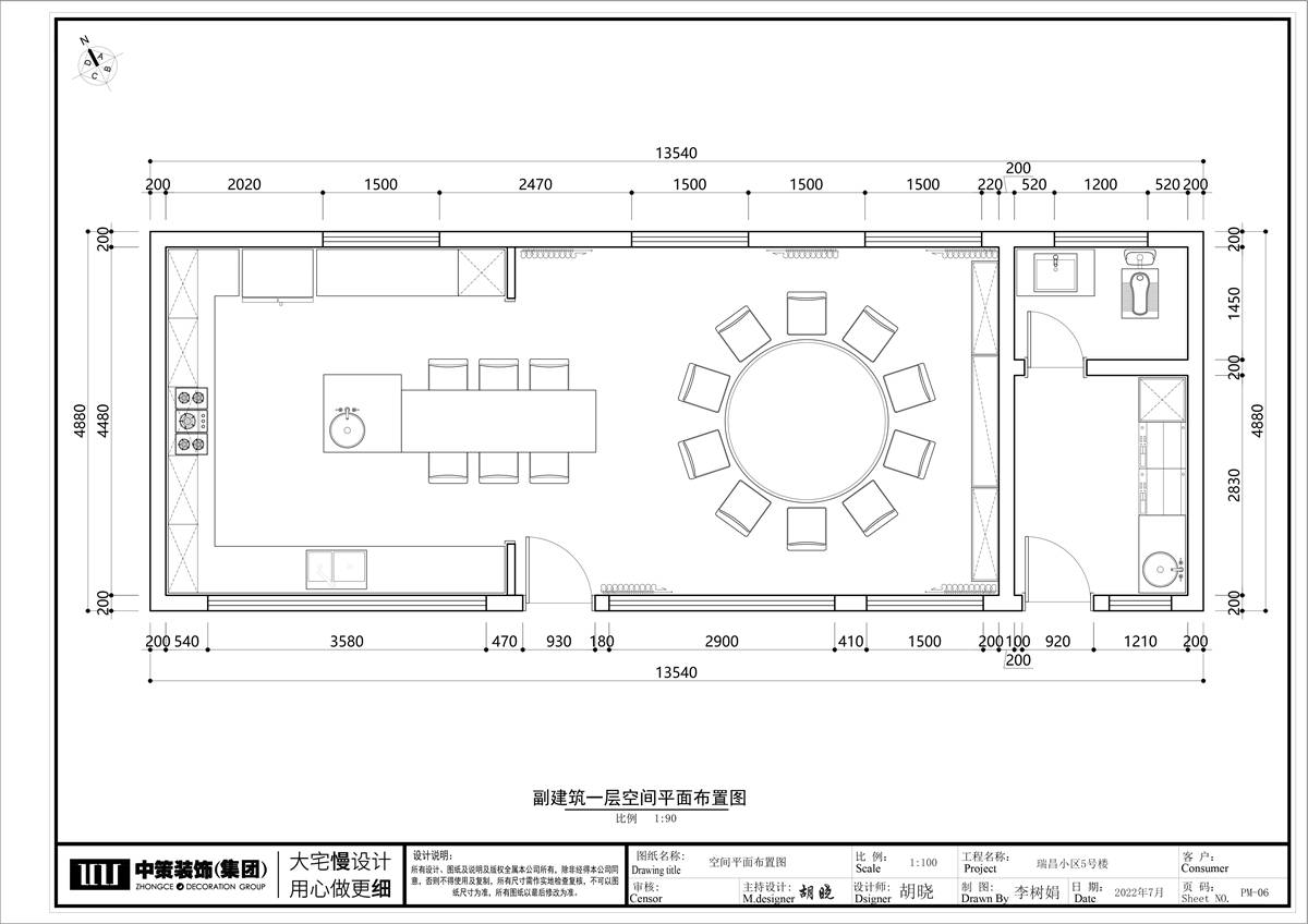
    空间类型:公寓(150㎡以下)
    个人/公司简介:
    设计师:胡晓 行业资质 从业 18 年 WAD 世界青年杰出设计师 中国人文设计大赛城市最具商业价值设计师 亚太空间设计师协会理事 YNID 资深会员设计师 云南装饰协会注册设计师 YNID 云设思想荟观点嘉宾 教育背景 2005 年毕业西安艺术设计系 2013 年香港澳门设计游学 2017 年泰国游学 2018 年新加坡游学 2019 年苏州 无锡游学 2019 年三亚酒店游学 2019 年清华大学空间环境艺术设计高级研修班 荣誉 2011 年中国室内设计金堂奖年度优秀别墅作品 2011 年里斯戴尔杯优秀作品奖 2018 年金装奖优秀作品奖 2018 年兰舍杯金墙奖设计大赛优秀奖 2018 年中策装饰设计大赛设计之星 2019 年世果奖中国人文设计大赛 2019 年中策装饰 A6 高端工作室产值冠军 2019 年金装奖公装工程类铜奖 2020 年中策装饰工地营销头客第一名 2021 年金堂奖云南推广大使 2021 年中策装饰设计大赛一强设计师 2021 年金装奖家装工程优秀奖 2022 年国际艺术华鼎杯 获得中国大宅设计+城市影响力人物 个人履历 2006 年入职中策装饰 2006-2007 年中策正式级设计师 2007-2008 年中策精品设计师 2010-2013 年中策宅速美装饰担任设计部经理 2013-2015 年成立海力设计工作室担任设计总监 2017 年至今中策壹上高端工作室首席设计师
    设计说明 | Design Instruction
  • 胡晓作品
  • 图片
  • 图片
  • 图片
  • 图片
  • 图片
  • 图片
  • 图片
  • 图片
  • 图片
  • 图片
  • 图片
  • 图片
  • 图片
  • 图片
  • 图片
  • 图片
  • 图片
  • 图片
  • 图片
  • 图片
  • 图片
  • 图片
  • 图片
  • 图片
  • 图片
  • 图片
  • 图片
  • 图片
  • 上一个 下一个
    2024第八届金腾奖 私宅(独居)丨私宅(多人居)丨餐饮丨酒店丨办公丨商业丨公共丨公益丨人物丨NEW100 jintengAWARD(小金_金腾奖组委会) 广州市海珠区琶洲大道68号华新中心21楼
    金腾奖视频号 金腾奖小红书号 监制:刘译遥
    统筹:张俊媚
    运营:赖钰炼 曹凯月 刘芳棋 小金
    新媒体:王贝贝 严洁 张文一
    技术:黄天佑 丁德昌
    最终解释权归金腾奖主办方所有