静谧之境
作品详情
  • Details of the work 标题横线
    头像或者logo
    图片 周雪 壹家居设计研究院特约推荐
    城市:昆明
    公司: 昆明中策装饰(集团)有限公司
    参赛作品: 静谧之境
    空间类型:公寓(150㎡以下)
    个人/公司简介:
    昆明中策装饰(集团)有限公司主任设计师
    设计说明 | Design Instruction
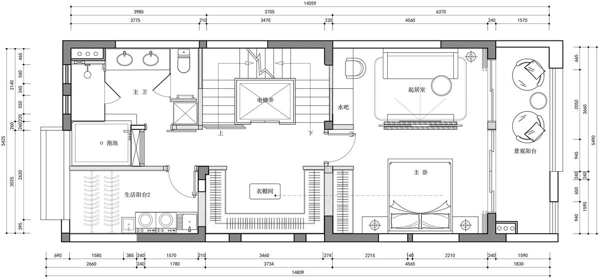
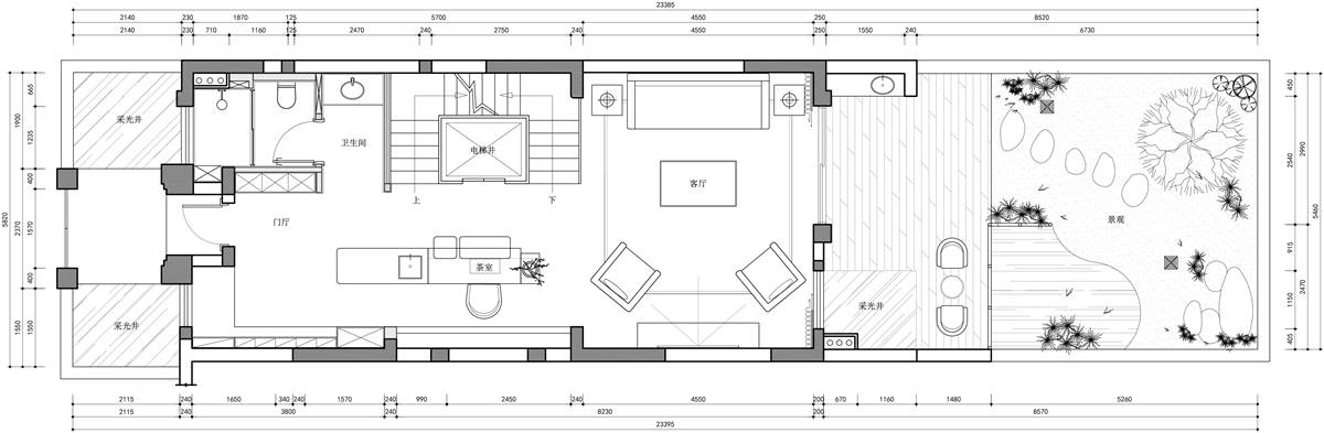
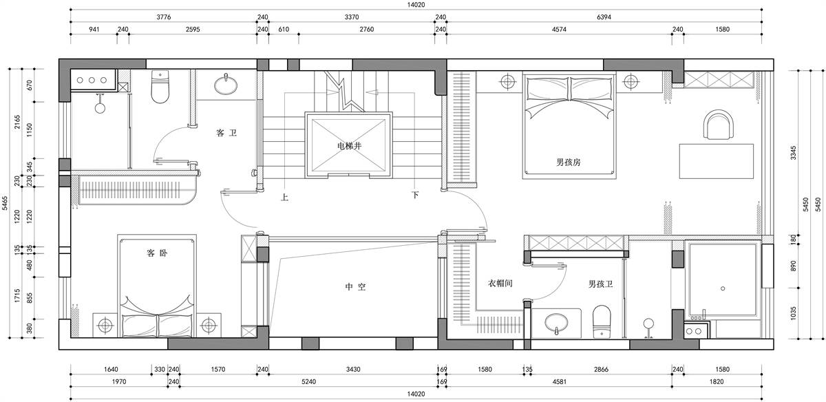
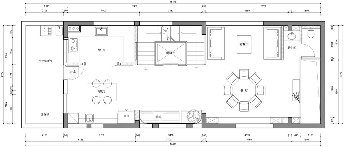
  • 需求分析(业主的装修需求): 本案业主是行业相关人士,经历了选比装饰公司,设计的推敲后选择了中策。业主不论对细节收口、工艺、环保、功能、质量、结构、文化等等方面都尤为重视,经过了一步一步思想的碰撞及一次次的相互了解,最终达成方案的实施和落地。 设计说明: 1、关于院落 别墅的特别之处在于有院落,庭院的设计上摒弃了人在画中走的构思,而是借原有庭院的主树冠,加以营造庭院的观赏性,让业主真正能感受到春生夏长秋收冬藏的四季变化,品一番天地,续一番人生故事。 2、套房 对于套房的定义除了有衣帽间外,一般还有洗浴空间的三件套,本案独特之处在于两个套房内都增设了泡池,不论炎炎夏日,还是绵绵寒冬都能享一席泡池,让身心得到最大程度的放松。 3、关于会客 用整个一层作为会客厅,兼具了书吧、茶吧、咖啡吧、院落等功能。满足家庭氛围的同时又享有独特的避世感,实现疗愈的空间。 4、餐饮区 用整个负层作为餐饮和烹饪区,中西厨结合,规划出简餐区与聚餐区,满足业主不同的就餐模式的使用,与会客休闲区油污分离。 设计感悟(对本套方案的设计总结、构思想法、心路历程等): 看到谭姐家实景落地满心欢喜,断疑生信 ,物类融通,习古访今,淬炼表达,是风格,即非风格,是名风格,叹无穷!
  • 图片
  • 图片
  • 图片
  • 图片
  • 图片
  • 图片
  • 图片
  • 图片
  • 图片
  • 图片
  • 图片
  • 图片
  • 图片
  • 图片
  • 图片
  • 图片
  • 图片
  • 图片
  • 图片
  • 图片
  • 图片
  • 图片
  • 图片
  • 图片
  • 图片
  • 图片
  • 图片
  • 上一个 下一个
    2024第八届金腾奖 私宅(独居)丨私宅(多人居)丨餐饮丨酒店丨办公丨商业丨公共丨公益丨人物丨NEW100 jintengAWARD(小金_金腾奖组委会) 广州市海珠区琶洲大道68号华新中心21楼
    金腾奖视频号 金腾奖小红书号 监制:刘译遥
    统筹:张俊媚
    运营:赖钰炼 曹凯月 刘芳棋 小金
    新媒体:王贝贝 严洁 张文一
    技术:黄天佑 丁德昌
    最终解释权归金腾奖主办方所有