View nature through a window, with scenery everywhere
作品详情
  • Details of the work 标题横线
    头像或者logo
    图片 高原 EDG贰道杠传媒特约推荐
    城市:苏州
    公司: 一野设计
    参赛作品: 一窗观自然,处处皆风景
    空间类型:公寓(150㎡以下)
    个人/公司简介:
    1.2014苏州首届室内设计大赛住宅类优秀奖 2.最设计真生活苏州首届室内设计达人大赛最具创意设 3.2014陈设艺术设计大赛住宅类优秀奖 4.2015年PPG大师杯室内设计大赛“功能巧思”奖 5.2016年“永隆·星空间杯”江苏省室内设计大赛铜奖 6.2017年中国室内设计年鉴优秀作品《春风》 7.2017-2018年第二届“吊顶 顶墙集成”中国空间应用设 计大赛(红鼎奖)住宅类优秀作品 8.2017腾讯家居年度设计时尚盛典 金腾奖优秀作品 9.2019年度IDS国际设计先锋榜优秀作品 10.2022年M+中国高端室内设计大赛Top100 11.2023可持续发展奖-优胜奖 12.2023十间坊&芒果奖优秀住宅空间
    设计说明 | Design Instruction
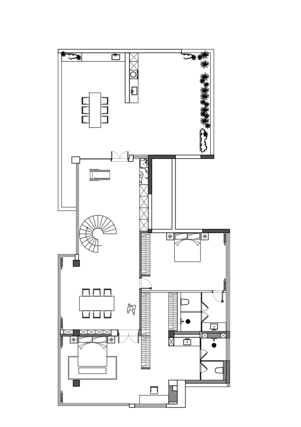
  • 本案是位于湖畔的一座顶复,视野极佳,在家就能坐览一线湖景。 业主喜欢这里的环境,便将房子买下来进行改造。窗是新家的灵魂,遍布各处的落地窗链接起室内外,让湖畔风光成为生活的背景板,增添自然的意趣;空间设计尊重业主的喜好,用原木与艺术涂料为一家四口打造了一个简约自然的舒适新家。 窗户是通向自然的入口。 空间以环绕的落地窗实现与外界的多面衔接,不同角度,风景不尽相同,可以全方位欣赏到湖畔风光,让自然的舒适浸润到空间深处。 客厅是以自然为主角展开的空间,家具的布置摒弃了现代生活快节奏、电子化的一面,只留一份纯粹悠然的舒适。家具面向窗景,沙发茶几与地毯的简单组合颇具灵活性与舒适性,使人能很快进入无拘无束的放松状态。 岛台充分利用空间格局,打造一个充满生活乐趣的闲适角落。悬挑的设计让空间轻盈无负担,宽阔的台面与足够的收纳足以满足独坐、小憩、下午茶等多种场景的需求。 功能区之间用柱子做了简单的分隔,让一览无余的空间有了节奏和层次。餐厅极尽简约,用质感的圆桌与舒适的餐椅围合出亲密、松弛的氛围。 钢结构旋转楼梯拥有轻灵的姿态、流动的线条,赋予空间独特的艺术之美;优雅的白与温暖的原木相得益彰。楼梯间敞开的格局将这份美框成一座装置,将优雅的灵魂注入简约的空间。 走廊纯粹明净,被设计成开放式书房。嵌入式书架在视觉上让空间更加整洁。长桌、长椅舒适而实用,满足办公、阅读、亲子活动等多种需求,以简单的场景设计诠释丰富而温暖的生活。 连通的套间以半透明的玻璃作为隔断,保持光线流动的同时,以迂回的动线丰富空间的层次与可探索性。原木铺满整个空间,让清新舒适的氛围遍布每一个角落。 儿童房以大量的空白为未来预留更多可能,简约的线条与灯光充实空间的质感、塑造温柔的氛围。
  • 图片
  • 图片
  • 图片
  • 图片
  • 图片
  • 图片
  • 图片
  • 图片
  • 图片
  • 图片
  • 图片
  • 图片
  • 图片
  • 图片
  • 图片
  • 图片
  • 图片
  • 图片
  • 图片
  • 图片
  • 图片
  • 图片
  • 图片
  • 图片
  • 图片
  • 图片
  • 图片
  • 图片
  • 上一个 下一个
    2024第八届金腾奖 私宅(独居)丨私宅(多人居)丨餐饮丨酒店丨办公丨商业丨公共丨公益丨人物丨NEW100 jintengAWARD(小金_金腾奖组委会) 广州市海珠区琶洲大道68号华新中心21楼
    金腾奖视频号 金腾奖小红书号 监制:刘译遥
    统筹:张俊媚
    运营:赖钰炼 曹凯月 刘芳棋 小金
    新媒体:王贝贝 严洁 张文一
    技术:黄天佑 丁德昌
    最终解释权归金腾奖主办方所有