The tranquility of time sedimentation
作品详情
  • Details of the work 标题横线
    头像或者logo
    图片 王丽 EDG贰道杠传媒特约推荐
    城市:苏州
    公司: 一野设计
    参赛作品: 时光沉淀的静谧
    空间类型:公寓(150㎡以下)
    个人/公司简介:
    一野设计首席设计师
    设计说明 | Design Instruction
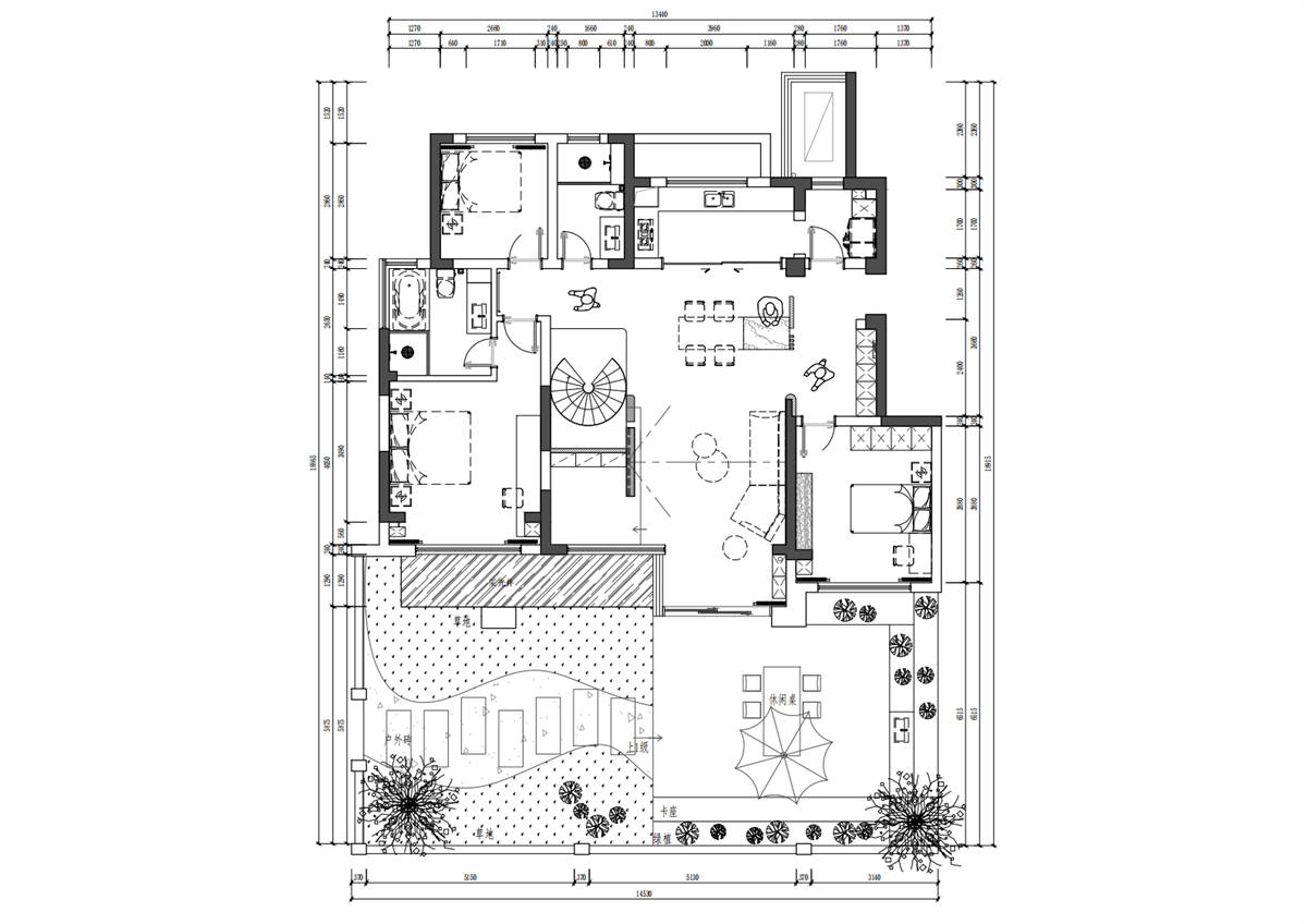
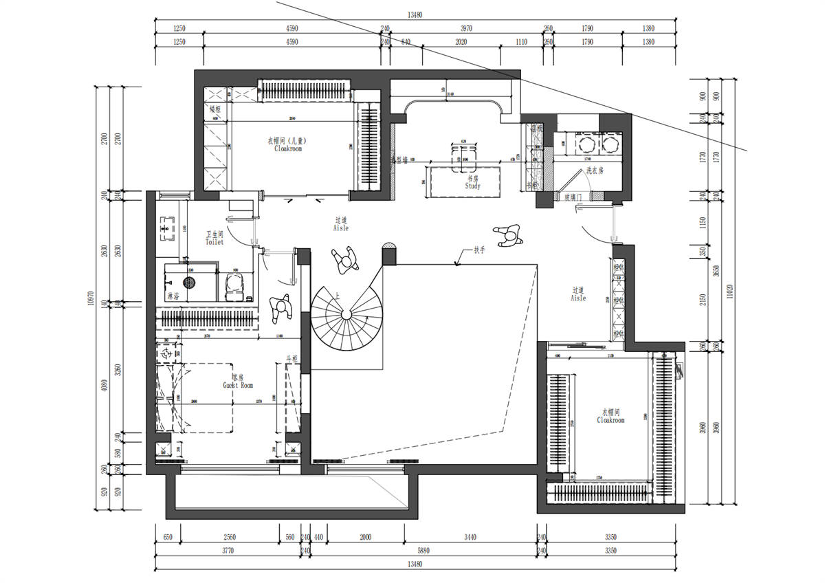
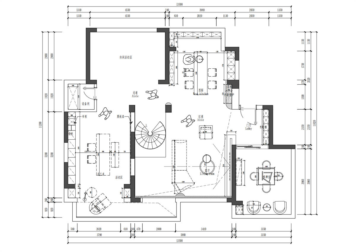
  • “削减到本质,但不要剥离它的韵,保持干净纯洁但不要剥夺生命力。” 侘寂的魅力在于质朴宁静的氛围,低调而绵延不绝的生命力,不畏时光流转,越沉淀,内容便越充实。本案以极简的手法构建空间,让光线、材质来做设计,塑造包容沉静的居家;同时以艺术的旋转楼塑造空间的生命力。 剥去复杂装饰的空间里,空间最真实的底色得以呈现:质朴,静谧,让时光宛如凝固一般的缓慢。原木的色调自然平和,与空间底色相融相交,形成递进的层次;黑色的色块与之形成对比,让氛围沉下来,变得更加安心。 利用建筑的构造,将光线引进地下空间,并雕琢墙体结构以分割光影,让自然的诗意在空间里流淌。 旋转楼梯曼妙的线条与大胆的色彩演绎美的表达,塑造出空间的艺术张力。材质与线条的完美结合让楼梯拥有轻盈飘逸的外在,大理石的量感让人找回脚踏实地的安全感,外在的美与实用主义的内核在这里融合,共生,带给空间别样的体验。 书房位于夹层,充分利用了走廊空间。空间两侧向外界敞开,光线自由流动,视野可能扩大, 以开放的格局减轻层高带来的压抑感。木饰面的天花板与壁龛丰富空间的层次。 屏风式的电视背景墙为客厅遮挡了直接的视线,提升了空间的私密性,同时不完全阻隔视线。客餐厅作为家的中心,空间氛围以温馨为主。以充沛的自然光与暖色调为介质,唤醒空间的温馨氛围。弧形的线条建立舒缓的流动感,让空间变得生动起来。 在温和素净的色调的包围下,卧室沉浸安静舒缓的氛围里。柔和的曲线赋予空间包裹感,构筑舒适而富有安全感的情景
  • 图片
  • 图片
  • 图片
  • 图片
  • 图片
  • 图片
  • 图片
  • 图片
  • 图片
  • 图片
  • 图片
  • 图片
  • 图片
  • 图片
  • 图片
  • 图片
  • 图片
  • 图片
  • 图片
  • 图片
  • 图片
  • 图片
  • 图片
  • 上一个 下一个
    2024第八届金腾奖 私宅(独居)丨私宅(多人居)丨餐饮丨酒店丨办公丨商业丨公共丨公益丨人物丨NEW100 jintengAWARD(小金_金腾奖组委会) 广州市海珠区琶洲大道68号华新中心21楼
    金腾奖视频号 金腾奖小红书号 监制:刘译遥
    统筹:张俊媚
    运营:赖钰炼 曹凯月 刘芳棋 小金
    新媒体:王贝贝 严洁 张文一
    技术:黄天佑 丁德昌
    最终解释权归金腾奖主办方所有