A corner on the river
作品详情
  • Details of the work 标题横线
    头像或者logo
    图片 邓宏伟
    城市:南昌
    公司: 南昌市天吾设计工作室
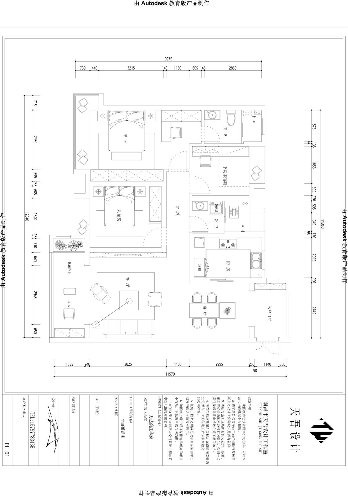
    参赛作品: 临江一隅
    空间类型:公寓(150㎡以下)
    个人/公司简介:
    2015年毕业于江西外语外贸职业学院室内设计专业; 2016年在南昌在中堂装饰担任实习设计师; 2017年在南昌易尚装饰担任设计师; 2018年在南昌润泰装饰担任设计组长至2020年; 2021年至今任江西省南昌市青山湖区天吾装饰设计中心设计总监。 2018年特聘为江西省室内装饰协会设计专业委员会委员, 2020年江西省室内装饰行业室内设计师TOP50. 2023年江西省室内装饰行业优秀设计师。
    设计说明 | Design Instruction
  • 南昌万达城位于南昌市九龙湖新区,拥有全球最大的室内海洋馆、大型舞台秀、科技电影乐园、大型室外主题公园、国际度假酒店群、滨湖酒吧街等娱乐项目的文化中心单元,以及多处住宅楼,颠覆传统视觉体验,建成后将改变南昌城市定位,成为中国文化旅游名城。 小区坐落于万达城最后一个区,于赣江河畔,位置绝佳,风景优美。本案业主为一对青年夫妇,从事建筑及教育行业,品味风雅,所以本案采用现代极简风格设计,极简风格专注于生活的本质,去除不必要的装饰,用最少的设计打造最有张力的空间,强调简约与实用的平衡。这种风格追求空间的干净素雅,表面看起来空无一物,但通过少而精的设计元素和装饰,营造出精致的氛围,给人舒适、放松的感觉。尽管将设计元素、色彩、照明、原材料简化到最少程度,但对色彩、材料质感要求很高。极简主义以直线、平滑曲线为主,避免复杂造型的家具和一切雕刻复杂的细节,硬朗的直线条给予空间更多丰富的层次感和立体。布局上讲究空间开阔通畅,采光性好,多选择浅色系、黑色等颜色,满足空间更加开阔的需求‌。 业主夫妇热爱种植,所以在设计中摒弃了传统阳台的洗晒区域,将其移入卫生间中,让阳台成为一个真正意义上的休闲阳台。阳台种植各种植物,将景引入客厅,使得坐于客厅中仿佛置身于大自然。纯粹的岩板电视背景墙搭配沙发后面的木饰面造型,使得空间格外透亮,加上家具的色彩搭配使得空间显得宽敞;餐厅岛台餐桌一体,空间最大化利用,既节约了空间也体现出极简的风格。卧室的简约加上色彩搭配,使得卧室显得更加的温馨。本案主打营造一个使业主忙碌一天后,回到居室能卸去一身疲倦感觉身心放松的空间。
  • 图片
  • 图片
  • 图片
  • 图片
  • 图片
  • 图片
  • 图片
  • 图片
  • 图片
  • 图片
  • 图片
  • 图片
  • 图片
  • 图片
  • 图片
  • 图片
  • 图片
  • 图片
  • 图片
  • 图片
  • 图片
  • 图片
  • 图片
  • 上一个 下一个
    2024第八届金腾奖 私宅(独居)丨私宅(多人居)丨餐饮丨酒店丨办公丨商业丨公共丨公益丨人物丨NEW100 jintengAWARD(小金_金腾奖组委会) 广州市海珠区琶洲大道68号华新中心21楼
    金腾奖视频号 金腾奖小红书号 监制:刘译遥
    统筹:张俊媚
    运营:赖钰炼 曹凯月 刘芳棋 小金
    新媒体:王贝贝 严洁 张文一
    技术:黄天佑 丁德昌
    最终解释权归金腾奖主办方所有