Cohesion
作品详情
  • Details of the work 标题横线
    头像或者logo
    图片 邱仕航 i室设圈漂亮家居设计家媒体特约推荐
    城市:新北
    公司: 权舟室内设计有限公司
    参赛作品: 凝光
    空间类型:公寓(150㎡以下)
    个人/公司简介:
    用艺术性的设计笔法 扣紧每个业主的需求 巧妙配合使用者特质调和色彩 将专属的风格流淌于空间 在视觉上给予美好的飨宴 在心灵上带来沉静的念想 讲究材质特性与整体平衡 利落规划机能动线 灵活搭配多元建材 细腻勾勒光影层次 创造兼具质感与舒适的环境 造就生活的完美比例
    设计说明 | Design Instruction
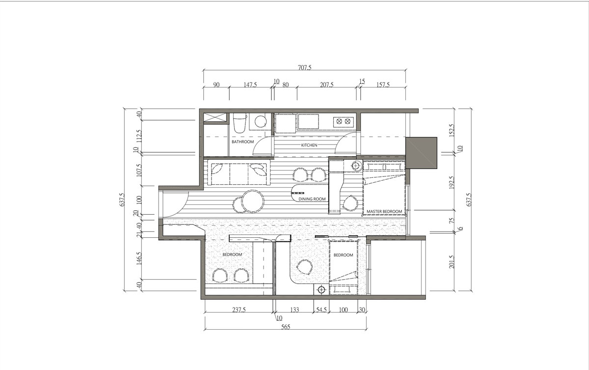
  • 推开大门,温润的木质调相偕沉稳石材、清水模涂料,于空间层层铺就开阔无碍的日光大道,令人一眼赏尽满室静雅的侘寂光景,流转其中的线型光源及金属饰条,低诉着现代设计语汇,替静谧的质感场域,增添一抹内敛的时尚新潮。 思及样品屋的展示功能,我们除却门片,并以清透玻璃取代大量隔间墙,达成放大场域空间的效果,同时选用可重复利用的天然建材,搭组成历久弥新的经典风格,不仅予以赏屋者对未来生活的愿想,更展现对环境的关怀之情。 现代侘寂 光影层递 全室以木质为核心元素,运用大量实木皮及舒然铭板共组场域,并于墙面施作清水模涂料,藉细腻层次引领参观者深入空间尽处,其间搭配利落的金属饰条、线型灯光,将现代风采缀入日式侘寂,此外,依循整体风格,于天花板横梁包覆木皮,消弭量体存在感,塑造挑高的视觉效果。 形随机能 开阔想象 透过去除隔间墙与门片的设置,巧搭清玻立面及开放式柜体,满足样品屋最主要的展示功能,营造宽敞且张力十足的视觉感受,除了凸显并使人专注于建材质感,弹性开阔的空间也令参观者产生更多元的想象及询问意愿,提升进一步洽谈的可能。 永续经营 隽永风景 妥善运用天然建材,于立面陈贴实木皮跟「泼墨山水」花岗岩,其经典、不易变质的特性,在时间的考验下历久弥新,尔后拆除也可循环利用,打造自然永续的健康场域。
  • 图片
  • 图片
  • 图片
  • 图片
  • 图片
  • 图片
  • 图片
  • 图片
  • 图片
  • 图片
  • 图片
  • 图片
  • 上一个 下一个
    2024第八届金腾奖 私宅(独居)丨私宅(多人居)丨餐饮丨酒店丨办公丨商业丨公共丨公益丨人物丨NEW100 jintengAWARD(小金_金腾奖组委会) 广州市海珠区琶洲大道68号华新中心21楼
    金腾奖视频号 金腾奖小红书号 监制:刘译遥
    统筹:张俊媚
    运营:赖钰炼 曹凯月 刘芳棋 小金
    新媒体:王贝贝 严洁 张文一
    技术:黄天佑 丁德昌
    最终解释权归金腾奖主办方所有