Hazy Glamour
作品详情
  • Details of the work 标题横线
    头像或者logo
    图片 邱仕航 i室设圈漂亮家居设计家媒体特约推荐
    城市:新北
    公司: 权舟室内设计有限公司
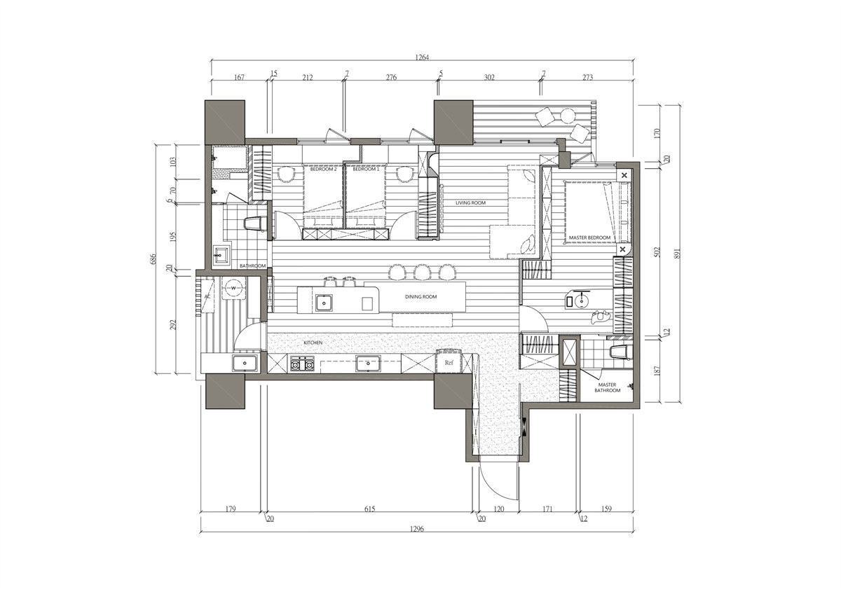
    参赛作品: 缈苒
    空间类型:公寓(150㎡以下)
    个人/公司简介:
    用艺术性的设计笔法 扣紧每个业主的需求 巧妙配合使用者特质调和色彩 将专属的风格流淌于空间 在视觉上给予美好的飨宴 在心灵上带来沉静的念想 讲究材质特性与整体平衡 利落规划机能动线 灵活搭配多元建材 细腻勾勒光影层次 创造兼具质感与舒适的环境 造就生活的完美比例
    设计说明 | Design Instruction
  • 自窗外漫入的光影,淬着熠熠生辉的古铜光泽流淌于室,其坚实的金属质感,映照着柔润的灰白与木质纹理,为空间汇入理性与感性的语汇,圆弧作为其中的过渡,令场域绵延一体,如同一家四口紧密且相通的心意,为质感居所添入家的温暖。 回应男、女主人对收纳和简约风格的追求,我们在大面积色块中隐入柜体,运用镀钛金属、铁件与弧线设计贯穿全室,形塑机能与现代感并存的舒适场域,并以两位孩童为规划核心,令次卧外的餐厅成为亲子共读的主要场所,同时运用环保建材,为世代打造一幢友善永续的温馨家宅。 金属润泽 静谧侘寂 全室运用大面积的低彩度木质、作旧质感的特殊涂料串连各区域,搭佐石材、铁件和线型条灯等素材,于恬淡的侘寂风范中增添利落现代感;电视墙采用具镜面性质的古铜色镀钛板,并延伸至上方天花板,除了有修饰横梁、延伸空间之效,位于梁边的空调出风口,其凹凸的层次与丰富的线条,也可减轻量体的存在感,形塑宽阔轻盈的视觉感受。 精心构划 悦沐亲情 此案空间布局以两位孩童的需求为主,除了运用固有场域规划两间次卧,也妥善将房内的畸零地嵌入衣柜,打造具充裕收纳机能的独立卧房,提供完备舒适的成长空间,并响应「亲子共读」的需求,将位于小孩房外的餐厅作为公领域的核心,通透无碍的格局与宽阔的长桌、长椅,让业主于此拉近与孩子的距离,一同陪伴他们学习、成长,共享天伦之乐。 弧形语汇 婉转修饰 本案将圆弧设计灵活运用于各场域,自入口处以弧形过渡玄关与餐厨区转角,除了令动线更圆滑,也确保孩童活动时的安全性,移动入内,客厅屋梁、电视墙与主卧房柱皆导入弧角,消弭量体的压迫感,并在厨房柜体和电视边柜,以圆润的弧线手法表现坚实的金属元素,呈现刚柔并济的美感。 自然融贯 精准拿捏 延续场域的整体性与和谐感,餐厅旁的次卧舍弃制式的门框,采用暗门设计,完美隐入后方立面,其外观绘以浅色涂料,与对侧深色厨柜形成对比,中和整体色调,而位于动线尽头的卫浴则选用隐藏式推拉门,平时开启可兼作一旁展示柜的门片,运用精确的尺度于每一处,为小巧的家宅汇入无限的巧思。
  • 图片
  • 图片
  • 图片
  • 图片
  • 图片
  • 图片
  • 图片
  • 图片
  • 图片
  • 图片
  • 图片
  • 图片
  • 上一个 下一个
    2024第八届金腾奖 私宅(独居)丨私宅(多人居)丨餐饮丨酒店丨办公丨商业丨公共丨公益丨人物丨NEW100 jintengAWARD(小金_金腾奖组委会) 广州市海珠区琶洲大道68号华新中心21楼
    金腾奖视频号 金腾奖小红书号 监制:刘译遥
    统筹:张俊媚
    运营:赖钰炼 曹凯月 刘芳棋 小金
    新媒体:王贝贝 严洁 张文一
    技术:黄天佑 丁德昌
    最终解释权归金腾奖主办方所有